MDOT MBE Form B State-Funded Contracts - Mbe Participation Schedule - Maryland

MDOT MBE Form B State-Funded Contracts - Mbe Participation Schedule - Maryland

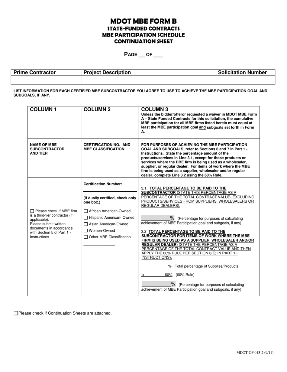
What Is MDOT MBE Form B?

This is a legal form that was released by the Maryland Department of Transportation - a government authority operating within Maryland. As of today, no separate filing guidelines for the form are provided by the issuing department.

FAQ

Q: What is the MDOT MBE Form B?
A: The MDOT MBE Form B is a State-Funded Contracts MBE Participation Schedule.

Q: What does MBE stand for?
A: MBE stands for Minority Business Enterprise.

Q: What is the purpose of the MBE Participation Schedule?
A: The purpose of the MBE Participation Schedule is to track and report the participation of Minority Business Enterprises in state-funded contracts.

Q: Who needs to complete the MDOT MBE Form B?
A: Prime contractors are required to complete the MDOT MBE Form B for all state-funded contracts.

Q: What information is included in the MDOT MBE Form B?
A: The MDOT MBE Form B includes details about the prime contractor, the MBE participation goal, and the MBE subcontractors.

Q: Are prime contractors required to meet the MBE participation goal?
A: Yes, prime contractors are required to make good faith efforts to meet the MBE participation goal.

Q: What happens if a prime contractor does not meet the MBE participation goal?
A: If a prime contractor does not meet the MBE participation goal, they may be subject to penalties or other enforcement actions.

Q: Are there any exceptions to the MBE participation requirements?
A: Yes, there are exceptions for certain types of contracts and specific circumstances, which are outlined in the Maryland law and regulations.

ADVERTISEMENT

Form Details:

  • Released on September 1, 2011;
  • The latest edition provided by the Maryland Department of Transportation;
  • Easy to use and ready to print;
  • Quick to customize;
  • Compatible with most PDF-viewing applications;
  • Fill out the form in our online filing application.

Download a printable version of MDOT MBE Form B by clicking the link below or browse more documents and templates provided by the Maryland Department of Transportation.

Download MDOT MBE Form B State-Funded Contracts - Mbe Participation Schedule - Maryland

4.3 of 5 (18 votes)
  • MDOT MBE Form B State-Funded Contracts - Mbe Participation Schedule - Maryland

    1

  • MDOT MBE Form B State-Funded Contracts - Mbe Participation Schedule - Maryland, Page 2

    2

  • MDOT MBE Form B State-Funded Contracts - Mbe Participation Schedule - Maryland, Page 3

    3

  • MDOT MBE Form B State-Funded Contracts - Mbe Participation Schedule - Maryland, Page 4

    4

  • MDOT MBE Form B State-Funded Contracts - Mbe Participation Schedule - Maryland, Page 5

    5

  • MDOT MBE Form B State-Funded Contracts - Mbe Participation Schedule - Maryland, Page 1
  • MDOT MBE Form B State-Funded Contracts - Mbe Participation Schedule - Maryland, Page 2
  • MDOT MBE Form B State-Funded Contracts - Mbe Participation Schedule - Maryland, Page 3
  • MDOT MBE Form B State-Funded Contracts - Mbe Participation Schedule - Maryland, Page 4
  • MDOT MBE Form B State-Funded Contracts - Mbe Participation Schedule - Maryland, Page 5
Prev 1 2 3 4 5 Next
ADVERTISEMENT