Form EQP5157 Site Inspection Form - Scrap Tire Program - Michigan

Form EQP5157 Site Inspection Form - Scrap Tire Program - Michigan

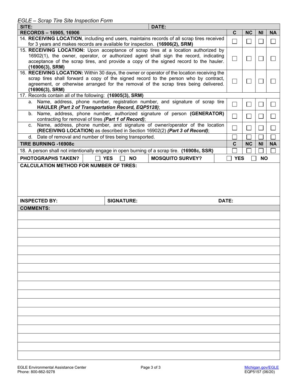
What Is Form EQP5157?

This is a legal form that was released by the Michigan Department of Environment, Great Lakes, and Energy - a government authority operating within Michigan. As of today, no separate filing guidelines for the form are provided by the issuing department.

FAQ

Q: What is the EQP5157 Site Inspection Form?
A: The EQP5157 Site Inspection Form is a site inspection form used for the Scrap Tire Program in Michigan.

Q: What is the Scrap Tire Program?
A: The Scrap Tire Program in Michigan is a program aimed at proper management and disposal of scrap tires to prevent environmental hazards.

Q: Why is the EQP5157 Site Inspection Form used?
A: The EQP5157 Site Inspection Form is used to assess compliance and ensure proper handling, storage, and disposal of scrap tires.

Q: Who uses the EQP5157 Site Inspection Form?
A: The EQP5157 Site Inspection Form is typically used by authorized inspectors and officials responsible for monitoring the Scrap Tire Program.

Q: What information is collected in the EQP5157 Site Inspection Form?
A: The EQP5157 Site Inspection Form collects information about the facility, tire storage areas, tire handling practices, and compliance with regulations.

Q: Is the EQP5157 Site Inspection Form mandatory?
A: Yes, the EQP5157 Site Inspection Form is mandatory for facilities involved in the Scrap Tire Program in Michigan.

ADVERTISEMENT

Form Details:

  • Released on June 1, 2020;
  • The latest edition provided by the Michigan Department of Environment, Great Lakes, and Energy;
  • Easy to use and ready to print;
  • Quick to customize;
  • Compatible with most PDF-viewing applications;
  • Fill out the form in our online filing application.

Download a printable version of Form EQP5157 by clicking the link below or browse more documents and templates provided by the Michigan Department of Environment, Great Lakes, and Energy.

Download Form EQP5157 Site Inspection Form - Scrap Tire Program - Michigan

4.3 of 5 (23 votes)
  • Form EQP5157 Site Inspection Form - Scrap Tire Program - Michigan

    1

  • Form EQP5157 Site Inspection Form - Scrap Tire Program - Michigan, Page 2

    2

  • Form EQP5157 Site Inspection Form - Scrap Tire Program - Michigan, Page 3

    3

  • Form EQP5157 Site Inspection Form - Scrap Tire Program - Michigan, Page 1
  • Form EQP5157 Site Inspection Form - Scrap Tire Program - Michigan, Page 2
  • Form EQP5157 Site Inspection Form - Scrap Tire Program - Michigan, Page 3
Prev 1 2 3 Next
ADVERTISEMENT

Related Documents