Permit Application for Hemp Warehouse - New Mexico

Permit Application for Hemp Warehouse - New Mexico

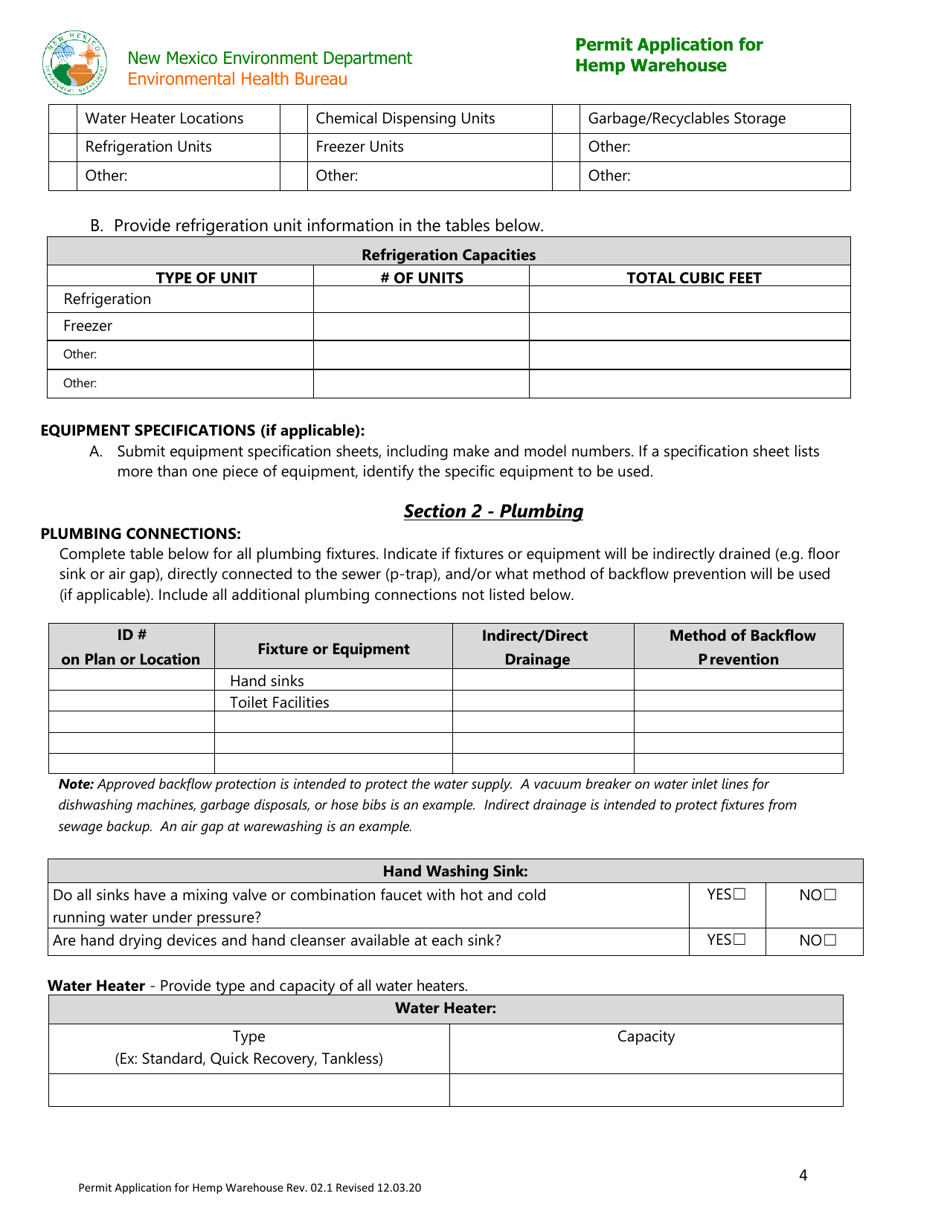
Permit Application for Hemp Warehouse is a legal document that was released by the New Mexico Environment Department - a government authority operating within New Mexico.

FAQ

Q: What is the process for applying for a permit to open a hemp warehouse in New Mexico?
A: The process for obtaining a permit to open a hemp warehouse in New Mexico involves submitting an application to the New Mexico Department of Agriculture.

Q: What is the purpose of a permit for a hemp warehouse in New Mexico?
A: A permit is required to ensure compliance with state regulations and to legally operate a hemp warehouse in New Mexico.

Q: What documents are required for a hemp warehouse permit application?
A: The required documents for a hemp warehouse permit application may include a completed application form, a business plan, a site plan, security measures, and proof of financial stability.

Q: Are there any fees associated with the permit application for a hemp warehouse in New Mexico?
A: Yes, there are fees associated with the permit application for a hemp warehouse in New Mexico. The specific fees may vary and should be confirmed with the New Mexico Department of Agriculture.

Q: Is there a deadline for submitting a permit application for a hemp warehouse in New Mexico?
A: There may be specific deadlines for submitting a permit application for a hemp warehouse in New Mexico. It is advisable to check with the New Mexico Department of Agriculture for the current deadline.

ADVERTISEMENT

Form Details:

  • Released on December 3, 2020;
  • The latest edition currently provided by the New Mexico Environment Department;
  • Ready to use and print;
  • Easy to customize;
  • Compatible with most PDF-viewing applications;
  • Fill out the form in our online filing application.

Download a printable version of the form by clicking the link below or browse more documents and templates provided by the New Mexico Environment Department.

Download Permit Application for Hemp Warehouse - New Mexico

4.4 of 5 (29 votes)
  • Permit Application for Hemp Warehouse - New Mexico

    1

  • Permit Application for Hemp Warehouse - New Mexico, Page 2

    2

  • Permit Application for Hemp Warehouse - New Mexico, Page 3

    3

  • Permit Application for Hemp Warehouse - New Mexico, Page 4

    4

  • Permit Application for Hemp Warehouse - New Mexico, Page 5

    5

  • Permit Application for Hemp Warehouse - New Mexico, Page 6

    6

  • Permit Application for Hemp Warehouse - New Mexico, Page 7

    7

  • Permit Application for Hemp Warehouse - New Mexico, Page 8

    8

  • Permit Application for Hemp Warehouse - New Mexico, Page 9

    9

  • Permit Application for Hemp Warehouse - New Mexico, Page 1
  • Permit Application for Hemp Warehouse - New Mexico, Page 2
  • Permit Application for Hemp Warehouse - New Mexico, Page 3
  • Permit Application for Hemp Warehouse - New Mexico, Page 4
  • Permit Application for Hemp Warehouse - New Mexico, Page 5
  • Permit Application for Hemp Warehouse - New Mexico, Page 6
  • Permit Application for Hemp Warehouse - New Mexico, Page 7
  • Permit Application for Hemp Warehouse - New Mexico, Page 8
  • Permit Application for Hemp Warehouse - New Mexico, Page 9
Prev 1 2 3 4 5 ... 9 Next
ADVERTISEMENT

Related Documents