Form 440-5454 Manufactured Structures Dealer License Renewal Application - Oregon

Notification Icon This version of the form is not currently in use and is provided for reference only. Download this version of Form 440-5454 for the current year.

Form 440-5454 Manufactured Structures Dealer License Renewal Application - Oregon

What Is Form 440-5454?

This is a legal form that was released by the Oregon Department of Consumer and Business Services - a government authority operating within Oregon. As of today, no separate filing guidelines for the form are provided by the issuing department.

FAQ

Q: What is Form 440-5454?
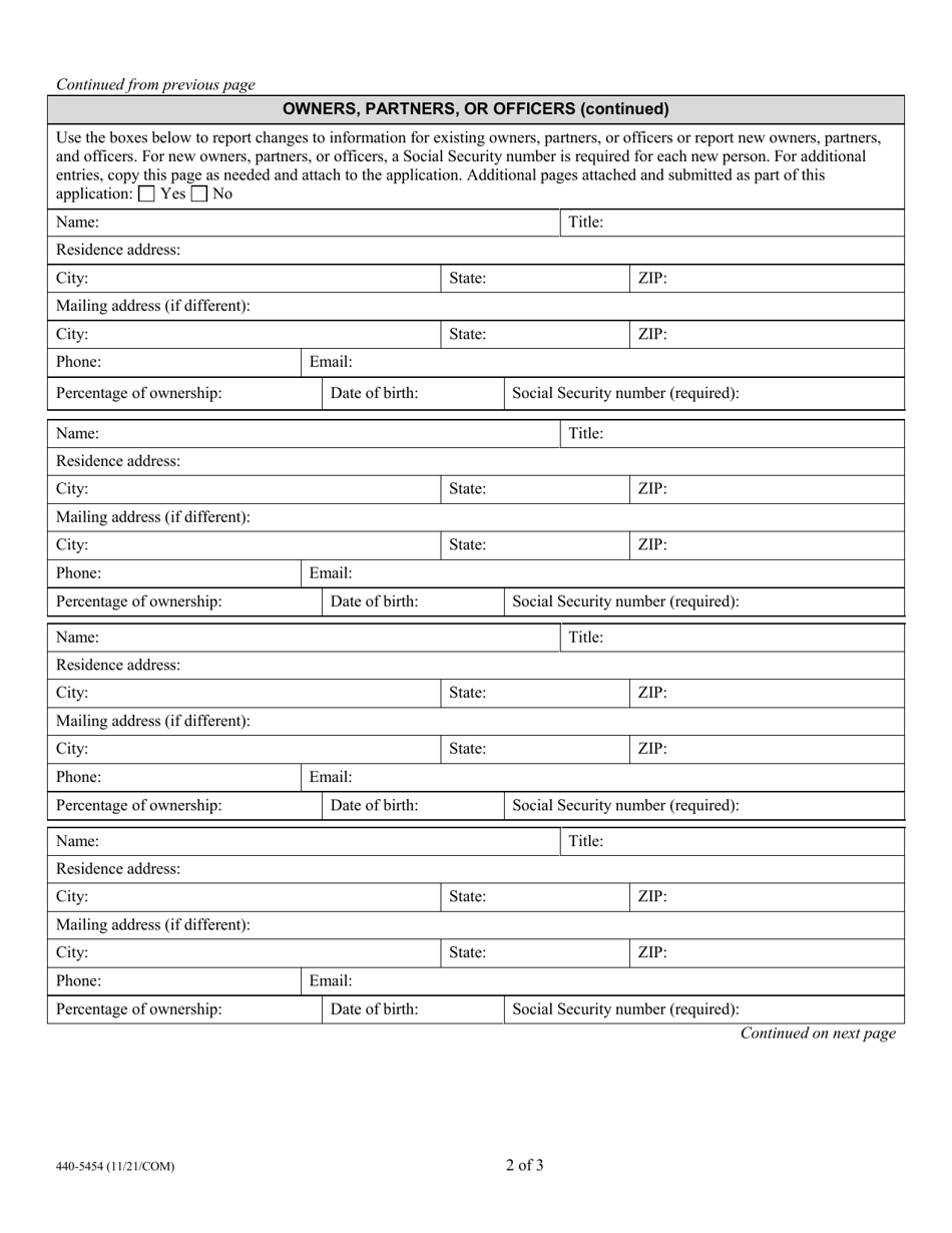
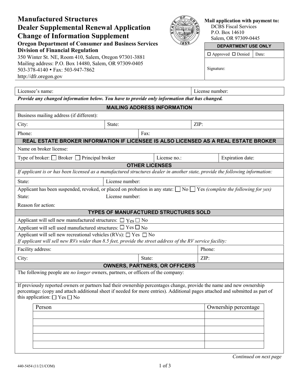
A: Form 440-5454 is the Manufactured Structures Dealer License Renewal Application in Oregon.

Q: Who needs to fill out Form 440-5454?
A: Manufactured Structures Dealers in Oregon are required to fill out Form 440-5454 for their license renewal.

Q: What is the purpose of Form 440-5454?
A: The purpose of Form 440-5454 is to renew the Manufactured Structures Dealer License in Oregon.

Q: Are there any fees associated with renewing the license?
A: Yes, there are fees associated with renewing the Manufactured Structures Dealer License. The specific fees can be found on Form 440-5454.

Q: What documents are required to be submitted with Form 440-5454?
A: The documents required to be submitted with Form 440-5454 vary and are detailed on the form itself. It is recommended to review the form instructions to ensure all the necessary documents are included.

Q: When is the deadline to submit Form 440-5454?
A: The deadline to submit Form 440-5454 for license renewal varies depending on the expiration date of the current license. It is important to renew the license before it expires to avoid any penalties or additional fees.

ADVERTISEMENT

Form Details:

  • Released on November 16, 2021;
  • The latest edition provided by the Oregon Department of Consumer and Business Services;
  • Easy to use and ready to print;
  • Quick to customize;
  • Compatible with most PDF-viewing applications;
  • Fill out the form in our online filing application.

Download a fillable version of Form 440-5454 by clicking the link below or browse more documents and templates provided by the Oregon Department of Consumer and Business Services.

Download Form 440-5454 Manufactured Structures Dealer License Renewal Application - Oregon

4.7 of 5 (9 votes)
  • Form 440-5454 Manufactured Structures Dealer License Renewal Application - Oregon

    1

  • Form 440-5454 Manufactured Structures Dealer License Renewal Application - Oregon, Page 2

    2

  • Form 440-5454 Manufactured Structures Dealer License Renewal Application - Oregon, Page 3

    3

  • Form 440-5454 Manufactured Structures Dealer License Renewal Application - Oregon, Page 4

    4

  • Form 440-5454 Manufactured Structures Dealer License Renewal Application - Oregon, Page 5

    5

  • Form 440-5454 Manufactured Structures Dealer License Renewal Application - Oregon, Page 1
  • Form 440-5454 Manufactured Structures Dealer License Renewal Application - Oregon, Page 2
  • Form 440-5454 Manufactured Structures Dealer License Renewal Application - Oregon, Page 3
  • Form 440-5454 Manufactured Structures Dealer License Renewal Application - Oregon, Page 4
  • Form 440-5454 Manufactured Structures Dealer License Renewal Application - Oregon, Page 5
Prev 1 2 3 4 5 Next
ADVERTISEMENT

Related Documents