Certified Disadvantaged, Minority, Woman, Service Disabled Veteran or Emerging Small Business Exemption From $30,000 Public Works Bond - Oregon

Certified Disadvantaged, Minority, Woman, Service Disabled Veteran or Emerging Small Business Exemption From $30,000 Public Works Bond - Oregon

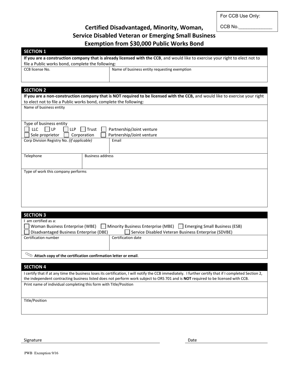
Certified Disadvantaged, Minority, Woman, Service Public Works Bond is a legal document that was released by the Oregon Construction Contractors Board - a government authority operating within Oregon.

FAQ

Q: What is the Certified Disadvantaged, Minority, Woman, Service Disabled Veteran or Emerging Small Business Exemption?
A: It is an exemption from the $30,000 public works bond requirement in Oregon.

Q: Who is eligible for this exemption?
A: Certified disadvantaged, minority, woman, service-disabled veteran, or emerging small businesses in Oregon.

Q: What is the purpose of this exemption?
A: To provide financial relief to eligible businesses when bidding on public works projects.

Q: What is the bond requirement for public works projects in Oregon?
A: $30,000.

ADVERTISEMENT

Form Details:

  • Released on September 1, 2016;
  • The latest edition currently provided by the Oregon Construction Contractors Board;
  • Ready to use and print;
  • Easy to customize;
  • Compatible with most PDF-viewing applications;
  • Fill out the form in our online filing application.

Download a printable version of the form by clicking the link below or browse more documents and templates provided by the Oregon Construction Contractors Board.

Download Certified Disadvantaged, Minority, Woman, Service Disabled Veteran or Emerging Small Business Exemption From $30,000 Public Works Bond - Oregon

4.8 of 5 (14 votes)
  • Certified Disadvantaged, Minority, Woman, Service Disabled Veteran or Emerging Small Business Exemption From $30,000 Public Works Bond - Oregon

    1

  • Certified Disadvantaged, Minority, Woman, Service Disabled Veteran or Emerging Small Business Exemption From $30,000 Public Works Bond - Oregon, Page 2

    2

  • Certified Disadvantaged, Minority, Woman, Service Disabled Veteran or Emerging Small Business Exemption From $30,000 Public Works Bond - Oregon, Page 1
  • Certified Disadvantaged, Minority, Woman, Service Disabled Veteran or Emerging Small Business Exemption From $30,000 Public Works Bond - Oregon, Page 2
Prev 1 2 Next
ADVERTISEMENT