Form CF2R-STH-01-E Solar Water Heating Worksheet for Non-hers Registered Projects - California

Form CF2R-STH-01-E Solar Water Heating Worksheet for Non-hers Registered Projects - California

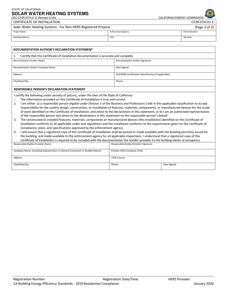
What Is Form CF2R-STH-01-E?

This is a legal form that was released by the California Energy Commission - a government authority operating within California. As of today, no separate filing guidelines for the form are provided by the issuing department.

FAQ

Q: What is Form CF2R-STH-01-E?
A: Form CF2R-STH-01-E is a solar water heating worksheet for non-HERS registered projects in California.

Q: Who is required to fill out Form CF2R-STH-01-E?
A: Form CF2R-STH-01-E must be filled out by non-HERS registered projects in California that are installing solar water heating systems.

Q: What information does Form CF2R-STH-01-E require?
A: Form CF2R-STH-01-E requires information about the solar water heating system, including the collector area, tank capacity, and storage type.

Q: Is Form CF2R-STH-01-E mandatory?
A: Yes, Form CF2R-STH-01-E is mandatory for non-HERS registered projects in California installing solar water heating systems.

ADVERTISEMENT

Form Details:

  • Released on January 1, 2020;
  • The latest edition provided by the California Energy Commission;
  • Easy to use and ready to print;
  • Quick to customize;
  • Compatible with most PDF-viewing applications;
  • Fill out the form in our online filing application.

Download a printable version of Form CF2R-STH-01-E by clicking the link below or browse more documents and templates provided by the California Energy Commission.

Download Form CF2R-STH-01-E Solar Water Heating Worksheet for Non-hers Registered Projects - California

4.8 of 5 (14 votes)
  • Form CF2R-STH-01-E Solar Water Heating Worksheet for Non-hers Registered Projects - California

    1

  • Form CF2R-STH-01-E Solar Water Heating Worksheet for Non-hers Registered Projects - California, Page 2

    2

  • Form CF2R-STH-01-E Solar Water Heating Worksheet for Non-hers Registered Projects - California, Page 3

    3

  • Form CF2R-STH-01-E Solar Water Heating Worksheet for Non-hers Registered Projects - California, Page 4

    4

  • Form CF2R-STH-01-E Solar Water Heating Worksheet for Non-hers Registered Projects - California, Page 1
  • Form CF2R-STH-01-E Solar Water Heating Worksheet for Non-hers Registered Projects - California, Page 2
  • Form CF2R-STH-01-E Solar Water Heating Worksheet for Non-hers Registered Projects - California, Page 3
  • Form CF2R-STH-01-E Solar Water Heating Worksheet for Non-hers Registered Projects - California, Page 4
Prev 1 2 3 4 Next
ADVERTISEMENT

Related Documents