Form F621-122-000 Maintenance Control Program Documentation & Records - Electric Elevators - Washington

Form F621-122-000 Maintenance Control Program Documentation & Records - Electric Elevators - Washington

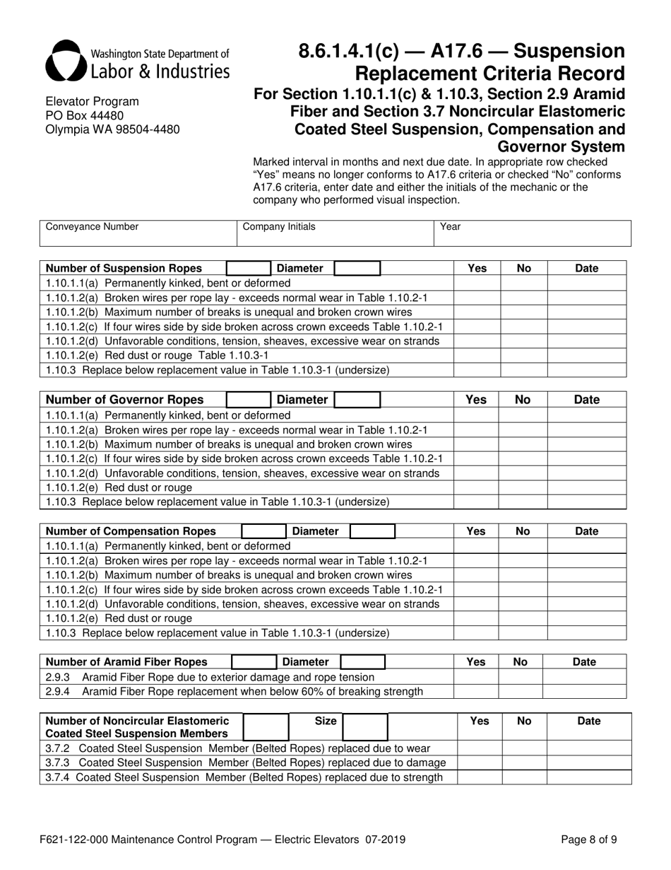
What Is Form F621-122-000?

This is a legal form that was released by the Washington State Department of Labor and Industries - a government authority operating within Washington. As of today, no separate filing guidelines for the form are provided by the issuing department.

FAQ

Q: What is the Form F621-122-000?
A: Form F621-122-000 is a documentation and records form for maintenance control program of electric elevators in Washington.

Q: What does the Form F621-122-000 cover?
A: The form covers documentation and records related to the maintenance control program of electric elevators.

Q: Who needs to use the Form F621-122-000?
A: Anyone responsible for maintaining electric elevators in Washington needs to use this form.

Q: What is the purpose of the Form F621-122-000?
A: The purpose of this form is to ensure proper documentation and records of maintenance activities for electric elevators.

ADVERTISEMENT

Form Details:

  • Released on July 1, 2019;
  • The latest edition provided by the Washington State Department of Labor and Industries;
  • Easy to use and ready to print;
  • Quick to customize;
  • Compatible with most PDF-viewing applications;
  • Fill out the form in our online filing application.

Download a fillable version of Form F621-122-000 by clicking the link below or browse more documents and templates provided by the Washington State Department of Labor and Industries.

Download Form F621-122-000 Maintenance Control Program Documentation & Records - Electric Elevators - Washington

4.5 of 5 (14 votes)
  • Form F621-122-000 Maintenance Control Program Documentation & Records - Electric Elevators - Washington

    1

  • Form F621-122-000 Maintenance Control Program Documentation & Records - Electric Elevators - Washington, Page 2

    2

  • Form F621-122-000 Maintenance Control Program Documentation & Records - Electric Elevators - Washington, Page 3

    3

  • Form F621-122-000 Maintenance Control Program Documentation & Records - Electric Elevators - Washington, Page 4

    4

  • Form F621-122-000 Maintenance Control Program Documentation & Records - Electric Elevators - Washington, Page 5

    5

  • Form F621-122-000 Maintenance Control Program Documentation & Records - Electric Elevators - Washington, Page 6

    6

  • Form F621-122-000 Maintenance Control Program Documentation & Records - Electric Elevators - Washington, Page 7

    7

  • Form F621-122-000 Maintenance Control Program Documentation & Records - Electric Elevators - Washington, Page 8

    8

  • Form F621-122-000 Maintenance Control Program Documentation & Records - Electric Elevators - Washington, Page 9

    9

  • Form F621-122-000 Maintenance Control Program Documentation  Records - Electric Elevators - Washington, Page 1
  • Form F621-122-000 Maintenance Control Program Documentation  Records - Electric Elevators - Washington, Page 2
  • Form F621-122-000 Maintenance Control Program Documentation  Records - Electric Elevators - Washington, Page 3
  • Form F621-122-000 Maintenance Control Program Documentation  Records - Electric Elevators - Washington, Page 4
  • Form F621-122-000 Maintenance Control Program Documentation  Records - Electric Elevators - Washington, Page 5
  • Form F621-122-000 Maintenance Control Program Documentation  Records - Electric Elevators - Washington, Page 6
  • Form F621-122-000 Maintenance Control Program Documentation  Records - Electric Elevators - Washington, Page 7
  • Form F621-122-000 Maintenance Control Program Documentation  Records - Electric Elevators - Washington, Page 8
  • Form F621-122-000 Maintenance Control Program Documentation  Records - Electric Elevators - Washington, Page 9
Prev 1 2 3 4 5 ... 9 Next
ADVERTISEMENT