Apprenticeship Grant Application - Wyoming

Apprenticeship Grant Application - Wyoming

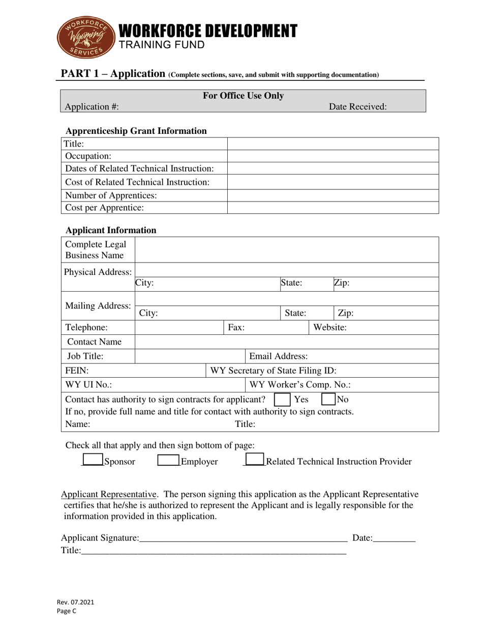
Apprenticeship Grant Application is a legal document that was released by the Wyoming Department of Workforce Services - a government authority operating within Wyoming.

FAQ

Q: Who is eligible to apply for the Apprenticeship Grant?
A: Any individual residing in Wyoming who is registered as an apprentice is eligible to apply for the Apprenticeship Grant.

Q: What is the purpose of the Apprenticeship Grant?
A: The purpose of the Apprenticeship Grant is to provide financial assistance to apprentices in Wyoming.

Q: What expenses does the Apprenticeship Grant cover?
A: The Apprenticeship Grant may cover expenses such as tuition fees, books, tools, and other related costs.

Q: Is the Apprenticeship Grant a one-time payment?
A: No, the Apprenticeship Grant is not a one-time payment. It may be awarded annually to eligible apprentices.

Q: Can I receive the Apprenticeship Grant if I am not registered as an apprentice?
A: No, only individuals registered as apprentices are eligible to receive the Apprenticeship Grant.

Q: Are there any restrictions on how I can use the Apprenticeship Grant funds?
A: There may be restrictions on how the Apprenticeship Grant funds can be used. It is advisable to review the guidelines provided by the Wyoming Department of Workforce Services.

Q: Can I receive the Apprenticeship Grant if I am a resident of another state?
A: No, the Apprenticeship Grant is only available to individuals residing in Wyoming.

ADVERTISEMENT

Form Details:

  • Released on July 1, 2021;
  • The latest edition currently provided by the Wyoming Department of Workforce Services;
  • Ready to use and print;
  • Easy to customize;
  • Compatible with most PDF-viewing applications;
  • Fill out the form in our online filing application.

Download a fillable version of the form by clicking the link below or browse more documents and templates provided by the Wyoming Department of Workforce Services.

Download Apprenticeship Grant Application - Wyoming

4.5 of 5 (20 votes)
  • Apprenticeship Grant Application - Wyoming

    1

  • Apprenticeship Grant Application - Wyoming, Page 2

    2

  • Apprenticeship Grant Application - Wyoming, Page 3

    3

  • Apprenticeship Grant Application - Wyoming, Page 4

    4

  • Apprenticeship Grant Application - Wyoming, Page 5

    5

  • Apprenticeship Grant Application - Wyoming, Page 6

    6

  • Apprenticeship Grant Application - Wyoming, Page 7

    7

  • Apprenticeship Grant Application - Wyoming, Page 1
  • Apprenticeship Grant Application - Wyoming, Page 2
  • Apprenticeship Grant Application - Wyoming, Page 3
  • Apprenticeship Grant Application - Wyoming, Page 4
  • Apprenticeship Grant Application - Wyoming, Page 5
  • Apprenticeship Grant Application - Wyoming, Page 6
  • Apprenticeship Grant Application - Wyoming, Page 7
Prev 1 2 3 4 5 ... 7 Next
ADVERTISEMENT