Form TC59-105 Kentucky Riverport Improvement (Kri) Application - Kentucky

Notification Icon This version of the form is not currently in use and is provided for reference only. Download this version of Form TC59-105 for the current year.

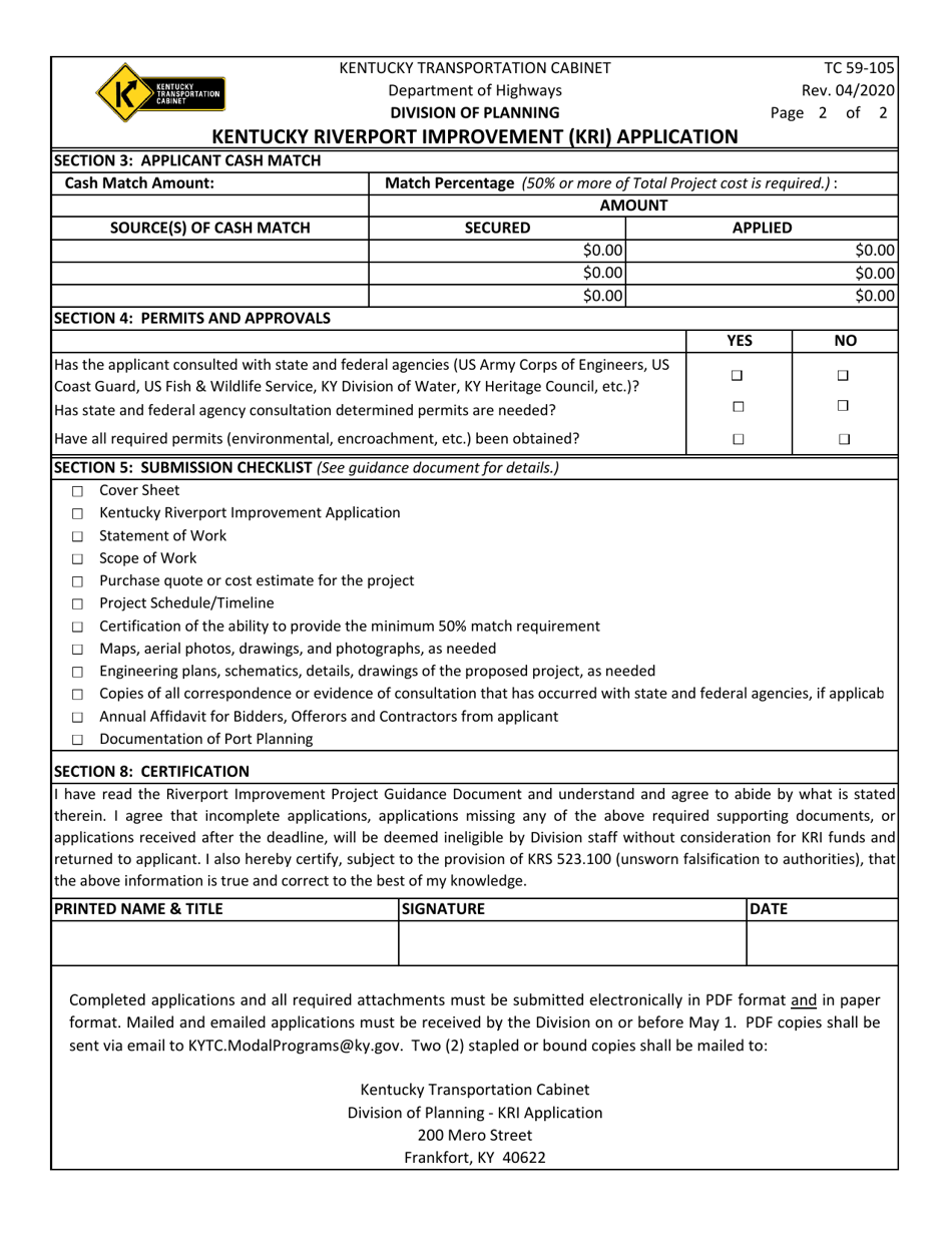
Form TC59-105 Kentucky Riverport Improvement (Kri) Application - Kentucky

What Is Form TC59-105?

This is a legal form that was released by the Kentucky Transportation Cabinet - a government authority operating within Kentucky. As of today, no separate filing guidelines for the form are provided by the issuing department.

FAQ

Q: What is the TC59-105 Kentucky Riverport Improvement (KRI) Application?
A: The TC59-105 Kentucky Riverport Improvement (KRI) Application is a form used in Kentucky for applying for riverport improvement projects.

Q: What is the purpose of the TC59-105 Kentucky Riverport Improvement (KRI) Application?
A: The purpose of the TC59-105 Kentucky Riverport Improvement (KRI) Application is to apply for funding and grants for riverport improvement projects in Kentucky.

Q: Who can use the TC59-105 Kentucky Riverport Improvement (KRI) Application?
A: Anyone who wants to apply for funding and grants for riverport improvement projects in Kentucky can use the TC59-105 Kentucky Riverport Improvement (KRI) Application.

Q: What information is required in the TC59-105 Kentucky Riverport Improvement (KRI) Application?
A: The TC59-105 Kentucky Riverport Improvement (KRI) Application requires information such as project details, funding sources, budget, and supporting documentation.

Q: Is there a deadline for submitting the TC59-105 Kentucky Riverport Improvement (KRI) Application?
A: Yes, the TC59-105 Kentucky Riverport Improvement (KRI) Application has a deadline for submission. The deadline may vary depending on the specific funding program or grant.

Q: Can I submit the TC59-105 Kentucky Riverport Improvement (KRI) Application electronically?
A: It depends on the specific requirements of the funding program or grant. Some programs may allow electronic submission, while others may require a hard copy.

Q: Are there any fees for submitting the TC59-105 Kentucky Riverport Improvement (KRI) Application?
A: There may be fees associated with submitting the TC59-105 Kentucky Riverport Improvement (KRI) Application. You should check the specific requirements of the funding program or grant for more information.

Q: Who can I contact for assistance with the TC59-105 Kentucky Riverport Improvement (KRI) Application?
A: You can contact the Kentucky government office or agency responsible for managing the funding program or grant for assistance with the TC59-105 Kentucky Riverport Improvement (KRI) Application.

ADVERTISEMENT

Form Details:

  • Released on April 1, 2020;
  • The latest edition provided by the Kentucky Transportation Cabinet;
  • Easy to use and ready to print;
  • Quick to customize;
  • Compatible with most PDF-viewing applications;
  • Fill out the form in our online filing application.

Download a printable version of Form TC59-105 by clicking the link below or browse more documents and templates provided by the Kentucky Transportation Cabinet.

Download Form TC59-105 Kentucky Riverport Improvement (Kri) Application - Kentucky

4.4 of 5 (19 votes)
  • Form TC59-105 Kentucky Riverport Improvement (Kri) Application - Kentucky

    1

  • Form TC59-105 Kentucky Riverport Improvement (Kri) Application - Kentucky, Page 2

    2

  • Form TC59-105 Kentucky Riverport Improvement (Kri) Application - Kentucky, Page 1
  • Form TC59-105 Kentucky Riverport Improvement (Kri) Application - Kentucky, Page 2
Prev 1 2 Next
ADVERTISEMENT