Project Notification Form - Maine

Notification Icon This version of the form is not currently in use and is provided for reference only. Download this version of the document for the current year.

Project Notification Form - Maine

Project Notification Form is a legal document that was released by the Maine Department of Transportation - a government authority operating within Maine.

FAQ

Q: What is a Project Notification Form?
A: A Project Notification Form is a document used in Maine to notify the state about the start of a construction project.

Q: Who needs to submit a Project Notification Form?
A: Anyone planning to start a construction project in Maine needs to submit a Project Notification Form.

Q: What information is required in a Project Notification Form?
A: The form requires information about the project location, owner, contractor, and a description of the work.

Q: When should a Project Notification Form be submitted?
A: The form should be submitted at least 10 business days before the start of the construction project.

Q: Is there a fee for submitting a Project Notification Form?
A: No, there is no fee for submitting a Project Notification Form.

Q: What happens after I submit a Project Notification Form?
A: Once the form is submitted, the Maine Department of Environmental Protection will review it and may require additional information or permits.

Q: What is the purpose of a Project Notification Form?
A: The purpose of the form is to inform the state of Maine about upcoming construction projects and to ensure compliance with environmental regulations.

ADVERTISEMENT

Form Details:

  • Released on April 1, 2022;
  • The latest edition currently provided by the Maine Department of Transportation;
  • Ready to use and print;
  • Easy to customize;
  • Compatible with most PDF-viewing applications;
  • Fill out the form in our online filing application.

Download a fillable version of the form by clicking the link below or browse more documents and templates provided by the Maine Department of Transportation.

Download Project Notification Form - Maine

4.4 of 5 (34 votes)
  • Project Notification Form - Maine

    1

  • Project Notification Form - Maine, Page 2

    2

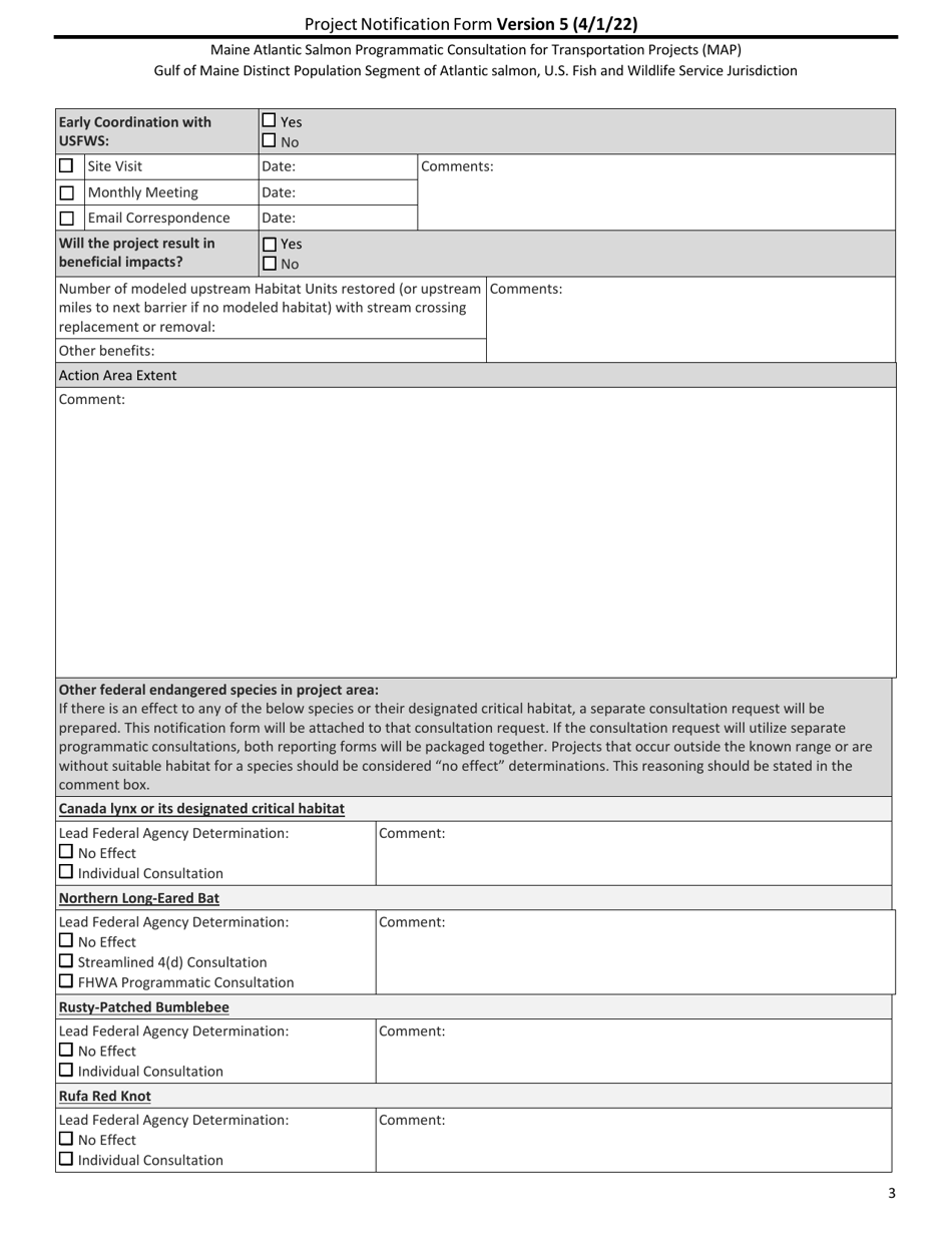
  • Project Notification Form - Maine, Page 3

    3

  • Project Notification Form - Maine, Page 4

    4

  • Project Notification Form - Maine, Page 5

    5

  • Project Notification Form - Maine, Page 6

    6

  • Project Notification Form - Maine, Page 7

    7

  • Project Notification Form - Maine, Page 8

    8

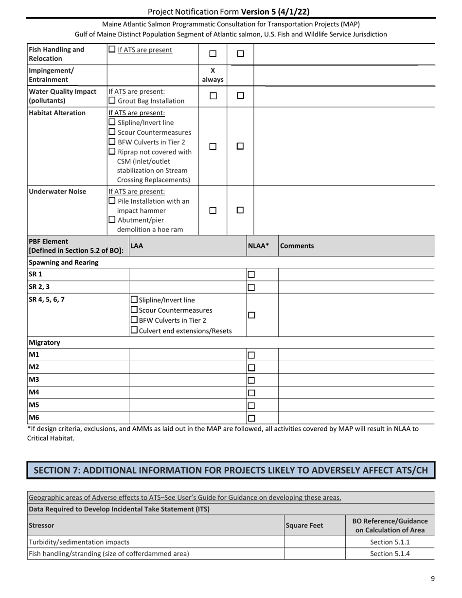
  • Project Notification Form - Maine, Page 9

    9

  • Project Notification Form - Maine, Page 10

    10

  • Project Notification Form - Maine, Page 11

    11

  • Project Notification Form - Maine, Page 12

    12

  • Project Notification Form - Maine, Page 13

    13

  • Project Notification Form - Maine, Page 14

    14

  • Project Notification Form - Maine, Page 1
  • Project Notification Form - Maine, Page 2
  • Project Notification Form - Maine, Page 3
  • Project Notification Form - Maine, Page 4
  • Project Notification Form - Maine, Page 5
  • Project Notification Form - Maine, Page 6
  • Project Notification Form - Maine, Page 7
  • Project Notification Form - Maine, Page 8
  • Project Notification Form - Maine, Page 9
  • Project Notification Form - Maine, Page 10
  • Project Notification Form - Maine, Page 11
  • Project Notification Form - Maine, Page 12
  • Project Notification Form - Maine, Page 13
  • Project Notification Form - Maine, Page 14
Prev 1 2 3 4 5 ... 14 Next
ADVERTISEMENT