Form COM5026 Application for Hotel / Motel License Changes - Ohio

Form COM5026 Application for Hotel / Motel License Changes - Ohio

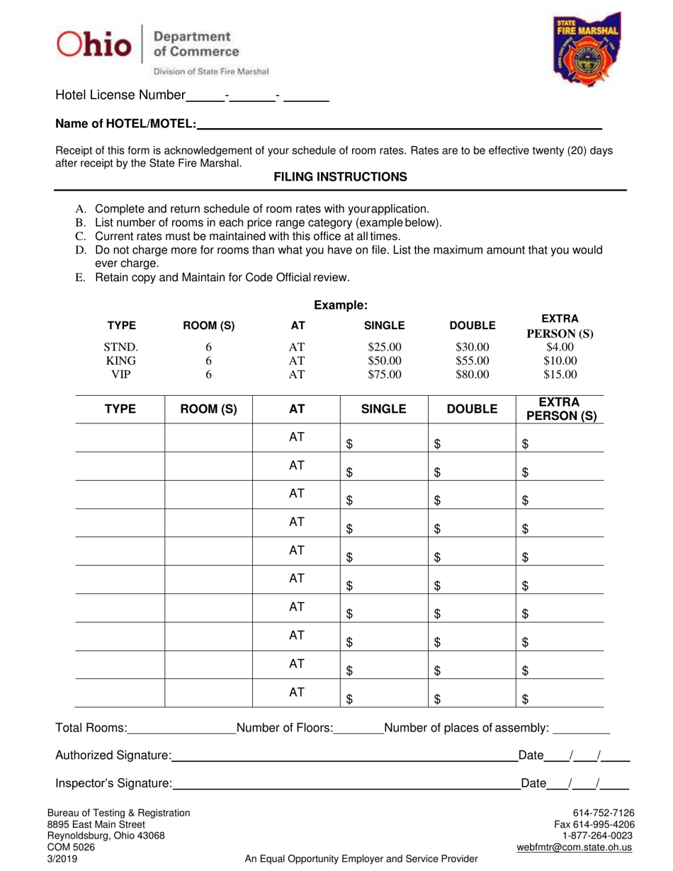
What Is Form COM5026?

This is a legal form that was released by the Ohio Department of Commerce - a government authority operating within Ohio. As of today, no separate filing guidelines for the form are provided by the issuing department.

FAQ

Q: What is form COM5026?
A: Form COM5026 is the application for hotel/motel license changes in Ohio.

Q: What is this form used for?
A: This form is used to request changes to a hotel or motel license in Ohio.

Q: How do I fill out form COM5026?
A: You need to provide the required information, such as the current license details, proposed changes, and contact information.

Q: Do I need to pay a fee for submitting this form?
A: Yes, there is a fee associated with submitting form COM5026. The fee varies depending on the type of changes requested.

Q: What documents should be included with form COM5026?
A: You may need to submit supporting documents, such as floor plans, zoning approvals, or any other documentation required for the specific changes you are requesting.

Q: How long does it take to process the application?
A: The processing time for the application can vary. It is recommended to contact the Ohio Department of Commerce for an estimate of the processing time.

Q: Is there a specific deadline for submitting this form?
A: There may not be a specific deadline for submitting form COM5026. However, it is advisable to submit the form and required documents in a timely manner.

Q: Can I make changes to my hotel/motel license without using this form?
A: No, the changes to a hotel/motel license in Ohio must be requested using form COM5026.

ADVERTISEMENT

Form Details:

  • Released on January 1, 2022;
  • The latest edition provided by the Ohio Department of Commerce;
  • Easy to use and ready to print;
  • Quick to customize;
  • Compatible with most PDF-viewing applications;
  • Fill out the form in our online filing application.

Download a printable version of Form COM5026 by clicking the link below or browse more documents and templates provided by the Ohio Department of Commerce.

Download Form COM5026 Application for Hotel / Motel License Changes - Ohio

4.4 of 5 (20 votes)
  • Form COM5026 Application for Hotel/Motel License Changes - Ohio

    1

  • Form COM5026 Application for Hotel/Motel License Changes - Ohio, Page 2

    2

  • Form COM5026 Application for Hotel / Motel License Changes - Ohio, Page 1
  • Form COM5026 Application for Hotel / Motel License Changes - Ohio, Page 2
Prev 1 2 Next
ADVERTISEMENT

Related Documents