Application for Urban Forestry Permit - City of Fort Worth, Texas

Application for Urban Forestry Permit - City of Fort Worth, Texas

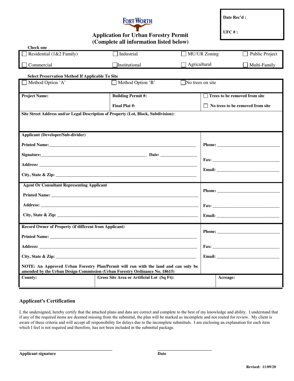
Application for Urban Forestry Permit is a legal document that was released by the Development Services Department - City of Fort Worth, Texas - a government authority operating within Texas. The form may be used strictly within City of Fort Worth.

FAQ

Q: What is an Urban Forestry Permit?
A: An Urban Forestry Permit is a permit required by the City of Fort Worth, Texas for any work that involves planting, pruning, or removing trees within the city limits.

Q: Why do I need an Urban Forestry Permit?
A: You need an Urban Forestry Permit to ensure that the trees in Fort Worth are properly managed and protected.

Q: Who needs to obtain an Urban Forestry Permit?
A: Anyone who wants to plant, prune, or remove trees within the city limits of Fort Worth, Texas needs to obtain an Urban Forestry Permit.

Q: How do I apply for an Urban Forestry Permit?
A: You can apply for an Urban Forestry Permit by submitting an application to the City of Fort Worth’s Planning and Development Department.

Q: What information do I need to provide in the application?
A: In the application, you will need to provide details about the location of the trees, the proposed work to be done, and any other relevant information requested by the City.

Q: Are there any fees associated with the Urban Forestry Permit?
A: Yes, there are fees associated with the Urban Forestry Permit. The specific fees depend on the scope of the work being done.

Q: How long does it take to process an Urban Forestry Permit?
A: The processing time for an Urban Forestry Permit varies, but it typically takes a few weeks.

Q: What are the consequences of not obtaining an Urban Forestry Permit?
A: If you do not obtain an Urban Forestry Permit for work involving trees in Fort Worth, Texas, you may be subject to fines and penalties.

Q: Can I appeal a decision regarding my Urban Forestry Permit application?
A: Yes, you can appeal a decision regarding your Urban Forestry Permit application by contacting the City of Fort Worth’s Planning and Development Department.

Q: Who can I contact for more information about Urban Forestry Permits in Fort Worth, Texas?
A: You can contact the City of Fort Worth’s Planning and Development Department for more information about Urban Forestry Permits.

ADVERTISEMENT

Form Details:

  • Released on November 9, 2020;
  • The latest edition currently provided by the Development Services Department - City of Fort Worth, Texas;
  • Ready to use and print;
  • Easy to customize;
  • Compatible with most PDF-viewing applications;
  • Fill out the form in our online filing application.

Download a printable version of the form by clicking the link below or browse more documents and templates provided by the Development Services Department - City of Fort Worth, Texas.

Download Application for Urban Forestry Permit - City of Fort Worth, Texas

4.8 of 5 (29 votes)
  • Application for Urban Forestry Permit - City of Fort Worth, Texas

    1

  • Application for Urban Forestry Permit - City of Fort Worth, Texas, Page 2

    2

  • Application for Urban Forestry Permit - City of Fort Worth, Texas, Page 3

    3

  • Application for Urban Forestry Permit - City of Fort Worth, Texas, Page 4

    4

  • Application for Urban Forestry Permit - City of Fort Worth, Texas, Page 5

    5

  • Application for Urban Forestry Permit - City of Fort Worth, Texas, Page 6

    6

  • Application for Urban Forestry Permit - City of Fort Worth, Texas, Page 7

    7

  • Application for Urban Forestry Permit - City of Fort Worth, Texas, Page 8

    8

  • Application for Urban Forestry Permit - City of Fort Worth, Texas, Page 9

    9

  • Application for Urban Forestry Permit - City of Fort Worth, Texas, Page 1
  • Application for Urban Forestry Permit - City of Fort Worth, Texas, Page 2
  • Application for Urban Forestry Permit - City of Fort Worth, Texas, Page 3
  • Application for Urban Forestry Permit - City of Fort Worth, Texas, Page 4
  • Application for Urban Forestry Permit - City of Fort Worth, Texas, Page 5
  • Application for Urban Forestry Permit - City of Fort Worth, Texas, Page 6
  • Application for Urban Forestry Permit - City of Fort Worth, Texas, Page 7
  • Application for Urban Forestry Permit - City of Fort Worth, Texas, Page 8
  • Application for Urban Forestry Permit - City of Fort Worth, Texas, Page 9
Prev 1 2 3 4 5 ... 9 Next
ADVERTISEMENT

Related Documents