Form 0252E Application for Registered Charities Tax Rebate - Ontario, Canada

Notification Icon This version of the form is not currently in use and is provided for reference only. Download this version of Form 0252E for the current year.

Form 0252E Application for Registered Charities Tax Rebate - Ontario, Canada

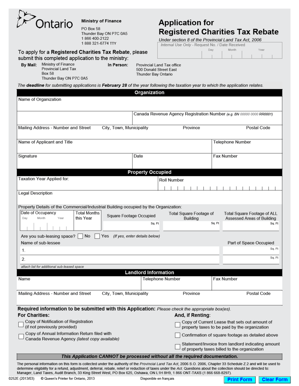
Form 0252E Application for Registered Charities Tax Rebate in Ontario, Canada is used for applying for a tax rebate for registered charities in the province of Ontario.

The Form 0252E Application for Registered Charities Tax Rebate in Ontario, Canada is filed by registered charitable organizations themselves.

FAQ

Q: What is Form 0252E?
A: Form 0252E is an application for registered charities tax rebate in Ontario, Canada.

Q: Who can use Form 0252E?
A: Registered charities in Ontario, Canada can use Form 0252E.

Q: What is the purpose of Form 0252E?
A: The purpose of Form 0252E is to claim a rebate of property taxes for registered charities in Ontario.

Q: What documents do I need to submit with Form 0252E?
A: You will need to submit supporting documents such as property assessment information, tax cancellation or exemption information, and any other relevant documents.

Q: When is the deadline to submit Form 0252E?
A: The deadline to submit Form 0252E may vary, so it is best to check with the Ontario Ministry of Finance or the municipality where the property is located.

Q: Is there a fee to submit Form 0252E?
A: There is no fee to submit Form 0252E.

Q: Can I submit Form 0252E electronically?
A: Currently, Form 0252E must be submitted by mail or in person.

Q: What happens after I submit Form 0252E?
A: After submitting Form 0252E, it will be reviewed by the Ontario Ministry of Finance. If approved, you may be eligible for a rebate on your property taxes.

ADVERTISEMENT

Download Form 0252E Application for Registered Charities Tax Rebate - Ontario, Canada

4.3 of 5 (27 votes)
  • Form 0252E Application for Registered Charities Tax Rebate - Ontario, Canada

    1

  • Form 0252E Application for Registered Charities Tax Rebate - Ontario, Canada, Page 2

    2

  • Form 0252E Application for Registered Charities Tax Rebate - Ontario, Canada, Page 1
  • Form 0252E Application for Registered Charities Tax Rebate - Ontario, Canada, Page 2
Prev 1 2 Next
ADVERTISEMENT

Related Documents