Form REV84 0001A Real Estate Excise Tax Affidavit - Washington

Notification Icon This version of the form is not currently in use and is provided for reference only. Download this version of Form REV84 0001A for the current year.

Form REV84 0001A Real Estate Excise Tax Affidavit - Washington

What Is Form REV84 0001A?

This is a legal form that was released by the Washington State Department of Revenue - a government authority operating within Washington. As of today, no separate filing guidelines for the form are provided by the issuing department.

FAQ

Q: What is the REV84 0001A Real Estate Excise Tax Affidavit?
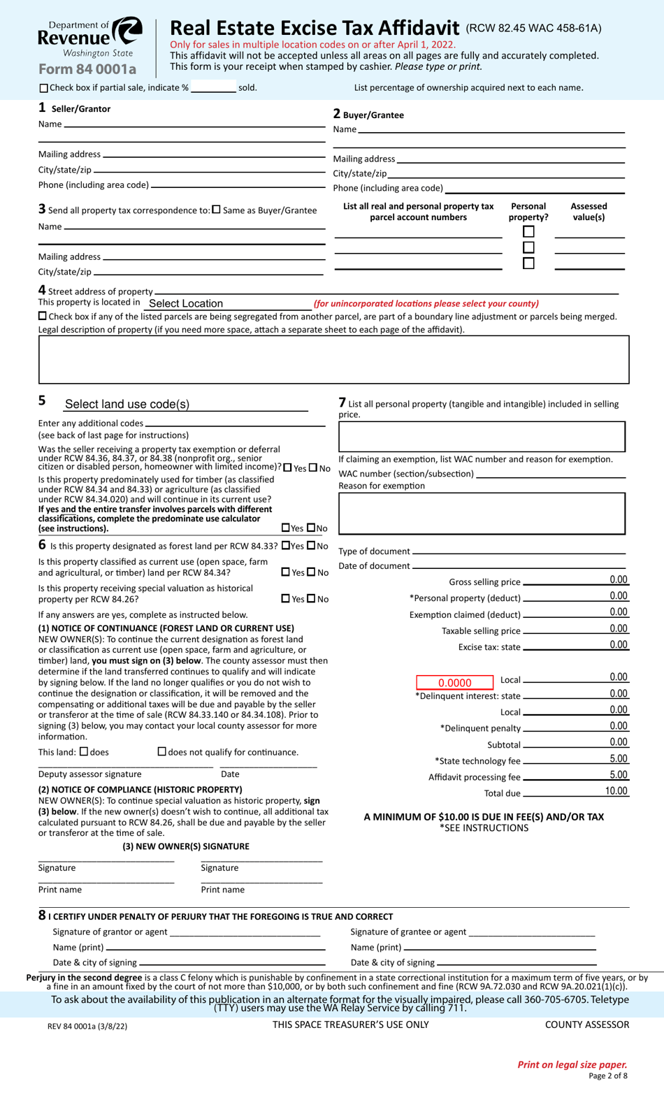
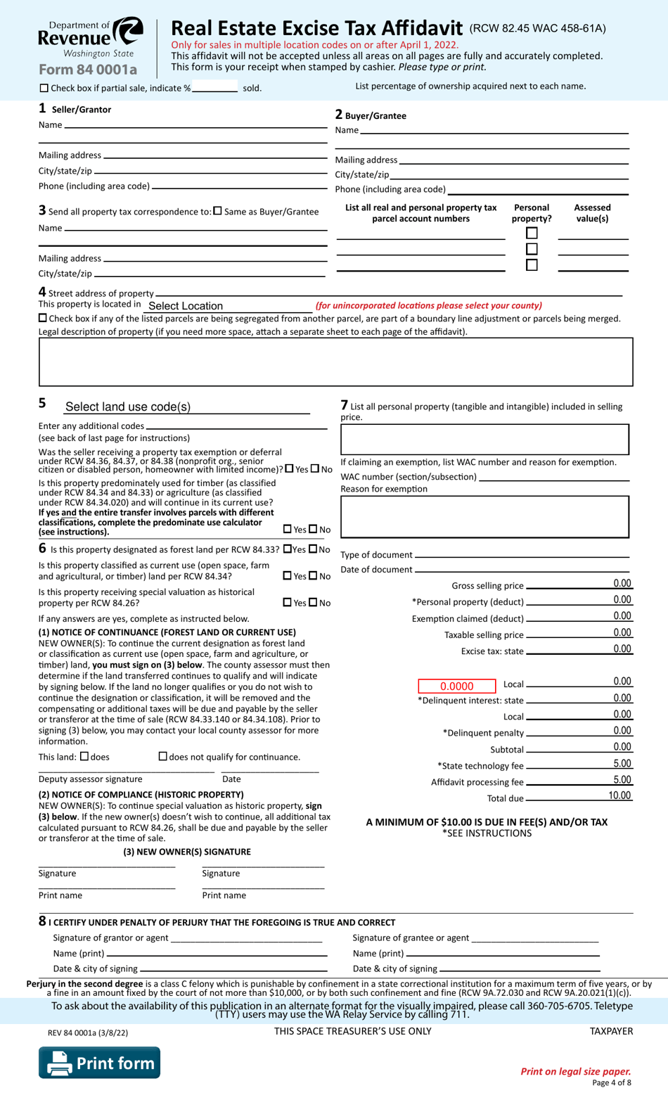
A: The REV84 0001A Real Estate Excise Tax Affidavit is a form used in Washington for reporting and paying real estate excise tax.

Q: When is the REV84 0001A Real Estate Excise Tax Affidavit used?
A: The REV84 0001A Real Estate Excise Tax Affidavit is used when there is a transfer of ownership of real property in Washington.

Q: Who needs to fill out the REV84 0001A Real Estate Excise Tax Affidavit?
A: The seller or their authorized representative is responsible for filling out the REV84 0001A Real Estate Excise Tax Affidavit.

Q: What information is required on the REV84 0001A Real Estate Excise Tax Affidavit?
A: The REV84 0001A Real Estate Excise Tax Affidavit requires information about the buyer, seller, property, and the details of the transfer.

Q: What is the deadline for submitting the REV84 0001A Real Estate Excise Tax Affidavit?
A: The REV84 0001A Real Estate Excise Tax Affidavit must be submitted within 30 days of the property transfer.

Q: Is there a fee for filing the REV84 0001A Real Estate Excise Tax Affidavit?
A: Yes, there is a fee based on the value of the property being transferred. The fee is typically paid by the seller.

Q: What happens if I fail to submit the REV84 0001A Real Estate Excise Tax Affidavit?
A: Failure to submit the REV84 0001A Real Estate Excise Tax Affidavit can result in penalties and interest charges.

Q: Can I submit the REV84 0001A Real Estate Excise Tax Affidavit electronically?
A: Yes, the REV84 0001A Real Estate Excise Tax Affidavit can be submitted electronically through the Washington State Department of Revenue's e-file system.

Q: Are there any exemptions or exclusions from the real estate excise tax?
A: Yes, there are certain exemptions and exclusions available based on the type of transfer or the parties involved. It is recommended to consult with a tax professional or the Washington State Department of Revenue for more information.

ADVERTISEMENT

Form Details:

  • Released on March 8, 2022;
  • The latest edition provided by the Washington State Department of Revenue;
  • Easy to use and ready to print;
  • Quick to customize;
  • Compatible with most PDF-viewing applications;
  • Fill out the form in our online filing application.

Download a fillable version of Form REV84 0001A by clicking the link below or browse more documents and templates provided by the Washington State Department of Revenue.

Download Form REV84 0001A Real Estate Excise Tax Affidavit - Washington

4.7 of 5 (20 votes)
  • Form REV84 0001A Real Estate Excise Tax Affidavit - Washington

    1

  • Form REV84 0001A Real Estate Excise Tax Affidavit - Washington, Page 2

    2

  • Form REV84 0001A Real Estate Excise Tax Affidavit - Washington, Page 3

    3

  • Form REV84 0001A Real Estate Excise Tax Affidavit - Washington, Page 4

    4

  • Form REV84 0001A Real Estate Excise Tax Affidavit - Washington, Page 5

    5

  • Form REV84 0001A Real Estate Excise Tax Affidavit - Washington, Page 6

    6

  • Form REV84 0001A Real Estate Excise Tax Affidavit - Washington, Page 7

    7

  • Form REV84 0001A Real Estate Excise Tax Affidavit - Washington, Page 8

    8

  • Form REV84 0001A Real Estate Excise Tax Affidavit - Washington, Page 1
  • Form REV84 0001A Real Estate Excise Tax Affidavit - Washington, Page 2
  • Form REV84 0001A Real Estate Excise Tax Affidavit - Washington, Page 3
  • Form REV84 0001A Real Estate Excise Tax Affidavit - Washington, Page 4
  • Form REV84 0001A Real Estate Excise Tax Affidavit - Washington, Page 5
  • Form REV84 0001A Real Estate Excise Tax Affidavit - Washington, Page 6
  • Form REV84 0001A Real Estate Excise Tax Affidavit - Washington, Page 7
  • Form REV84 0001A Real Estate Excise Tax Affidavit - Washington, Page 8
Prev 1 2 3 4 5 ... 8 Next
ADVERTISEMENT