Form REV84 0001A Real Estate Excise Tax Affidavit - Washington

Notification Icon This version of the form is not currently in use and is provided for reference only. Download this version of Form REV84 0001A for the current year.

Form REV84 0001A Real Estate Excise Tax Affidavit - Washington

What Is Form REV84 0001A?

This is a legal form that was released by the Washington State Department of Revenue - a government authority operating within Washington. As of today, no separate filing guidelines for the form are provided by the issuing department.

FAQ

Q: What is form REV84 0001A?
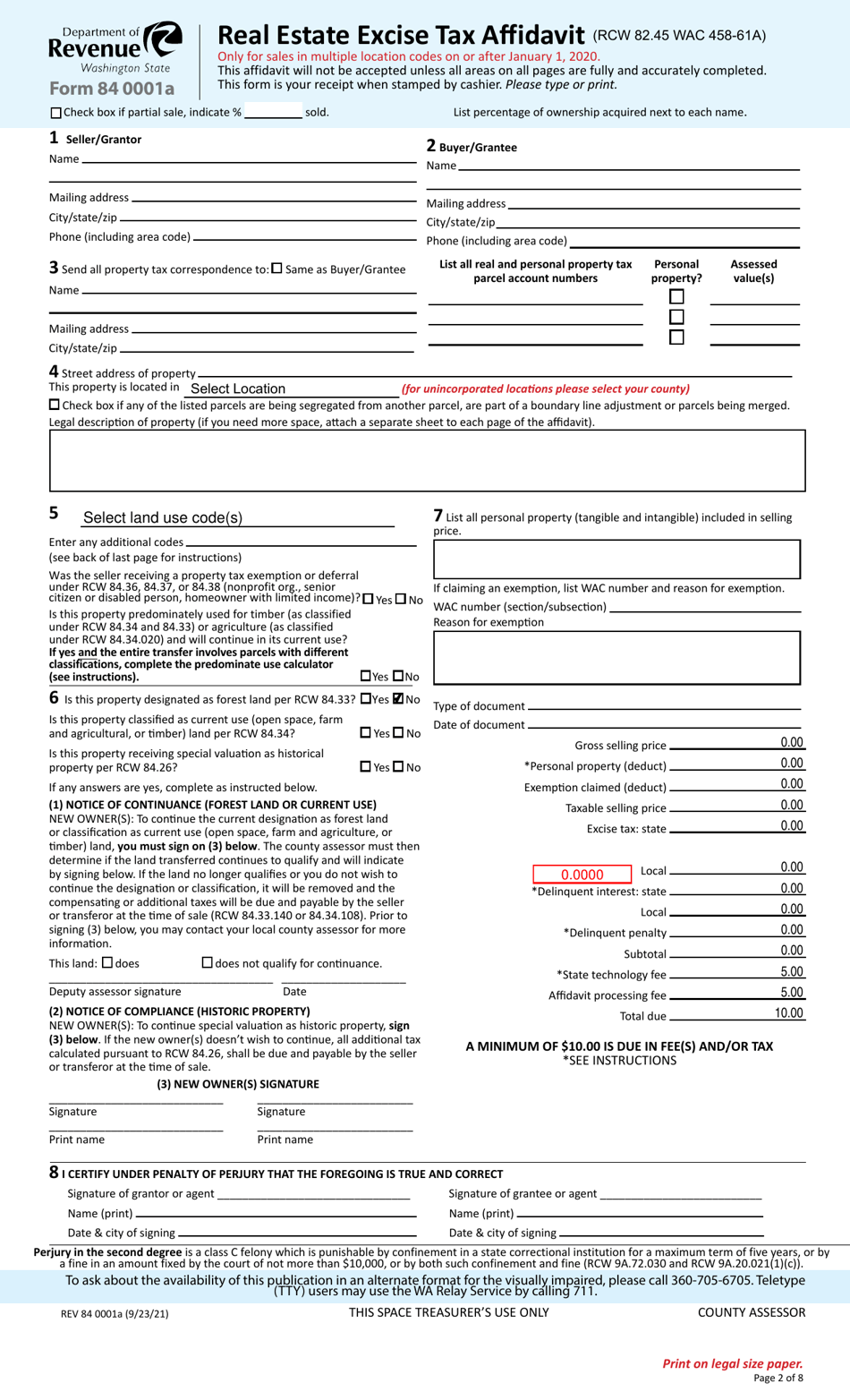
A: Form REV84 0001A is the Real Estate Excise Tax Affidavit used in the state of Washington.

Q: What is the purpose of the Real Estate Excise Tax Affidavit?
A: The Real Estate Excise Tax Affidavit is used to report the sale or transfer of real property and calculate the excise tax owed.

Q: Who needs to file the Real Estate Excise Tax Affidavit?
A: The buyer or transferee of the real property is responsible for filing the Real Estate Excise Tax Affidavit.

Q: What information is required on the Real Estate Excise Tax Affidavit?
A: The form requires information about the buyer, seller, property details, and the sale price or value of the property.

ADVERTISEMENT

Form Details:

  • Released on September 23, 2021;
  • The latest edition provided by the Washington State Department of Revenue;
  • Easy to use and ready to print;
  • Quick to customize;
  • Compatible with most PDF-viewing applications;
  • Fill out the form in our online filing application.

Download a fillable version of Form REV84 0001A by clicking the link below or browse more documents and templates provided by the Washington State Department of Revenue.

Download Form REV84 0001A Real Estate Excise Tax Affidavit - Washington

4.8 of 5 (27 votes)
  • Form REV84 0001A Real Estate Excise Tax Affidavit - Washington

    1

  • Form REV84 0001A Real Estate Excise Tax Affidavit - Washington, Page 2

    2

  • Form REV84 0001A Real Estate Excise Tax Affidavit - Washington, Page 3

    3

  • Form REV84 0001A Real Estate Excise Tax Affidavit - Washington, Page 4

    4

  • Form REV84 0001A Real Estate Excise Tax Affidavit - Washington, Page 5

    5

  • Form REV84 0001A Real Estate Excise Tax Affidavit - Washington, Page 6

    6

  • Form REV84 0001A Real Estate Excise Tax Affidavit - Washington, Page 7

    7

  • Form REV84 0001A Real Estate Excise Tax Affidavit - Washington, Page 8

    8

  • Form REV84 0001A Real Estate Excise Tax Affidavit - Washington, Page 1
  • Form REV84 0001A Real Estate Excise Tax Affidavit - Washington, Page 2
  • Form REV84 0001A Real Estate Excise Tax Affidavit - Washington, Page 3
  • Form REV84 0001A Real Estate Excise Tax Affidavit - Washington, Page 4
  • Form REV84 0001A Real Estate Excise Tax Affidavit - Washington, Page 5
  • Form REV84 0001A Real Estate Excise Tax Affidavit - Washington, Page 6
  • Form REV84 0001A Real Estate Excise Tax Affidavit - Washington, Page 7
  • Form REV84 0001A Real Estate Excise Tax Affidavit - Washington, Page 8
Prev 1 2 3 4 5 ... 8 Next
ADVERTISEMENT