Form BPV-030A Application for Pressure Vessel Permit / Installation Inspection - Massachusetts

Notification Icon This version of the form is not currently in use and is provided for reference only. Download this version of Form BPV-030A for the current year.

Form BPV-030A Application for Pressure Vessel Permit / Installation Inspection - Massachusetts

What Is Form BPV-030A?

This is a legal form that was released by the Massachusetts Department of Fire Services - a government authority operating within Massachusetts. As of today, no separate filing guidelines for the form are provided by the issuing department.

FAQ

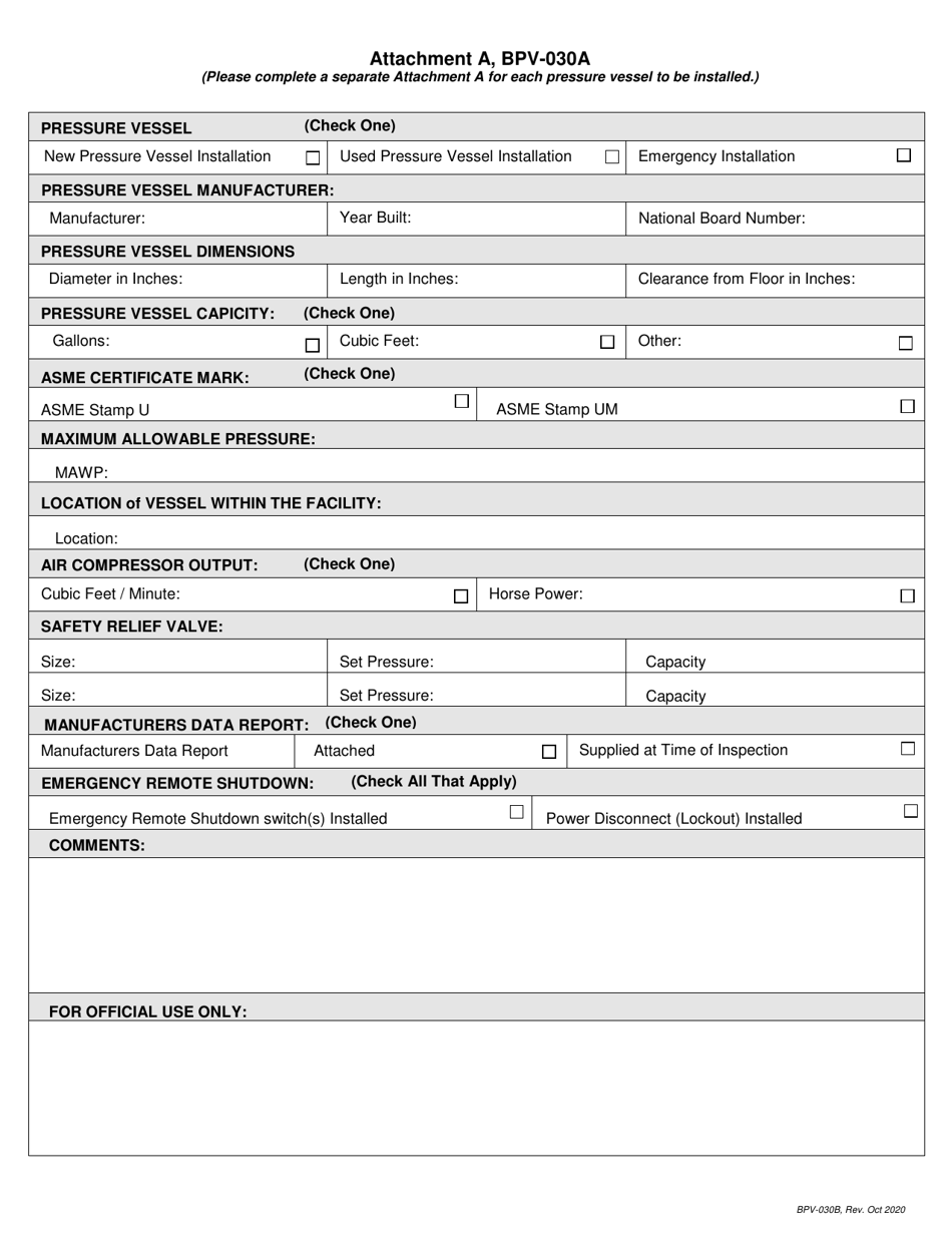
Q: What is Form BPV-030A?
A: Form BPV-030A is an application for a pressure vessel permit/installation inspection in Massachusetts.

Q: What is the purpose of Form BPV-030A?
A: The purpose of Form BPV-030A is to apply for a permit and schedule an inspection for the installation of a pressure vessel.

Q: Do I need to fill out Form BPV-030A?
A: Yes, you need to fill out Form BPV-030A if you are installing a pressure vessel in Massachusetts and require a permit and inspection.

Q: Are there any fees associated with Form BPV-030A?
A: Yes, there are fees associated with Form BPV-030A. The fee amount will depend on the size and type of pressure vessel being installed.

Q: What documents do I need to attach with Form BPV-030A?
A: You may be required to attach supporting documents such as plans, specifications, and calculations, depending on the type of pressure vessel installation.

Q: How long does it take to process Form BPV-030A?
A: The processing time for Form BPV-030A may vary, but you can expect to receive a response within a few weeks after submission.

ADVERTISEMENT

Form Details:

  • Released on October 1, 2020;
  • The latest edition provided by the Massachusetts Department of Fire Services;
  • Easy to use and ready to print;
  • Quick to customize;
  • Compatible with most PDF-viewing applications;
  • Fill out the form in our online filing application.

Download a printable version of Form BPV-030A by clicking the link below or browse more documents and templates provided by the Massachusetts Department of Fire Services.

Download Form BPV-030A Application for Pressure Vessel Permit / Installation Inspection - Massachusetts

4.3 of 5 (15 votes)
  • Form BPV-030A Application for Pressure Vessel Permit/Installation Inspection - Massachusetts

    1

  • Form BPV-030A Application for Pressure Vessel Permit/Installation Inspection - Massachusetts, Page 2

    2

  • Form BPV-030A Application for Pressure Vessel Permit / Installation Inspection - Massachusetts, Page 1
  • Form BPV-030A Application for Pressure Vessel Permit / Installation Inspection - Massachusetts, Page 2
Prev 1 2 Next
ADVERTISEMENT

Related Documents