Form 7165 Notification Form for Industrial Generators and Transporters of Solid Waste - Louisiana

Notification Icon This version of the form is not currently in use and is provided for reference only. Download this version of Form 7165 for the current year.

Form 7165 Notification Form for Industrial Generators and Transporters of Solid Waste - Louisiana

What Is Form 7165?

This is a legal form that was released by the Louisiana Department of Environmental Quality - a government authority operating within Louisiana. As of today, no separate filing guidelines for the form are provided by the issuing department.

FAQ

Q: What is Form 7165?
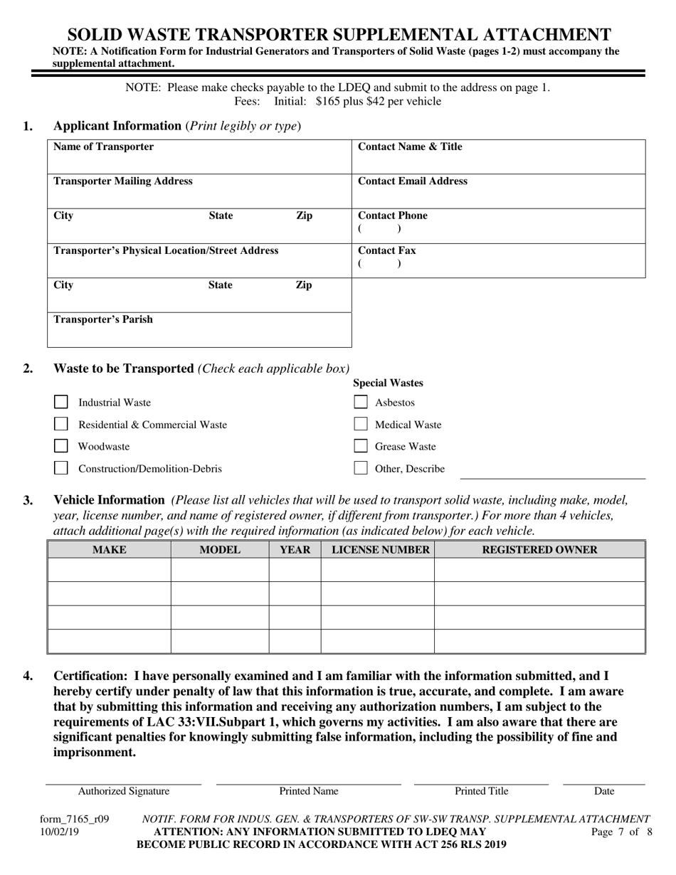
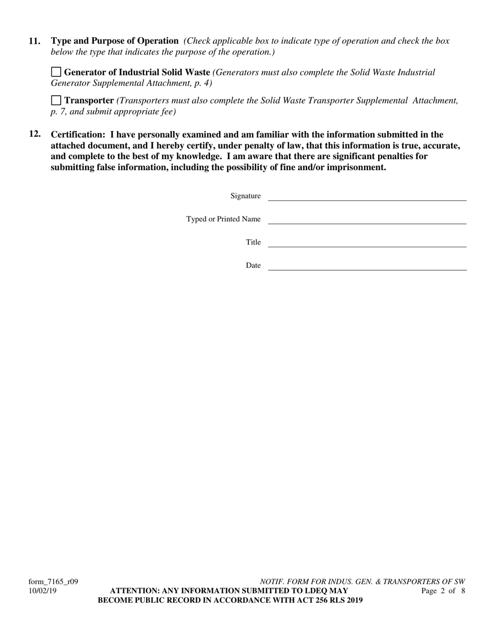
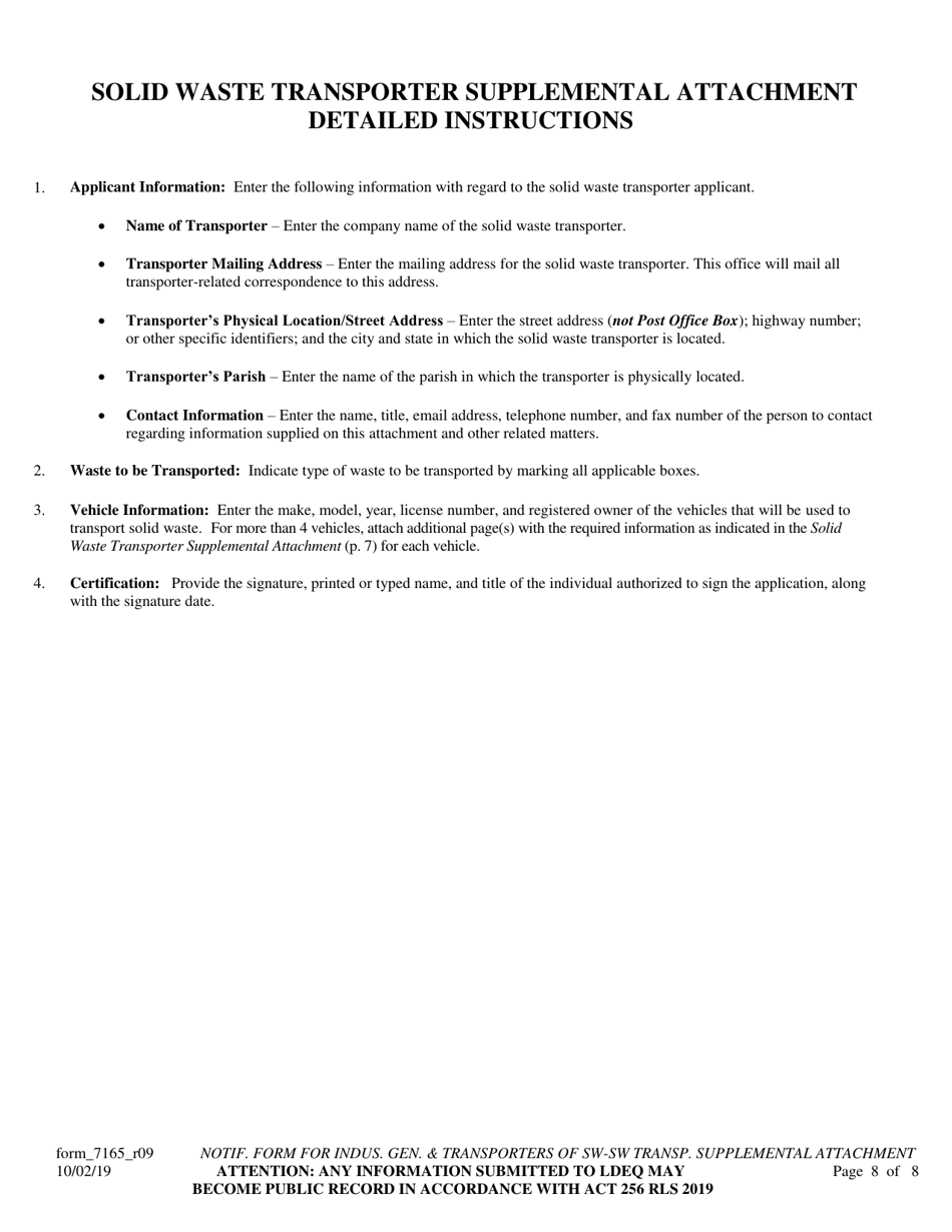
A: Form 7165 is the Notification Form for Industrial Generators and Transporters of Solid Waste in Louisiana.

Q: Who needs to fill out Form 7165?
A: Industrial generators and transporters of solid waste in Louisiana need to fill out Form 7165.

Q: What is the purpose of Form 7165?
A: The purpose of Form 7165 is to notify the Louisiana Department of Environmental Quality (LDEQ) of waste generation and transportation activities.

Q: What information is required on Form 7165?
A: Form 7165 requires information about the waste generator or transporter, the type and quantity of waste being generated or transported, and the disposal or recycling method.

Q: Is there a fee for submitting Form 7165?
A: Yes, there is a fee associated with submitting Form 7165. The fee amount depends on the type and quantity of waste being generated or transported.

Q: Is Form 7165 required for all types of waste?
A: No, Form 7165 is not required for all types of waste. It is specifically for industrial generators and transporters of solid waste in Louisiana.

Q: What are the consequences of not submitting Form 7165?
A: Failure to submit Form 7165 or providing false or misleading information on the form may result in penalties and enforcement actions by LDEQ.

Q: Are there any exemptions from filing Form 7165?
A: Yes, there are exemptions for certain types of waste generators and transporters. These exemptions are outlined in the Louisiana Administrative Code.

ADVERTISEMENT

Form Details:

  • Released on October 2, 2019;
  • The latest edition provided by the Louisiana Department of Environmental Quality;
  • Easy to use and ready to print;
  • Quick to customize;
  • Compatible with most PDF-viewing applications;
  • Fill out the form in our online filing application.

Download a printable version of Form 7165 by clicking the link below or browse more documents and templates provided by the Louisiana Department of Environmental Quality.

Download Form 7165 Notification Form for Industrial Generators and Transporters of Solid Waste - Louisiana

4.5 of 5 (20 votes)
  • Form 7165 Notification Form for Industrial Generators and Transporters of Solid Waste - Louisiana

    1

  • Form 7165 Notification Form for Industrial Generators and Transporters of Solid Waste - Louisiana, Page 2

    2

  • Form 7165 Notification Form for Industrial Generators and Transporters of Solid Waste - Louisiana, Page 3

    3

  • Form 7165 Notification Form for Industrial Generators and Transporters of Solid Waste - Louisiana, Page 4

    4

  • Form 7165 Notification Form for Industrial Generators and Transporters of Solid Waste - Louisiana, Page 5

    5

  • Form 7165 Notification Form for Industrial Generators and Transporters of Solid Waste - Louisiana, Page 6

    6

  • Form 7165 Notification Form for Industrial Generators and Transporters of Solid Waste - Louisiana, Page 7

    7

  • Form 7165 Notification Form for Industrial Generators and Transporters of Solid Waste - Louisiana, Page 8

    8

  • Form 7165 Notification Form for Industrial Generators and Transporters of Solid Waste - Louisiana, Page 1
  • Form 7165 Notification Form for Industrial Generators and Transporters of Solid Waste - Louisiana, Page 2
  • Form 7165 Notification Form for Industrial Generators and Transporters of Solid Waste - Louisiana, Page 3
  • Form 7165 Notification Form for Industrial Generators and Transporters of Solid Waste - Louisiana, Page 4
  • Form 7165 Notification Form for Industrial Generators and Transporters of Solid Waste - Louisiana, Page 5
  • Form 7165 Notification Form for Industrial Generators and Transporters of Solid Waste - Louisiana, Page 6
  • Form 7165 Notification Form for Industrial Generators and Transporters of Solid Waste - Louisiana, Page 7
  • Form 7165 Notification Form for Industrial Generators and Transporters of Solid Waste - Louisiana, Page 8
Prev 1 2 3 4 5 ... 8 Next
ADVERTISEMENT