ADEM Form 021 Notice of Termination - Npdes General Permit Number Alr100000 - Alabama

ADEM Form 021 Notice of Termination - Npdes General Permit Number Alr100000 - Alabama

What Is ADEM Form 021?

This is a legal form that was released by the Alabama Department of Environmental Management - a government authority operating within Alabama. As of today, no separate filing guidelines for the form are provided by the issuing department.

FAQ

Q: What is ADEM Form 021?
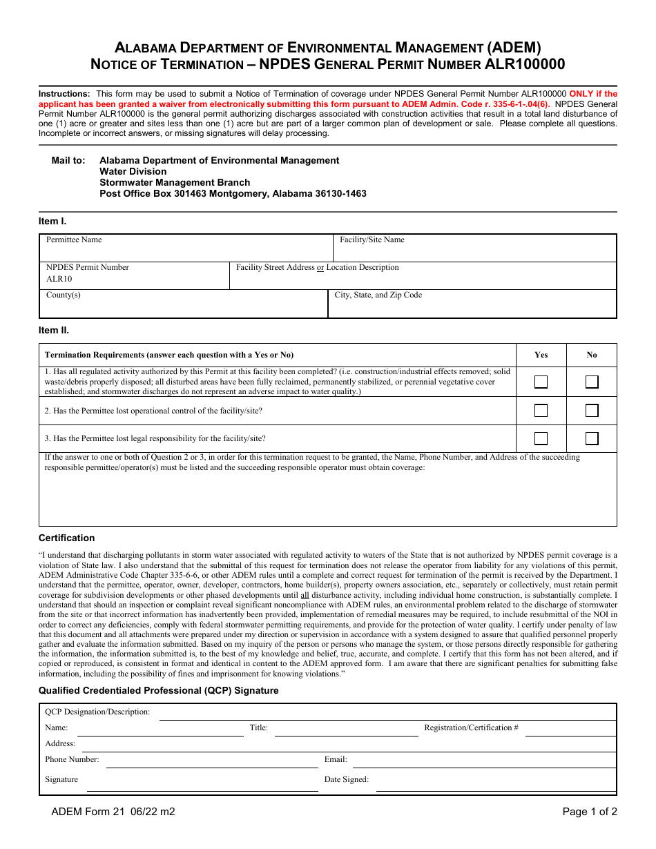
A: ADEM Form 021 is a Notice of Termination.

Q: What is NPDES General Permit Number ALR100000?
A: NPDES General Permit Number ALR100000 is a permit issued by the Alabama Department of Environmental Management (ADEM) for the discharge of pollutants into navigable waters.

Q: What is the purpose of ADEM Form 021?
A: The purpose of ADEM Form 021 is to provide notice of the termination of a NPDES General Permit.

Q: Who is required to submit ADEM Form 021?
A: The permittee or operator who holds the NPDES General Permit is required to submit ADEM Form 021.

Q: What information is required in ADEM Form 021?
A: ADEM Form 021 requires information such as the permit number, termination date, reason for termination, and contact information.

ADVERTISEMENT

Form Details:

  • Released on June 1, 2022;
  • The latest edition provided by the Alabama Department of Environmental Management;
  • Easy to use and ready to print;
  • Quick to customize;
  • Compatible with most PDF-viewing applications;
  • Fill out the form in our online filing application.

Download a printable version of ADEM Form 021 by clicking the link below or browse more documents and templates provided by the Alabama Department of Environmental Management.

Download ADEM Form 021 Notice of Termination - Npdes General Permit Number Alr100000 - Alabama

4.5 of 5 (26 votes)
  • ADEM Form 021 Notice of Termination - Npdes General Permit Number Alr100000 - Alabama

    1

  • ADEM Form 021 Notice of Termination - Npdes General Permit Number Alr100000 - Alabama, Page 2

    2

  • ADEM Form 021 Notice of Termination - Npdes General Permit Number Alr100000 - Alabama, Page 3

    3

  • ADEM Form 021 Notice of Termination - Npdes General Permit Number Alr100000 - Alabama, Page 4

    4

  • ADEM Form 021 Notice of Termination - Npdes General Permit Number Alr100000 - Alabama, Page 5

    5

  • ADEM Form 021 Notice of Termination - Npdes General Permit Number Alr100000 - Alabama, Page 6

    6

  • ADEM Form 021 Notice of Termination - Npdes General Permit Number Alr100000 - Alabama, Page 7

    7

  • ADEM Form 021 Notice of Termination - Npdes General Permit Number Alr100000 - Alabama, Page 8

    8

  • ADEM Form 021 Notice of Termination - Npdes General Permit Number Alr100000 - Alabama, Page 1
  • ADEM Form 021 Notice of Termination - Npdes General Permit Number Alr100000 - Alabama, Page 2
  • ADEM Form 021 Notice of Termination - Npdes General Permit Number Alr100000 - Alabama, Page 3
  • ADEM Form 021 Notice of Termination - Npdes General Permit Number Alr100000 - Alabama, Page 4
  • ADEM Form 021 Notice of Termination - Npdes General Permit Number Alr100000 - Alabama, Page 5
  • ADEM Form 021 Notice of Termination - Npdes General Permit Number Alr100000 - Alabama, Page 6
  • ADEM Form 021 Notice of Termination - Npdes General Permit Number Alr100000 - Alabama, Page 7
  • ADEM Form 021 Notice of Termination - Npdes General Permit Number Alr100000 - Alabama, Page 8
Prev 1 2 3 4 5 ... 8 Next
ADVERTISEMENT

Related Documents