ADEM Form 024 Notice of Intent - Npdes General Permit Number Alr100000 (Construction Stormwater) - Alabama

ADEM Form 024 Notice of Intent - Npdes General Permit Number Alr100000 (Construction Stormwater) - Alabama

What Is ADEM Form 024?

This is a legal form that was released by the Alabama Department of Environmental Management - a government authority operating within Alabama. As of today, no separate filing guidelines for the form are provided by the issuing department.

FAQ

Q: What is ADEM Form 024?
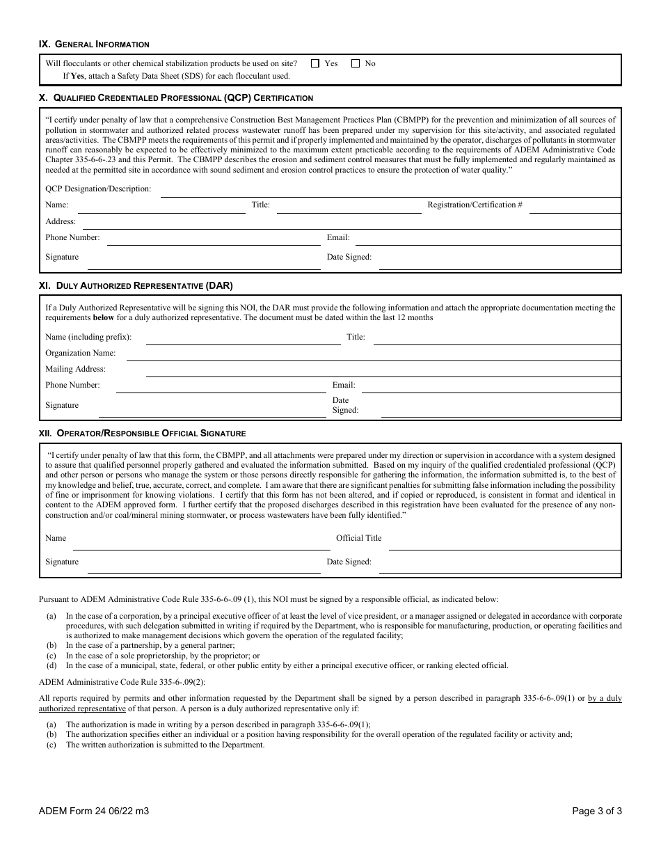
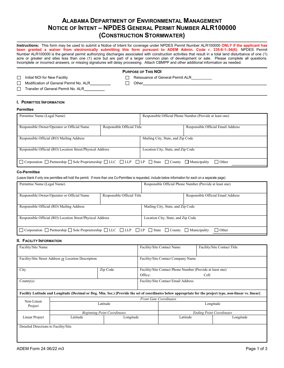
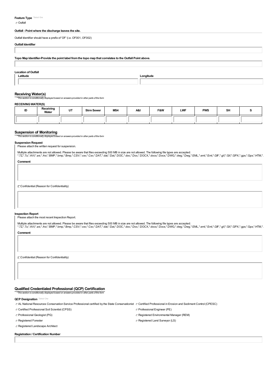
A: ADEM Form 024 is a form used in Alabama for the Notice of Intent (NOI) for the NPDES General Permit ALR100000 for Construction Stormwater.

Q: What is the NPDES General Permit ALR100000?
A: The NPDES General Permit ALR100000 is a permit issued by the Alabama Department of Environmental Management (ADEM) for construction activities that may generate stormwater runoff.

Q: What is the purpose of the Notice of Intent (NOI)?
A: The Notice of Intent (NOI) is a form that must be submitted by the operator of a construction activity to notify ADEM of their intention to be covered under the NPDES General Permit ALR100000.

Q: Who needs to submit the Notice of Intent (NOI)?
A: The operator of a construction activity that may generate stormwater runoff in Alabama needs to submit the Notice of Intent (NOI) to be covered under the NPDES General Permit ALR100000.

ADVERTISEMENT

Form Details:

  • Released on June 1, 2022;
  • The latest edition provided by the Alabama Department of Environmental Management;
  • Easy to use and ready to print;
  • Quick to customize;
  • Compatible with most PDF-viewing applications;
  • Fill out the form in our online filing application.

Download a printable version of ADEM Form 024 by clicking the link below or browse more documents and templates provided by the Alabama Department of Environmental Management.

Download ADEM Form 024 Notice of Intent - Npdes General Permit Number Alr100000 (Construction Stormwater) - Alabama

4.8 of 5 (16 votes)
  • ADEM Form 024 Notice of Intent - Npdes General Permit Number Alr100000 (Construction Stormwater) - Alabama

    1

  • ADEM Form 024 Notice of Intent - Npdes General Permit Number Alr100000 (Construction Stormwater) - Alabama, Page 2

    2

  • ADEM Form 024 Notice of Intent - Npdes General Permit Number Alr100000 (Construction Stormwater) - Alabama, Page 3

    3

  • ADEM Form 024 Notice of Intent - Npdes General Permit Number Alr100000 (Construction Stormwater) - Alabama, Page 4

    4

  • ADEM Form 024 Notice of Intent - Npdes General Permit Number Alr100000 (Construction Stormwater) - Alabama, Page 5

    5

  • ADEM Form 024 Notice of Intent - Npdes General Permit Number Alr100000 (Construction Stormwater) - Alabama, Page 6

    6

  • ADEM Form 024 Notice of Intent - Npdes General Permit Number Alr100000 (Construction Stormwater) - Alabama, Page 7

    7

  • ADEM Form 024 Notice of Intent - Npdes General Permit Number Alr100000 (Construction Stormwater) - Alabama, Page 8

    8

  • ADEM Form 024 Notice of Intent - Npdes General Permit Number Alr100000 (Construction Stormwater) - Alabama, Page 9

    9

  • ADEM Form 024 Notice of Intent - Npdes General Permit Number Alr100000 (Construction Stormwater) - Alabama, Page 10

    10

  • ADEM Form 024 Notice of Intent - Npdes General Permit Number Alr100000 (Construction Stormwater) - Alabama, Page 11

    11

  • ADEM Form 024 Notice of Intent - Npdes General Permit Number Alr100000 (Construction Stormwater) - Alabama, Page 12

    12

  • ADEM Form 024 Notice of Intent - Npdes General Permit Number Alr100000 (Construction Stormwater) - Alabama, Page 13

    13

  • ADEM Form 024 Notice of Intent - Npdes General Permit Number Alr100000 (Construction Stormwater) - Alabama, Page 14

    14

  • ADEM Form 024 Notice of Intent - Npdes General Permit Number Alr100000 (Construction Stormwater) - Alabama, Page 15

    15

  • ADEM Form 024 Notice of Intent - Npdes General Permit Number Alr100000 (Construction Stormwater) - Alabama, Page 16

    16

  • ADEM Form 024 Notice of Intent - Npdes General Permit Number Alr100000 (Construction Stormwater) - Alabama, Page 17

    17

  • ADEM Form 024 Notice of Intent - Npdes General Permit Number Alr100000 (Construction Stormwater) - Alabama, Page 18

    18

  • ADEM Form 024 Notice of Intent - Npdes General Permit Number Alr100000 (Construction Stormwater) - Alabama, Page 19

    19

  • ADEM Form 024 Notice of Intent - Npdes General Permit Number Alr100000 (Construction Stormwater) - Alabama, Page 20

    20

  • ADEM Form 024 Notice of Intent - Npdes General Permit Number Alr100000 (Construction Stormwater) - Alabama, Page 21

    21

  • ADEM Form 024 Notice of Intent - Npdes General Permit Number Alr100000 (Construction Stormwater) - Alabama, Page 22

    22

  • ADEM Form 024 Notice of Intent - Npdes General Permit Number Alr100000 (Construction Stormwater) - Alabama, Page 23

    23

  • ADEM Form 024 Notice of Intent - Npdes General Permit Number Alr100000 (Construction Stormwater) - Alabama, Page 24

    24

  • ADEM Form 024 Notice of Intent - Npdes General Permit Number Alr100000 (Construction Stormwater) - Alabama, Page 25

    25

  • ADEM Form 024 Notice of Intent - Npdes General Permit Number Alr100000 (Construction Stormwater) - Alabama, Page 26

    26

  • ADEM Form 024 Notice of Intent - Npdes General Permit Number Alr100000 (Construction Stormwater) - Alabama, Page 27

    27

  • ADEM Form 024 Notice of Intent - Npdes General Permit Number Alr100000 (Construction Stormwater) - Alabama, Page 28

    28

  • ADEM Form 024 Notice of Intent - Npdes General Permit Number Alr100000 (Construction Stormwater) - Alabama, Page 29

    29

  • ADEM Form 024 Notice of Intent - Npdes General Permit Number Alr100000 (Construction Stormwater) - Alabama, Page 30

    30

  • ADEM Form 024 Notice of Intent - Npdes General Permit Number Alr100000 (Construction Stormwater) - Alabama, Page 31

    31

  • ADEM Form 024 Notice of Intent - Npdes General Permit Number Alr100000 (Construction Stormwater) - Alabama, Page 32

    32

  • ADEM Form 024 Notice of Intent - Npdes General Permit Number Alr100000 (Construction Stormwater) - Alabama, Page 33

    33

  • ADEM Form 024 Notice of Intent - Npdes General Permit Number Alr100000 (Construction Stormwater) - Alabama, Page 34

    34

  • ADEM Form 024 Notice of Intent - Npdes General Permit Number Alr100000 (Construction Stormwater) - Alabama, Page 35

    35

  • ADEM Form 024 Notice of Intent - Npdes General Permit Number Alr100000 (Construction Stormwater) - Alabama, Page 36

    36

  • ADEM Form 024 Notice of Intent - Npdes General Permit Number Alr100000 (Construction Stormwater) - Alabama, Page 37

    37

  • ADEM Form 024 Notice of Intent - Npdes General Permit Number Alr100000 (Construction Stormwater) - Alabama, Page 38

    38

  • ADEM Form 024 Notice of Intent - Npdes General Permit Number Alr100000 (Construction Stormwater) - Alabama, Page 39

    39

  • ADEM Form 024 Notice of Intent - Npdes General Permit Number Alr100000 (Construction Stormwater) - Alabama, Page 40

    40

  • ADEM Form 024 Notice of Intent - Npdes General Permit Number Alr100000 (Construction Stormwater) - Alabama, Page 1
  • ADEM Form 024 Notice of Intent - Npdes General Permit Number Alr100000 (Construction Stormwater) - Alabama, Page 2
  • ADEM Form 024 Notice of Intent - Npdes General Permit Number Alr100000 (Construction Stormwater) - Alabama, Page 3
  • ADEM Form 024 Notice of Intent - Npdes General Permit Number Alr100000 (Construction Stormwater) - Alabama, Page 4
  • ADEM Form 024 Notice of Intent - Npdes General Permit Number Alr100000 (Construction Stormwater) - Alabama, Page 5
  • ADEM Form 024 Notice of Intent - Npdes General Permit Number Alr100000 (Construction Stormwater) - Alabama, Page 6
  • ADEM Form 024 Notice of Intent - Npdes General Permit Number Alr100000 (Construction Stormwater) - Alabama, Page 7
  • ADEM Form 024 Notice of Intent - Npdes General Permit Number Alr100000 (Construction Stormwater) - Alabama, Page 8
  • ADEM Form 024 Notice of Intent - Npdes General Permit Number Alr100000 (Construction Stormwater) - Alabama, Page 9
  • ADEM Form 024 Notice of Intent - Npdes General Permit Number Alr100000 (Construction Stormwater) - Alabama, Page 10
  • ADEM Form 024 Notice of Intent - Npdes General Permit Number Alr100000 (Construction Stormwater) - Alabama, Page 11
  • ADEM Form 024 Notice of Intent - Npdes General Permit Number Alr100000 (Construction Stormwater) - Alabama, Page 12
  • ADEM Form 024 Notice of Intent - Npdes General Permit Number Alr100000 (Construction Stormwater) - Alabama, Page 13
  • ADEM Form 024 Notice of Intent - Npdes General Permit Number Alr100000 (Construction Stormwater) - Alabama, Page 14
  • ADEM Form 024 Notice of Intent - Npdes General Permit Number Alr100000 (Construction Stormwater) - Alabama, Page 15
  • ADEM Form 024 Notice of Intent - Npdes General Permit Number Alr100000 (Construction Stormwater) - Alabama, Page 16
  • ADEM Form 024 Notice of Intent - Npdes General Permit Number Alr100000 (Construction Stormwater) - Alabama, Page 17
  • ADEM Form 024 Notice of Intent - Npdes General Permit Number Alr100000 (Construction Stormwater) - Alabama, Page 18
  • ADEM Form 024 Notice of Intent - Npdes General Permit Number Alr100000 (Construction Stormwater) - Alabama, Page 19
  • ADEM Form 024 Notice of Intent - Npdes General Permit Number Alr100000 (Construction Stormwater) - Alabama, Page 20
  • ADEM Form 024 Notice of Intent - Npdes General Permit Number Alr100000 (Construction Stormwater) - Alabama, Page 21
  • ADEM Form 024 Notice of Intent - Npdes General Permit Number Alr100000 (Construction Stormwater) - Alabama, Page 22
  • ADEM Form 024 Notice of Intent - Npdes General Permit Number Alr100000 (Construction Stormwater) - Alabama, Page 23
  • ADEM Form 024 Notice of Intent - Npdes General Permit Number Alr100000 (Construction Stormwater) - Alabama, Page 24
  • ADEM Form 024 Notice of Intent - Npdes General Permit Number Alr100000 (Construction Stormwater) - Alabama, Page 25
  • ADEM Form 024 Notice of Intent - Npdes General Permit Number Alr100000 (Construction Stormwater) - Alabama, Page 26
  • ADEM Form 024 Notice of Intent - Npdes General Permit Number Alr100000 (Construction Stormwater) - Alabama, Page 27
  • ADEM Form 024 Notice of Intent - Npdes General Permit Number Alr100000 (Construction Stormwater) - Alabama, Page 28
  • ADEM Form 024 Notice of Intent - Npdes General Permit Number Alr100000 (Construction Stormwater) - Alabama, Page 29
  • ADEM Form 024 Notice of Intent - Npdes General Permit Number Alr100000 (Construction Stormwater) - Alabama, Page 30
  • ADEM Form 024 Notice of Intent - Npdes General Permit Number Alr100000 (Construction Stormwater) - Alabama, Page 31
  • ADEM Form 024 Notice of Intent - Npdes General Permit Number Alr100000 (Construction Stormwater) - Alabama, Page 32
  • ADEM Form 024 Notice of Intent - Npdes General Permit Number Alr100000 (Construction Stormwater) - Alabama, Page 33
  • ADEM Form 024 Notice of Intent - Npdes General Permit Number Alr100000 (Construction Stormwater) - Alabama, Page 34
  • ADEM Form 024 Notice of Intent - Npdes General Permit Number Alr100000 (Construction Stormwater) - Alabama, Page 35
  • ADEM Form 024 Notice of Intent - Npdes General Permit Number Alr100000 (Construction Stormwater) - Alabama, Page 36
  • ADEM Form 024 Notice of Intent - Npdes General Permit Number Alr100000 (Construction Stormwater) - Alabama, Page 37
  • ADEM Form 024 Notice of Intent - Npdes General Permit Number Alr100000 (Construction Stormwater) - Alabama, Page 38
  • ADEM Form 024 Notice of Intent - Npdes General Permit Number Alr100000 (Construction Stormwater) - Alabama, Page 39
  • ADEM Form 024 Notice of Intent - Npdes General Permit Number Alr100000 (Construction Stormwater) - Alabama, Page 40
Prev 1 2 3 4 5 ... 40 Next
ADVERTISEMENT

Related Documents