Form 734-2680 Application Form for State Highway Approach - Oregon

Form 734-2680 Application Form for State Highway Approach - Oregon

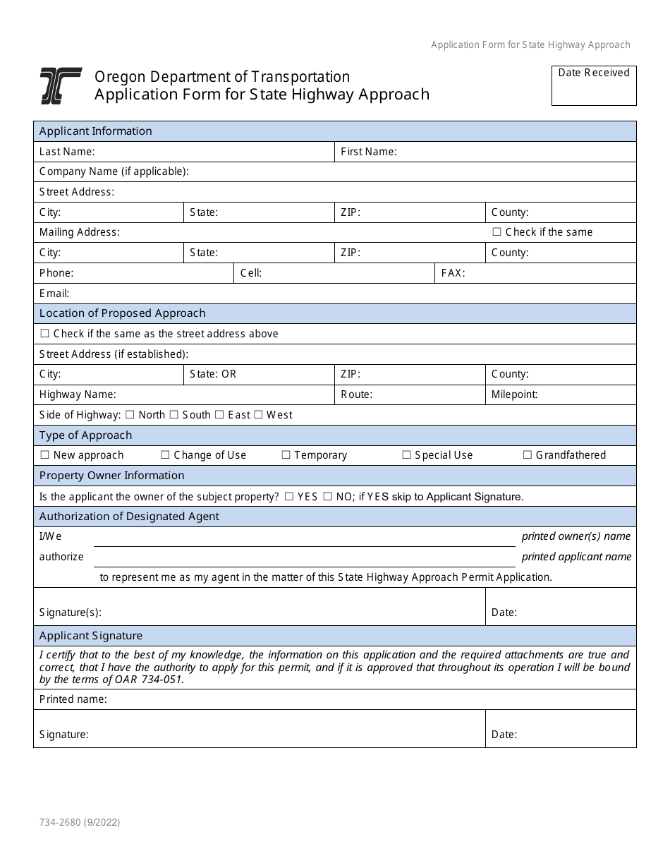
What Is Form 734-2680?

This is a legal form that was released by the Oregon Department of Transportation - a government authority operating within Oregon. As of today, no separate filing guidelines for the form are provided by the issuing department.

FAQ

Q: What is Form 734-2680?
A: Form 734-2680 is an application form for a State Highway Approach in Oregon.

Q: What is a State Highway Approach?
A: A State Highway Approach is a proposed access point to a state highway in Oregon.

Q: Who needs to fill out Form 734-2680?
A: Anyone who wants to construct a new driveway, private road, or make changes to an existing approach from a property to a state highway in Oregon needs to fill out this form.

Q: What information do I need to provide on Form 734-2680?
A: You will need to provide details about the location and dimensions of the proposed approach, the purpose of the approach, and contact information of the applicant.

Q: Are there any fees associated with the application?
A: Yes, there is an application fee for submitting Form 734-2680. The fee may vary depending on the project and location.

Q: How long does it take to process the application?
A: The processing time for Form 734-2680 varies depending on the complexity of the project. It is recommended to submit the application well in advance of the desired construction start date.

Q: What happens after the application is submitted?
A: After the application is submitted, it will be reviewed by the Oregon Department of Transportation. They may request additional information or conduct a site inspection before approving the approach.

Q: Can I start construction before receiving approval?
A: No, you must wait to receive approval from the Oregon Department of Transportation before starting any construction activities related to the approach.

Q: What if my application is not approved?
A: If your application is not approved, you will receive a notice explaining the reasons for denial. You may have the option to revise and resubmit the application.

Q: Are there any regulations or guidelines for constructing a State Highway Approach?
A: Yes, there are regulations and guidelines established by the Oregon Department of Transportation that must be followed when constructing a State Highway Approach.

ADVERTISEMENT

Form Details:

  • Released on September 1, 2022;
  • The latest edition provided by the Oregon Department of Transportation;
  • Easy to use and ready to print;
  • Quick to customize;
  • Compatible with most PDF-viewing applications;
  • Fill out the form in our online filing application.

Download a fillable version of Form 734-2680 by clicking the link below or browse more documents and templates provided by the Oregon Department of Transportation.

Download Form 734-2680 Application Form for State Highway Approach - Oregon

4.3 of 5 (19 votes)
  • Form 734-2680 Application Form for State Highway Approach - Oregon

    1

  • Form 734-2680 Application Form for State Highway Approach - Oregon, Page 2

    2

  • Form 734-2680 Application Form for State Highway Approach - Oregon, Page 3

    3

  • Form 734-2680 Application Form for State Highway Approach - Oregon, Page 4

    4

  • Form 734-2680 Application Form for State Highway Approach - Oregon, Page 5

    5

  • Form 734-2680 Application Form for State Highway Approach - Oregon, Page 6

    6

  • Form 734-2680 Application Form for State Highway Approach - Oregon, Page 1
  • Form 734-2680 Application Form for State Highway Approach - Oregon, Page 2
  • Form 734-2680 Application Form for State Highway Approach - Oregon, Page 3
  • Form 734-2680 Application Form for State Highway Approach - Oregon, Page 4
  • Form 734-2680 Application Form for State Highway Approach - Oregon, Page 5
  • Form 734-2680 Application Form for State Highway Approach - Oregon, Page 6
Prev 1 2 3 4 5 6 Next
ADVERTISEMENT