Form DBPR LA1 Landscape Architect Application for Licensure: Examination - Florida

Notification Icon This version of the form is not currently in use and is provided for reference only. Download this version of Form DBPR LA1 for the current year.

Form DBPR LA1 Landscape Architect Application for Licensure: Examination - Florida

What Is Form DBPR LA1?

This is a legal form that was released by the Florida Department of Business & Professional Regulation - a government authority operating within Florida. As of today, no separate filing guidelines for the form are provided by the issuing department.

FAQ

Q: What is the DBPR LA1 Landscape Architect Application for Licensure?
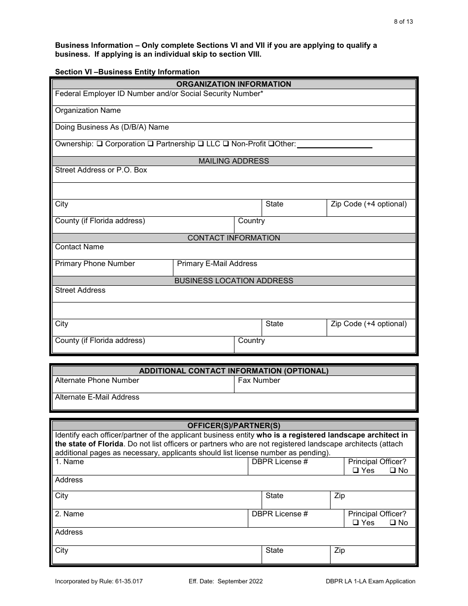
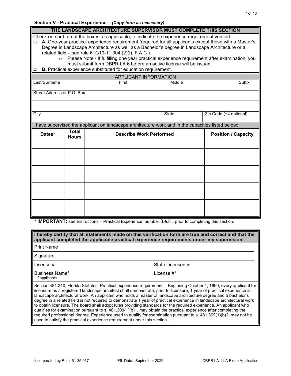
A: The DBPR LA1 Landscape Architect Application is a form required by the state of Florida for individuals seeking licensure as a landscape architect.

Q: What is the purpose of the DBPR LA1 Landscape Architect Application?
A: The purpose of the DBPR LA1 Landscape Architect Application is to apply for the landscape architect licensure examination in Florida.

Q: Who needs to fill out the DBPR LA1 Landscape Architect Application?
A: Individuals who want to become licensed landscape architects in Florida need to fill out the DBPR LA1 Landscape Architect Application.

Q: What should be included in the DBPR LA1 Landscape Architect Application?
A: The DBPR LA1 Landscape Architect Application requires personal information, education and experience details, and supporting documents.

ADVERTISEMENT

Form Details:

  • Released on September 1, 2022;
  • The latest edition provided by the Florida Department of Business & Professional Regulation;
  • Easy to use and ready to print;
  • Quick to customize;
  • Compatible with most PDF-viewing applications;
  • Fill out the form in our online filing application.

Download a printable version of Form DBPR LA1 by clicking the link below or browse more documents and templates provided by the Florida Department of Business & Professional Regulation.

Download Form DBPR LA1 Landscape Architect Application for Licensure: Examination - Florida

4.8 of 5 (15 votes)
  • Form DBPR LA1 Landscape Architect Application for Licensure: Examination - Florida

    1

  • Form DBPR LA1 Landscape Architect Application for Licensure: Examination - Florida, Page 2

    2

  • Form DBPR LA1 Landscape Architect Application for Licensure: Examination - Florida, Page 3

    3

  • Form DBPR LA1 Landscape Architect Application for Licensure: Examination - Florida, Page 4

    4

  • Form DBPR LA1 Landscape Architect Application for Licensure: Examination - Florida, Page 5

    5

  • Form DBPR LA1 Landscape Architect Application for Licensure: Examination - Florida, Page 6

    6

  • Form DBPR LA1 Landscape Architect Application for Licensure: Examination - Florida, Page 7

    7

  • Form DBPR LA1 Landscape Architect Application for Licensure: Examination - Florida, Page 8

    8

  • Form DBPR LA1 Landscape Architect Application for Licensure: Examination - Florida, Page 9

    9

  • Form DBPR LA1 Landscape Architect Application for Licensure: Examination - Florida, Page 10

    10

  • Form DBPR LA1 Landscape Architect Application for Licensure: Examination - Florida, Page 11

    11

  • Form DBPR LA1 Landscape Architect Application for Licensure: Examination - Florida, Page 12

    12

  • Form DBPR LA1 Landscape Architect Application for Licensure: Examination - Florida, Page 13

    13

  • Form DBPR LA1 Landscape Architect Application for Licensure: Examination - Florida, Page 1
  • Form DBPR LA1 Landscape Architect Application for Licensure: Examination - Florida, Page 2
  • Form DBPR LA1 Landscape Architect Application for Licensure: Examination - Florida, Page 3
  • Form DBPR LA1 Landscape Architect Application for Licensure: Examination - Florida, Page 4
  • Form DBPR LA1 Landscape Architect Application for Licensure: Examination - Florida, Page 5
  • Form DBPR LA1 Landscape Architect Application for Licensure: Examination - Florida, Page 6
  • Form DBPR LA1 Landscape Architect Application for Licensure: Examination - Florida, Page 7
  • Form DBPR LA1 Landscape Architect Application for Licensure: Examination - Florida, Page 8
  • Form DBPR LA1 Landscape Architect Application for Licensure: Examination - Florida, Page 9
  • Form DBPR LA1 Landscape Architect Application for Licensure: Examination - Florida, Page 10
  • Form DBPR LA1 Landscape Architect Application for Licensure: Examination - Florida, Page 11
  • Form DBPR LA1 Landscape Architect Application for Licensure: Examination - Florida, Page 12
  • Form DBPR LA1 Landscape Architect Application for Licensure: Examination - Florida, Page 13
Prev 1 2 3 4 5 ... 13 Next
ADVERTISEMENT