Letter of Intent to Apply - Downtown Revitalization Program - Maine

Letter of Intent to Apply - Downtown Revitalization Program - Maine

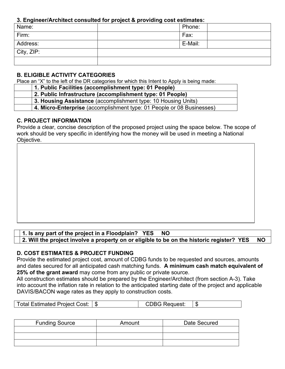
Letter of Intent to Apply - Downtown Revitalization Program is a legal document that was released by the Maine Department of Economic & Community Development - a government authority operating within Maine.

FAQ

Q: What is the Downtown Revitalization Program in Maine?
A: The Downtown Revitalization Program in Maine aims to revitalize downtown areas in the state.

Q: What is a Letter of Intent to Apply?
A: A Letter of Intent to Apply is a formal letter expressing the intention to apply for a specific program or opportunity.

Q: Who can submit a Letter of Intent to Apply for the Downtown Revitalization Program in Maine?
A: Any eligible organization or community can submit a Letter of Intent to Apply for the Downtown Revitalization Program in Maine.

Q: What are the requirements for submitting a Letter of Intent to Apply?
A: The specific requirements for submitting a Letter of Intent to Apply for the Downtown Revitalization Program in Maine can be found in the program guidelines.

Q: What should be included in a Letter of Intent to Apply?
A: A Letter of Intent to Apply should include relevant details about the organization or community, its goals, and how it intends to use the funding provided by the program.

Q: How can I submit a Letter of Intent to Apply?
A: The process for submitting a Letter of Intent to Apply for the Downtown Revitalization Program in Maine can be found in the program guidelines.

Q: What happens after submitting a Letter of Intent to Apply?
A: After submitting a Letter of Intent to Apply, eligible applicants will be invited to submit a full application for the program.

ADVERTISEMENT

Form Details:

  • The latest edition currently provided by the Maine Department of Economic & Community Development;
  • Ready to use and print;
  • Easy to customize;
  • Compatible with most PDF-viewing applications;
  • Fill out the form in our online filing application.

Download a printable version of the form by clicking the link below or browse more documents and templates provided by the Maine Department of Economic & Community Development.

Download Letter of Intent to Apply - Downtown Revitalization Program - Maine

4.3 of 5 (30 votes)
  • Letter of Intent to Apply - Downtown Revitalization Program - Maine

    1

  • Letter of Intent to Apply - Downtown Revitalization Program - Maine, Page 2

    2

  • Letter of Intent to Apply - Downtown Revitalization Program - Maine, Page 3

    3

  • Letter of Intent to Apply - Downtown Revitalization Program - Maine, Page 4

    4

  • Letter of Intent to Apply - Downtown Revitalization Program - Maine, Page 5

    5

  • Letter of Intent to Apply - Downtown Revitalization Program - Maine, Page 6

    6

  • Letter of Intent to Apply - Downtown Revitalization Program - Maine, Page 1
  • Letter of Intent to Apply - Downtown Revitalization Program - Maine, Page 2
  • Letter of Intent to Apply - Downtown Revitalization Program - Maine, Page 3
  • Letter of Intent to Apply - Downtown Revitalization Program - Maine, Page 4
  • Letter of Intent to Apply - Downtown Revitalization Program - Maine, Page 5
  • Letter of Intent to Apply - Downtown Revitalization Program - Maine, Page 6
Prev 1 2 3 4 5 6 Next
ADVERTISEMENT