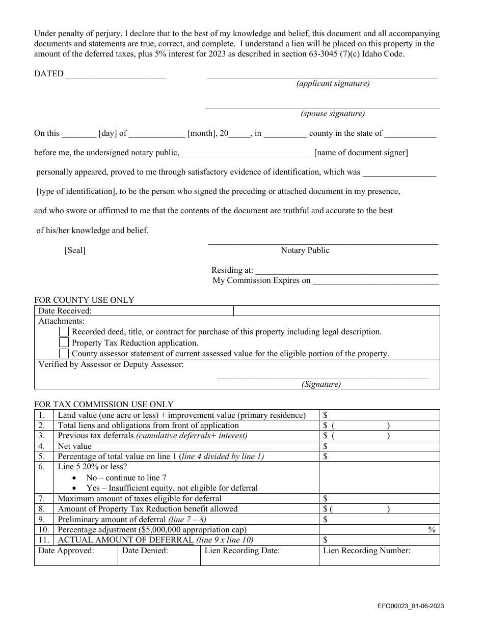
Form EFO00023 Application for Property Tax Deferral - Idaho

Notification Icon This version of the form is not currently in use and is provided for reference only. Download this version of Form EFO00023 for the current year.

Form EFO00023 Application for Property Tax Deferral - Idaho

What Is Form EFO00023?

This is a legal form that was released by the Idaho State Tax Commission - a government authority operating within Idaho. As of today, no separate filing guidelines for the form are provided by the issuing department.

FAQ

Q: What is Form EFO00023?
A: Form EFO00023 is an application for property tax deferral in Idaho.

Q: How do I use Form EFO00023?
A: You can use Form EFO00023 to apply for property tax deferral in Idaho.

Q: Who is eligible to use Form EFO00023?
A: Homeowners in Idaho who meet certain income and age requirements may be eligible to use Form EFO00023.

Q: What is property tax deferral?
A: Property tax deferral is a program that allows eligible homeowners to delay paying their property taxes.

Q: What are the income and age requirements for property tax deferral in Idaho?
A: To be eligible for property tax deferral in Idaho, homeowners must be 65 years or older, or disabled, and have an annual income below a certain threshold.

ADVERTISEMENT

Form Details:

  • Released on January 6, 2023;
  • The latest edition provided by the Idaho State Tax Commission;
  • Easy to use and ready to print;
  • Quick to customize;
  • Compatible with most PDF-viewing applications;
  • Fill out the form in our online filing application.

Download a printable version of Form EFO00023 by clicking the link below or browse more documents and templates provided by the Idaho State Tax Commission.

Download Form EFO00023 Application for Property Tax Deferral - Idaho

4.3 of 5 (6 votes)
  • Form EFO00023 Application for Property Tax Deferral - Idaho

    1

  • Form EFO00023 Application for Property Tax Deferral - Idaho, Page 2

    2

  • Form EFO00023 Application for Property Tax Deferral - Idaho, Page 1
  • Form EFO00023 Application for Property Tax Deferral - Idaho, Page 2
Prev 1 2 Next
ADVERTISEMENT

Related Documents