Appraisal Management Company (AMC) Initial / Annual Registration Application - Rhode Island

Notification Icon This version of the form is not currently in use and is provided for reference only. Download this version of the document for the current year.

Appraisal Management Company (AMC) Initial / Annual Registration Application - Rhode Island

Appraisal Management Company (AMC) Initial/Annual Registration Application is a legal document that was released by the Rhode Island Department of Business Regulation - a government authority operating within Rhode Island.

FAQ

Q: What is an Appraisal Management Company (AMC)?
A: An Appraisal Management Company (AMC) is a company that handles the administration and management of real estate appraisals.

Q: Why do Appraisal Management Companies need to register in Rhode Island?
A: Appraisal Management Companies need to register in Rhode Island to operate legally and comply with state regulations.

Q: Who needs to submit the Initial/Annual Registration Application?
A: Appraisal Management Companies operating in Rhode Island need to submit the Initial/Annual Registration Application.

Q: What information is required in the registration application?
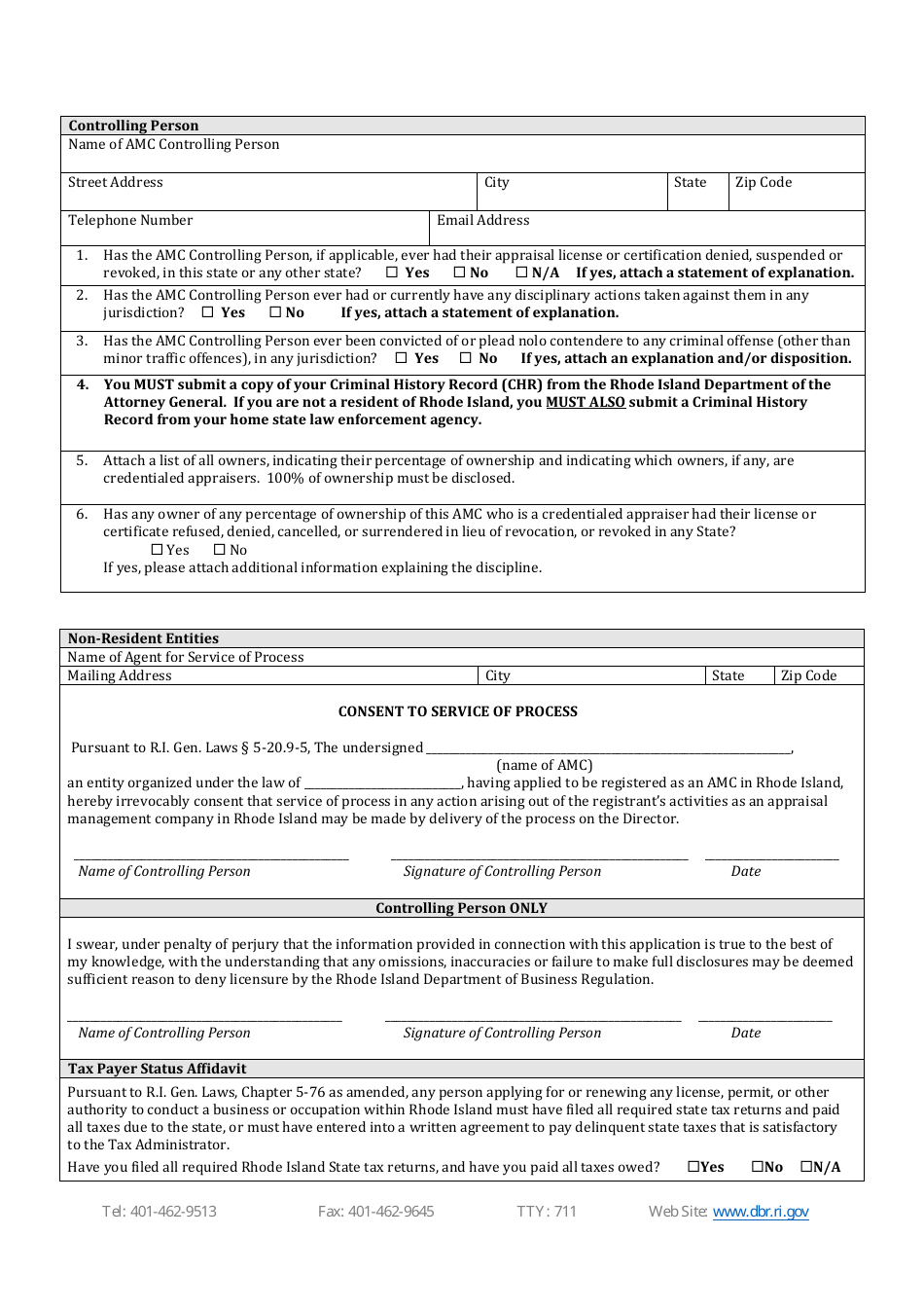
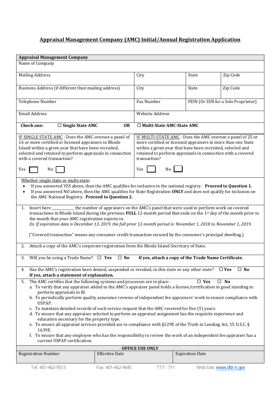
A: The registration application requires information about the company's name, address, contact information, officers, and any disciplinary actions against the company.

Q: How often do Appraisal Management Companies need to renew their registration?
A: Appraisal Management Companies need to renew their registration annually.

Q: Are there any additional requirements for Appraisal Management Companies in Rhode Island?
A: Yes, Appraisal Management Companies in Rhode Island must maintain a minimum net worth of $25,000 and have a designated state-licensed appraiser on staff.

Q: What happens if an Appraisal Management Company fails to register?
A: If an Appraisal Management Company fails to register in Rhode Island, they may face penalties and legal consequences.

ADVERTISEMENT

Form Details:

  • Released on December 1, 2019;
  • The latest edition currently provided by the Rhode Island Department of Business Regulation;
  • Ready to use and print;
  • Easy to customize;
  • Compatible with most PDF-viewing applications;
  • Fill out the form in our online filing application.

Download a fillable version of the form by clicking the link below or browse more documents and templates provided by the Rhode Island Department of Business Regulation.

Download Appraisal Management Company (AMC) Initial / Annual Registration Application - Rhode Island

4.4 of 5 (16 votes)
  • Appraisal Management Company (AMC) Initial/Annual Registration Application - Rhode Island

    1

  • Appraisal Management Company (AMC) Initial/Annual Registration Application - Rhode Island, Page 2

    2

  • Appraisal Management Company (AMC) Initial/Annual Registration Application - Rhode Island, Page 3

    3

  • Appraisal Management Company (AMC) Initial/Annual Registration Application - Rhode Island, Page 4

    4

  • Appraisal Management Company (AMC) Initial / Annual Registration Application - Rhode Island, Page 1
  • Appraisal Management Company (AMC) Initial / Annual Registration Application - Rhode Island, Page 2
  • Appraisal Management Company (AMC) Initial / Annual Registration Application - Rhode Island, Page 3
  • Appraisal Management Company (AMC) Initial / Annual Registration Application - Rhode Island, Page 4
Prev 1 2 3 4 Next
ADVERTISEMENT