Application for Unreasonable Hardship Exception to Disabled Access Requirements - Shasta County, California

Application for Unreasonable Hardship Exception to Disabled Access Requirements - Shasta County, California

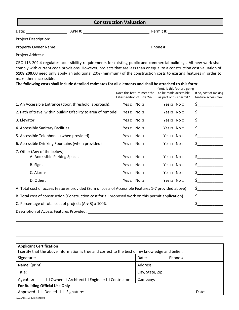
Application for Unreasonable Hardship Exception to Disabled Access Requirements is a legal document that was released by the Department of Resource Management - Shasta County, California - a government authority operating within California. The form may be used strictly within Shasta County.

FAQ

Q: What is the Unreasonable Hardship Exception to Disabled Access Requirements?
A: The Unreasonable Hardship Exception is a provision that allows certain property owners or business owners to be exempt from complying with disabled access requirements in specific circumstances.

Q: Who can apply for an Unreasonable Hardship Exception in Shasta County, California?
A: Property owners or business owners in Shasta County, California can apply for an Unreasonable Hardship Exception.

Q: What are disabled access requirements?
A: Disabled access requirements are regulations and standards that aim to ensure equal access and participation for individuals with disabilities in public spaces and facilities.

Q: When can a property owner or business owner apply for an Unreasonable Hardship Exception?
A: A property owner or business owner can apply for an Unreasonable Hardship Exception when the cost of complying with disabled access requirements is excessive or impractical.

Q: How can someone apply for an Unreasonable Hardship Exception in Shasta County?
A: To apply for an Unreasonable Hardship Exception in Shasta County, California, the property owner or business owner must complete an application form and provide supporting documentation.

Q: What happens after submitting an application for an Unreasonable Hardship Exception?
A: After submitting an application for an Unreasonable Hardship Exception, the applicant will go through a review and evaluation process by the local government authorities.

Q: Is there a deadline for submitting an application for an Unreasonable Hardship Exception?
A: There may be specific deadlines for submitting an application for an Unreasonable Hardship Exception in Shasta County, California. It is recommended to check with the local government authorities for the exact deadlines.

Q: What should an applicant do if their application for an Unreasonable Hardship Exception is denied?
A: If an application for an Unreasonable Hardship Exception is denied, the applicant has the option to appeal the decision and provide additional supporting evidence.

Q: Are there any fees associated with applying for an Unreasonable Hardship Exception?
A: There may be fees associated with applying for an Unreasonable Hardship Exception in Shasta County, California. The exact fees can be obtained from the local government authorities.

ADVERTISEMENT

Form Details:

  • Released on June 22, 2020;
  • The latest edition currently provided by the Department of Resource Management - Shasta County, California;
  • Ready to use and print;
  • Easy to customize;
  • Compatible with most PDF-viewing applications;
  • Fill out the form in our online filing application.

Download a printable version of the form by clicking the link below or browse more documents and templates provided by the Department of Resource Management - Shasta County, California.

Download Application for Unreasonable Hardship Exception to Disabled Access Requirements - Shasta County, California

4.7 of 5 (10 votes)
  • Application for Unreasonable Hardship Exception to Disabled Access Requirements - Shasta County, California

    1

  • Application for Unreasonable Hardship Exception to Disabled Access Requirements - Shasta County, California, Page 2

    2

  • Application for Unreasonable Hardship Exception to Disabled Access Requirements - Shasta County, California, Page 1
  • Application for Unreasonable Hardship Exception to Disabled Access Requirements - Shasta County, California, Page 2
Prev 1 2 Next
ADVERTISEMENT