Form CEM-2061 Notice of Discharge Report - California

Form CEM-2061 Notice of Discharge Report - California

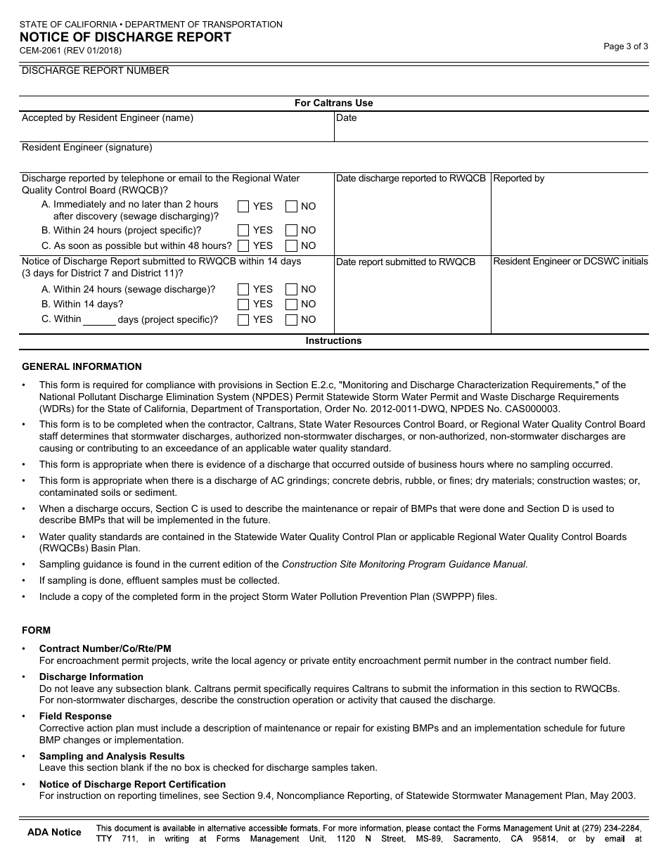
What Is Form CEM-2061?

This is a legal form that was released by the California Department of Transportation - a government authority operating within California. As of today, no separate filing guidelines for the form are provided by the issuing department.

FAQ

Q: What is Form CEM-2061?
A: Form CEM-2061 is the Notice of Discharge Report used in California.

Q: What is the purpose of Form CEM-2061?
A: The purpose of Form CEM-2061 is to report the discharge of an employee.

Q: Who uses Form CEM-2061?
A: Employers in California use Form CEM-2061 to report the discharge of an employee.

Q: When should Form CEM-2061 be filed?
A: Form CEM-2061 should be filed within 30 days after the discharge of an employee.

Q: Is Form CEM-2061 required for all employee discharges?
A: Yes, Form CEM-2061 is required for all employee discharges in California.

Q: Are there any penalties for not filing Form CEM-2061?
A: Yes, there may be penalties for not filing Form CEM-2061, including monetary fines.

Q: What information is required on Form CEM-2061?
A: Form CEM-2061 requires basic information about the employer and employee, as well as the reason for the discharge.

Q: Can I submit multiple Form CEM-2061s for different employees?
A: Yes, you can submit multiple Form CEM-2061s for different employees.

Q: Is Form CEM-2061 confidential?
A: No, Form CEM-2061 is not confidential and may be subject to public disclosure under certain circumstances.

ADVERTISEMENT

Form Details:

  • Released on January 1, 2018;
  • The latest edition provided by the California Department of Transportation;
  • Easy to use and ready to print;
  • Quick to customize;
  • Compatible with most PDF-viewing applications;
  • Fill out the form in our online filing application.

Download a fillable version of Form CEM-2061 by clicking the link below or browse more documents and templates provided by the California Department of Transportation.

Download Form CEM-2061 Notice of Discharge Report - California

4.3 of 5 (22 votes)
  • Form CEM-2061 Notice of Discharge Report - California

    1

  • Form CEM-2061 Notice of Discharge Report - California, Page 2

    2

  • Form CEM-2061 Notice of Discharge Report - California, Page 3

    3

  • Form CEM-2061 Notice of Discharge Report - California, Page 1
  • Form CEM-2061 Notice of Discharge Report - California, Page 2
  • Form CEM-2061 Notice of Discharge Report - California, Page 3
Prev 1 2 3 Next
ADVERTISEMENT