NPDES Form ILG62 (IL532-3043; WPC772) Notice of Intent (Noi) for New and Replacement Surface Discharging Private Sewage Disposal Systems - Illinois

NPDES Form ILG62 (IL532-3043; WPC772) Notice of Intent (Noi) for New and Replacement Surface Discharging Private Sewage Disposal Systems - Illinois

What Is NPDES Form ILG62 (IL532-3043; WPC772)?

This is a legal form that was released by the Illinois Environmental Protection Agency - a government authority operating within Illinois. As of today, no separate filing guidelines for the form are provided by the issuing department.

FAQ

Q: What is NPDES Form ILG62?
A: NPDES Form ILG62 is the Notice of Intent (Noi) for New and Replacement Surface Discharging Private Sewage Disposal Systems in Illinois.

Q: What is the purpose of NPDES Form ILG62?
A: The purpose of NPDES Form ILG62 is to notify the appropriate authorities of the intent to install or replace surface discharging private sewage disposal systems in Illinois.

Q: Who needs to submit NPDES Form ILG62?
A: Anyone who plans to install or replace surface discharging private sewage disposal systems in Illinois needs to submit NPDES Form ILG62.

Q: Are there any fees associated with submitting NPDES Form ILG62?
A: It is possible that there may be fees associated with submitting NPDES Form ILG62. You should check with the regulatory agency or department in Illinois for more information.

Q: Is NPDES Form ILG62 required for all types of private sewage disposal systems in Illinois?
A: No, NPDES Form ILG62 is specifically for new and replacement surface discharging private sewage disposal systems in Illinois. Other types of systems may have different forms or requirements.

Q: What are the consequences of not submitting NPDES Form ILG62?
A: Failure to submit NPDES Form ILG62 when required may result in legal penalties or delays in obtaining necessary permits for the installation or replacement of surface discharging private sewage disposal systems in Illinois.

Q: What other documents or permits may be required in addition to NPDES Form ILG62?
A: Depending on the specific project and location, other documents or permits, such as construction permits or zoning approvals, may also be required in addition to NPDES Form ILG62. It is important to check with the appropriate regulatory agency or department in Illinois to determine all necessary requirements.

Q: How long does it take to process NPDES Form ILG62?
A: The processing time for NPDES Form ILG62 may vary depending on the workload of the regulatory agency or department in Illinois. It is advisable to submit the form well in advance of the desired installation or replacement date to allow for sufficient processing time.

ADVERTISEMENT

Form Details:

Download a printable version of NPDES Form ILG62 (IL532-3043; WPC772) by clicking the link below or browse more documents and templates provided by the Illinois Environmental Protection Agency.

Download NPDES Form ILG62 (IL532-3043; WPC772) Notice of Intent (Noi) for New and Replacement Surface Discharging Private Sewage Disposal Systems - Illinois

4.6 of 5 (7 votes)
  • NPDES Form ILG62 (IL532-3043; WPC772) Notice of Intent (Noi) for New and Replacement Surface Discharging Private Sewage Disposal Systems - Illinois

    1

  • NPDES Form ILG62 (IL532-3043; WPC772) Notice of Intent (Noi) for New and Replacement Surface Discharging Private Sewage Disposal Systems - Illinois, Page 2

    2

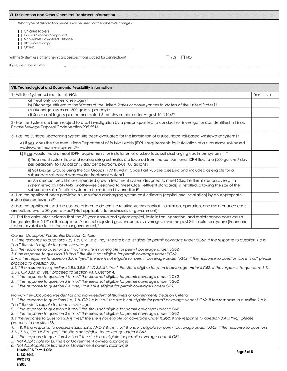
  • NPDES Form ILG62 (IL532-3043; WPC772) Notice of Intent (Noi) for New and Replacement Surface Discharging Private Sewage Disposal Systems - Illinois, Page 3

    3

  • NPDES Form ILG62 (IL532-3043; WPC772) Notice of Intent (Noi) for New and Replacement Surface Discharging Private Sewage Disposal Systems - Illinois, Page 4

    4

  • NPDES Form ILG62 (IL532-3043; WPC772) Notice of Intent (Noi) for New and Replacement Surface Discharging Private Sewage Disposal Systems - Illinois, Page 5

    5

  • NPDES Form ILG62 (IL532-3043; WPC772) Notice of Intent (Noi) for New and Replacement Surface Discharging Private Sewage Disposal Systems - Illinois, Page 6

    6

  • NPDES Form ILG62 (IL532-3043; WPC772) Notice of Intent (Noi) for New and Replacement Surface Discharging Private Sewage Disposal Systems - Illinois, Page 1
  • NPDES Form ILG62 (IL532-3043; WPC772) Notice of Intent (Noi) for New and Replacement Surface Discharging Private Sewage Disposal Systems - Illinois, Page 2
  • NPDES Form ILG62 (IL532-3043; WPC772) Notice of Intent (Noi) for New and Replacement Surface Discharging Private Sewage Disposal Systems - Illinois, Page 3
  • NPDES Form ILG62 (IL532-3043; WPC772) Notice of Intent (Noi) for New and Replacement Surface Discharging Private Sewage Disposal Systems - Illinois, Page 4
  • NPDES Form ILG62 (IL532-3043; WPC772) Notice of Intent (Noi) for New and Replacement Surface Discharging Private Sewage Disposal Systems - Illinois, Page 5
  • NPDES Form ILG62 (IL532-3043; WPC772) Notice of Intent (Noi) for New and Replacement Surface Discharging Private Sewage Disposal Systems - Illinois, Page 6
Prev 1 2 3 4 5 6 Next
ADVERTISEMENT