Form TR-WM-140 Tank System Service and Closure Assessment Report - Wisconsin

Notification Icon This version of the form is not currently in use and is provided for reference only. Download this version of Form TR-WM-140 for the current year.

Form TR-WM-140 Tank System Service and Closure Assessment Report - Wisconsin

What Is Form TR-WM-140?

This is a legal form that was released by the Wisconsin Department of Agriculture, Trade and Consumer Protection - a government authority operating within Wisconsin. As of today, no separate filing guidelines for the form are provided by the issuing department.

FAQ

Q: What is Form TR-WM-140?
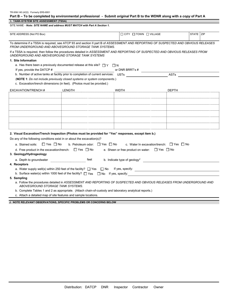
A: Form TR-WM-140 is a Tank System Service and Closure Assessment Report specific to Wisconsin.

Q: What is the purpose of Form TR-WM-140?
A: The purpose of Form TR-WM-140 is to assess and report on the service and closure of tank systems in Wisconsin.

Q: Who needs to use Form TR-WM-140?
A: Any person or entity that needs to assess and report on the service and closure of a tank system in Wisconsin needs to use Form TR-WM-140.

Q: What information is required in Form TR-WM-140?
A: Form TR-WM-140 requires information about the tank system, the service and closure activities, site conditions, and any groundwater and soil sampling results.

Q: Are there any fees associated with Form TR-WM-140?
A: Yes, there are fees associated with the submission of Form TR-WM-140. The fees vary depending on the type and size of the tank system.

Q: Is there a deadline for submitting Form TR-WM-140?
A: Yes, Form TR-WM-140 must be submitted within 30 days of completing the tank system service and closure activities.

Q: What are the consequences of not submitting Form TR-WM-140?
A: Failure to submit Form TR-WM-140 or submitting false or misleading information can result in penalties and fines.

Q: What happens after I submit Form TR-WM-140?
A: After submitting Form TR-WM-140, the Wisconsin Department of Natural Resources will review the report and may request additional information or conduct an inspection of the tank system site.

ADVERTISEMENT

Form Details:

  • Released on April 1, 2022;
  • The latest edition provided by the Wisconsin Department of Agriculture, Trade and Consumer Protection;
  • Easy to use and ready to print;
  • Quick to customize;
  • Compatible with most PDF-viewing applications;
  • Fill out the form in our online filing application.

Download a printable version of Form TR-WM-140 by clicking the link below or browse more documents and templates provided by the Wisconsin Department of Agriculture, Trade and Consumer Protection.

Download Form TR-WM-140 Tank System Service and Closure Assessment Report - Wisconsin

4.3 of 5 (21 votes)
  • Form TR-WM-140 Tank System Service and Closure Assessment Report - Wisconsin

    1

  • Form TR-WM-140 Tank System Service and Closure Assessment Report - Wisconsin, Page 2

    2

  • Form TR-WM-140 Tank System Service and Closure Assessment Report - Wisconsin, Page 3

    3

  • Form TR-WM-140 Tank System Service and Closure Assessment Report - Wisconsin, Page 4

    4

  • Form TR-WM-140 Tank System Service and Closure Assessment Report - Wisconsin, Page 5

    5

  • Form TR-WM-140 Tank System Service and Closure Assessment Report - Wisconsin, Page 1
  • Form TR-WM-140 Tank System Service and Closure Assessment Report - Wisconsin, Page 2
  • Form TR-WM-140 Tank System Service and Closure Assessment Report - Wisconsin, Page 3
  • Form TR-WM-140 Tank System Service and Closure Assessment Report - Wisconsin, Page 4
  • Form TR-WM-140 Tank System Service and Closure Assessment Report - Wisconsin, Page 5
Prev 1 2 3 4 5 Next
ADVERTISEMENT