Army
Business
Legal
Letters
Life
Real Estate
Tax
Wills
Blog
Upload
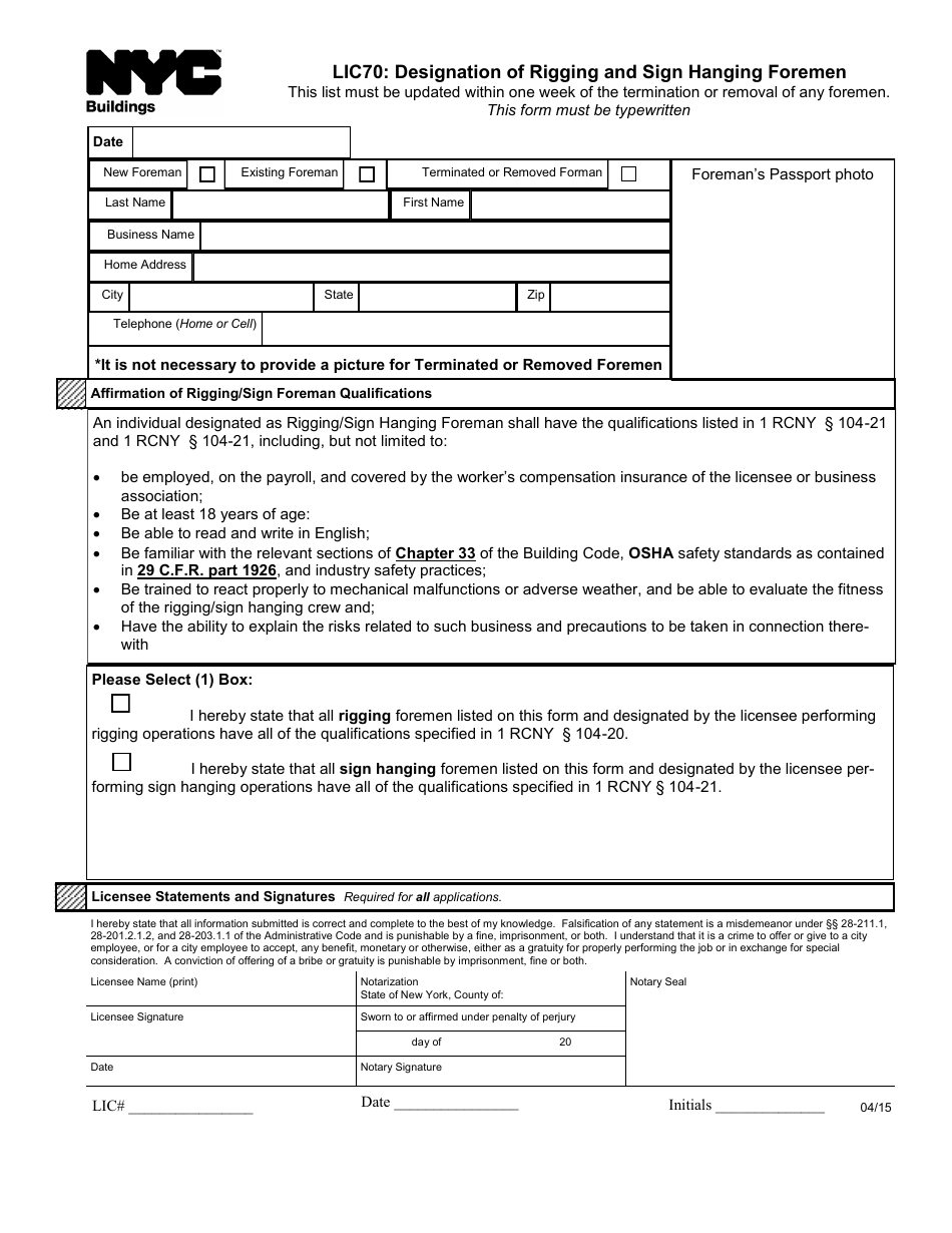
Form LIC70 Designation of Rigging and Sign Hanging Foremen - New York City
Fill
PDF
Online
PDF
Word
Army
Business
Legal
Letters
Life
Real Estate
Tax
Wills
Blog
Upload
Home
Legal
United States Legal Forms
New York City Legal Forms
New York City Department of Buildings
Form LIC70 Designation of Rigging and Sign Hanging Foremen - New York City
Form LIC70 Designation of Rigging and Sign Hanging Foremen - New York City
Preview
Fill
PDF
Online
PDF
Word
Fill PDF Online
Fill out online for free
without registration or credit card
Instructions for Form LIC70 Designation of Rigging and Sign Hanging Foremen - New York City
ADVERTISEMENT
Download Form LIC70 Designation of Rigging and Sign Hanging Foremen - New York City
4.4
of 5
(
27 votes
)
PDF
Word
Fill PDF Online
1
2
3
Prev
1
2
3
Next
ADVERTISEMENT
Linked Topics
New York City Department of Buildings
New York City Legal Forms
Legal
United States Legal Forms
Preview
Fill
PDF
Online
PDF
Word