DD Form 1607 Application for Homeowners Assistance

Notification Icon This version of the form is not currently in use and is provided for reference only. Download this version of DD Form 1607 for the current year.

DD Form 1607 Application for Homeowners Assistance

What Is DD Form 1607?

This is a form that was released by the U.S. Department of Defense (DoD) on December 1, 2010. The form, often mistakenly referred to as the DA Form 1607, is a military form used by and within the U.S. Army. As of today, no separate instructions for the form are provided by the DoD.

Form Details:

  • A 5-page document available for download in PDF;
  • The latest version available from the Executive Services Directorate;
  • Additional instructions and information can be found on page 1 of the document;
  • Editable, printable, and free to use;
  • Fill out the form in our online filing application.

Download an up-to-date fillable DD Form 1607 down below in PDF format or browse hundreds of other DoD Forms compiled in our online library.

ADVERTISEMENT

Download DD Form 1607 Application for Homeowners Assistance

4.3 of 5 (144 votes)
  • DD Form 1607 Application for Homeowners Assistance

    1

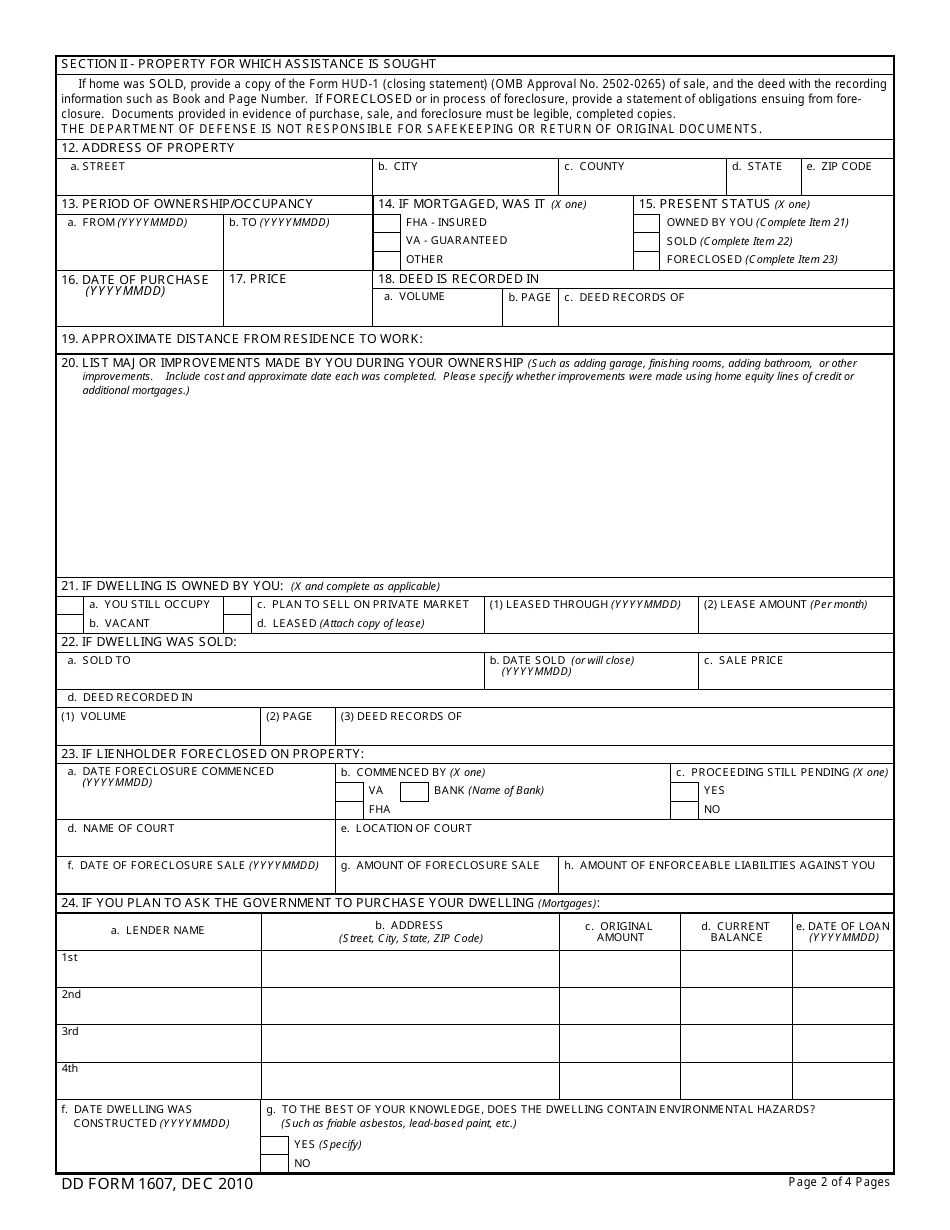
  • DD Form 1607 Application for Homeowners Assistance, Page 2

    2

  • DD Form 1607 Application for Homeowners Assistance, Page 3

    3

  • DD Form 1607 Application for Homeowners Assistance, Page 4

    4

  • DD Form 1607 Application for Homeowners Assistance, Page 5

    5

  • DD Form 1607 Application for Homeowners Assistance, Page 1
  • DD Form 1607 Application for Homeowners Assistance, Page 2
  • DD Form 1607 Application for Homeowners Assistance, Page 3
  • DD Form 1607 Application for Homeowners Assistance, Page 4
  • DD Form 1607 Application for Homeowners Assistance, Page 5
Prev 1 2 3 4 5 Next
ADVERTISEMENT

Related Documents