Form CEM-0606 Construction Safety Checklists - California

Form CEM-0606 Construction Safety Checklists - California

What Is Form CEM-0606?

This is a legal form that was released by the California Department of Transportation - a government authority operating within California. As of today, no separate filing guidelines for the form are provided by the issuing department.

Form Details:

  • Released on April 1, 2021;
  • The latest edition provided by the California Department of Transportation;
  • Easy to use and ready to print;
  • Quick to customize;
  • Compatible with most PDF-viewing applications;
  • Fill out the form in our online filing application.

Download a fillable version of Form CEM-0606 by clicking the link below or browse more documents and templates provided by the California Department of Transportation.

ADVERTISEMENT

Other Revision

Download Form CEM-0606 Construction Safety Checklists - California

4.4 of 5 (34 votes)
  • Form CEM-0606 Construction Safety Checklists - California

    1

  • Form CEM-0606 Construction Safety Checklists - California, Page 2

    2

  • Form CEM-0606 Construction Safety Checklists - California, Page 3

    3

  • Form CEM-0606 Construction Safety Checklists - California, Page 4

    4

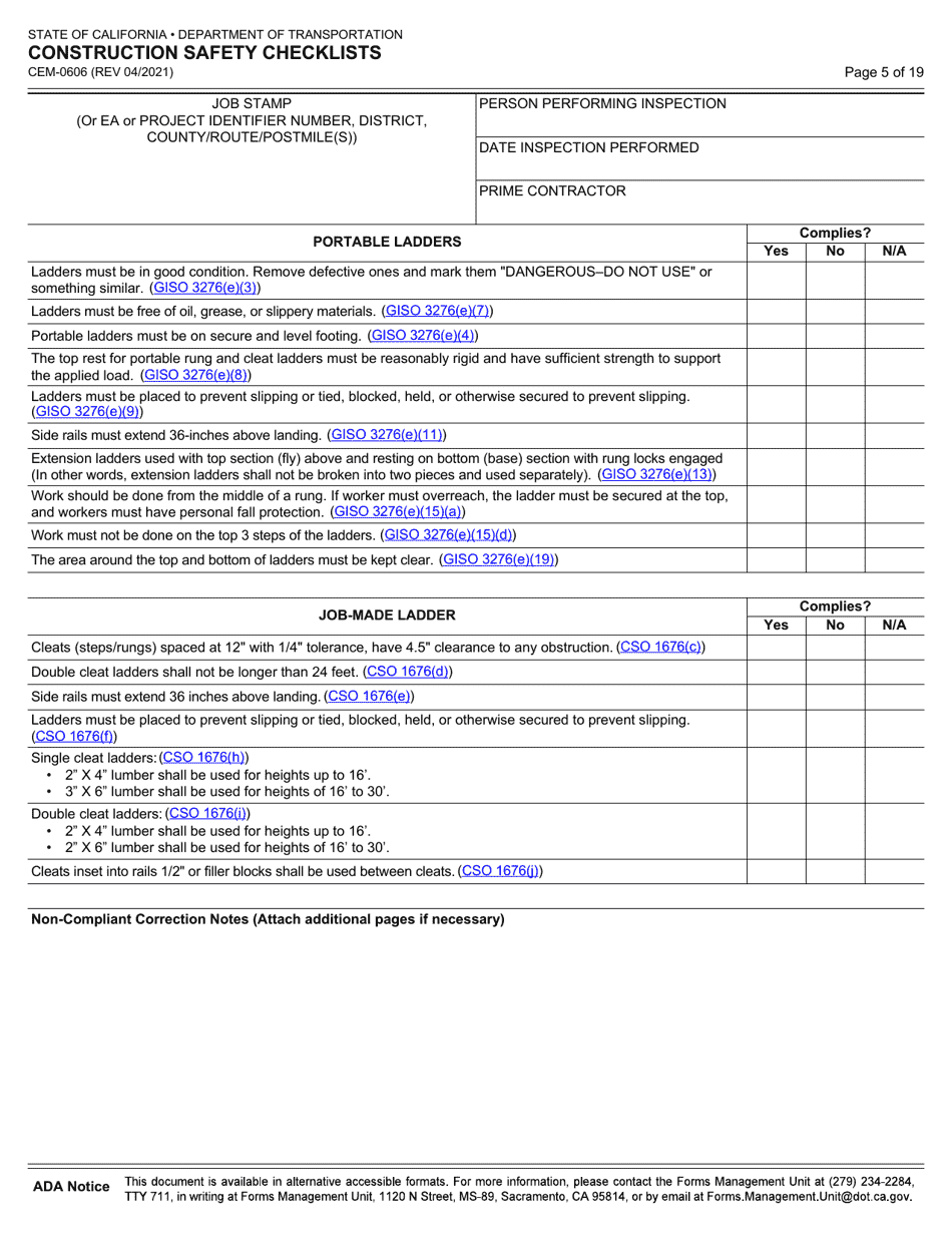
  • Form CEM-0606 Construction Safety Checklists - California, Page 5

    5

  • Form CEM-0606 Construction Safety Checklists - California, Page 6

    6

  • Form CEM-0606 Construction Safety Checklists - California, Page 7

    7

  • Form CEM-0606 Construction Safety Checklists - California, Page 8

    8

  • Form CEM-0606 Construction Safety Checklists - California, Page 9

    9

  • Form CEM-0606 Construction Safety Checklists - California, Page 10

    10

  • Form CEM-0606 Construction Safety Checklists - California, Page 11

    11

  • Form CEM-0606 Construction Safety Checklists - California, Page 12

    12

  • Form CEM-0606 Construction Safety Checklists - California, Page 13

    13

  • Form CEM-0606 Construction Safety Checklists - California, Page 14

    14

  • Form CEM-0606 Construction Safety Checklists - California, Page 15

    15

  • Form CEM-0606 Construction Safety Checklists - California, Page 16

    16

  • Form CEM-0606 Construction Safety Checklists - California, Page 17

    17

  • Form CEM-0606 Construction Safety Checklists - California, Page 18

    18

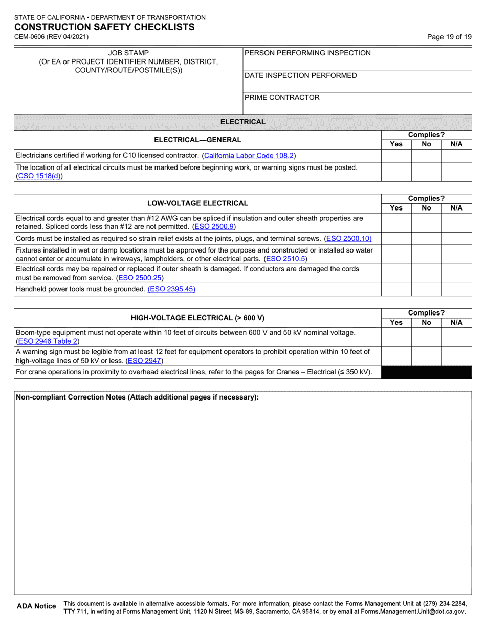
  • Form CEM-0606 Construction Safety Checklists - California, Page 19

    19

  • Form CEM-0606 Construction Safety Checklists - California, Page 20

    20

  • Form CEM-0606 Construction Safety Checklists - California, Page 1
  • Form CEM-0606 Construction Safety Checklists - California, Page 2
  • Form CEM-0606 Construction Safety Checklists - California, Page 3
  • Form CEM-0606 Construction Safety Checklists - California, Page 4
  • Form CEM-0606 Construction Safety Checklists - California, Page 5
  • Form CEM-0606 Construction Safety Checklists - California, Page 6
  • Form CEM-0606 Construction Safety Checklists - California, Page 7
  • Form CEM-0606 Construction Safety Checklists - California, Page 8
  • Form CEM-0606 Construction Safety Checklists - California, Page 9
  • Form CEM-0606 Construction Safety Checklists - California, Page 10
  • Form CEM-0606 Construction Safety Checklists - California, Page 11
  • Form CEM-0606 Construction Safety Checklists - California, Page 12
  • Form CEM-0606 Construction Safety Checklists - California, Page 13
  • Form CEM-0606 Construction Safety Checklists - California, Page 14
  • Form CEM-0606 Construction Safety Checklists - California, Page 15
  • Form CEM-0606 Construction Safety Checklists - California, Page 16
  • Form CEM-0606 Construction Safety Checklists - California, Page 17
  • Form CEM-0606 Construction Safety Checklists - California, Page 18
  • Form CEM-0606 Construction Safety Checklists - California, Page 19
  • Form CEM-0606 Construction Safety Checklists - California, Page 20
Prev 1 2 3 4 5 ... 20 Next
ADVERTISEMENT