Form CEM-1301 Construction Work Zone Speed Limit Reduction Determination - California

Form CEM-1301 Construction Work Zone Speed Limit Reduction Determination - California

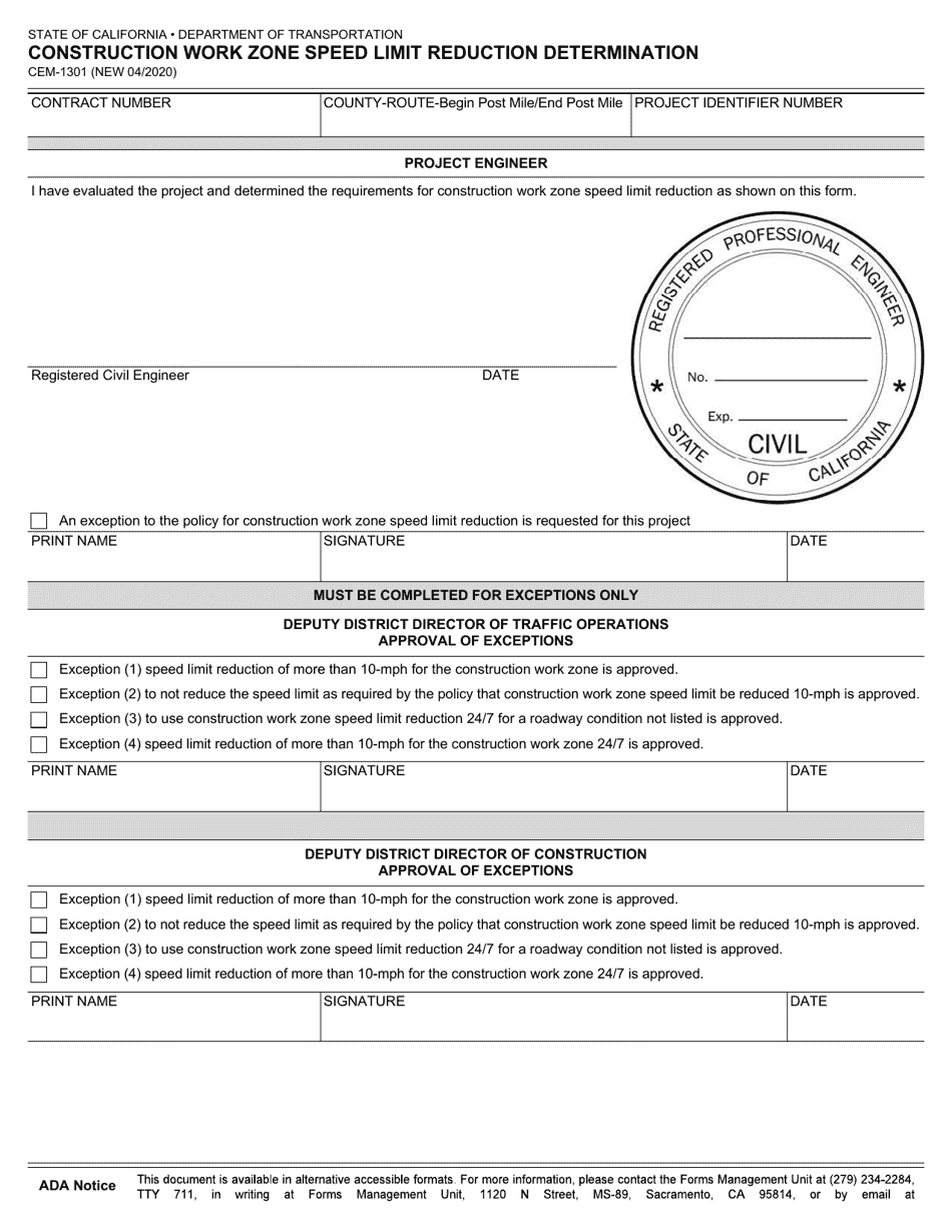
What Is Form CEM-1301?

This is a legal form that was released by the California Department of Transportation - a government authority operating within California. As of today, no separate filing guidelines for the form are provided by the issuing department.

FAQ

Q: What is the CEM-1301 form?
A: The CEM-1301 form is a document used in California for determining speed limit reductions in construction work zones.

Q: What does the CEM-1301 form cover?
A: The CEM-1301 form covers the determination of speed limit reductions in construction work zones.

Q: Which state uses the CEM-1301 form?
A: The CEM-1301 form is used in the state of California.

Q: What is the purpose of the CEM-1301 form?
A: The purpose of the CEM-1301 form is to determine and establish speed limit reductions in construction work zones.

Q: Who uses the CEM-1301 form?
A: The CEM-1301 form is used by agencies responsible for construction work zones in California.

Q: Is the CEM-1301 form specific to California?
A: Yes, the CEM-1301 form is specific to California and is not used in other states.

Q: What information is required on the CEM-1301 form?
A: The CEM-1301 form requires information such as location, description of work, duration of work, and justification for speed limit reduction.

Q: Is the CEM-1301 form legally binding?
A: No, the CEM-1301 form is not legally binding. It is used as a tool for determining speed limit reductions, but the final decision is made by the appropriate agency or authority.

ADVERTISEMENT

Form Details:

  • Released on April 1, 2020;
  • The latest edition provided by the California Department of Transportation;
  • Easy to use and ready to print;
  • Quick to customize;
  • Compatible with most PDF-viewing applications;
  • Fill out the form in our online filing application.

Download a fillable version of Form CEM-1301 by clicking the link below or browse more documents and templates provided by the California Department of Transportation.

Download Form CEM-1301 Construction Work Zone Speed Limit Reduction Determination - California

4.3 of 5 (42 votes)
  • Form CEM-1301 Construction Work Zone Speed Limit Reduction Determination - California

    1

  • Form CEM-1301 Construction Work Zone Speed Limit Reduction Determination - California, Page 2

    2

  • Form CEM-1301 Construction Work Zone Speed Limit Reduction Determination - California, Page 3

    3

  • Form CEM-1301 Construction Work Zone Speed Limit Reduction Determination - California, Page 4

    4

  • Form CEM-1301 Construction Work Zone Speed Limit Reduction Determination - California, Page 5

    5

  • Form CEM-1301 Construction Work Zone Speed Limit Reduction Determination - California, Page 6

    6

  • Form CEM-1301 Construction Work Zone Speed Limit Reduction Determination - California, Page 7

    7

  • Form CEM-1301 Construction Work Zone Speed Limit Reduction Determination - California, Page 1
  • Form CEM-1301 Construction Work Zone Speed Limit Reduction Determination - California, Page 2
  • Form CEM-1301 Construction Work Zone Speed Limit Reduction Determination - California, Page 3
  • Form CEM-1301 Construction Work Zone Speed Limit Reduction Determination - California, Page 4
  • Form CEM-1301 Construction Work Zone Speed Limit Reduction Determination - California, Page 5
  • Form CEM-1301 Construction Work Zone Speed Limit Reduction Determination - California, Page 6
  • Form CEM-1301 Construction Work Zone Speed Limit Reduction Determination - California, Page 7
Prev 1 2 3 4 5 ... 7 Next
ADVERTISEMENT