Formulario F625-001-999 Solicitud De Registracion De Contratista De Construccion - Washington (Spanish)

Formulario F625-001-999 Solicitud De Registracion De Contratista De Construccion - Washington (Spanish)

Qué es Formulario F625-001-999?

Este es un formulario legal que fue publicado por el Washington State Department of Labor and Industries, una autoridad gubernamental que opera dentro de Washington. A partir de hoy, el departamento emisor no proporciona en separado pautas de presentación para el formulario.

Detalles del formulario:

  • Publicado el 1 de abril de 2022;
  • La última versión proporcionada por el Washington State Department of Labor and Industries;
  • Lista para utilizar e imprimir;
  • Fácil de personalizar;
  • Compatible con la mayoría de las aplicaciones para visualizar PDF;
  • Complete este formulario en línea.

Descargue una versión del Formulario F625-001-999 haciendo clic en el enlace debajo o busque más documentos y plantillas proporcionados por el Washington State Department of Labor and Industries.

ADVERTISEMENT

Other Revisions

Download Formulario F625-001-999 Solicitud De Registracion De Contratista De Construccion - Washington (Spanish)

4.6 of 5 (97 votes)
  • Formulario F625-001-999 Solicitud De Registracion De Contratista De Construccion - Washington (Spanish)

    1

  • Formulario F625-001-999 Solicitud De Registracion De Contratista De Construccion - Washington (Spanish), Page 2

    2

  • Formulario F625-001-999 Solicitud De Registracion De Contratista De Construccion - Washington (Spanish), Page 3

    3

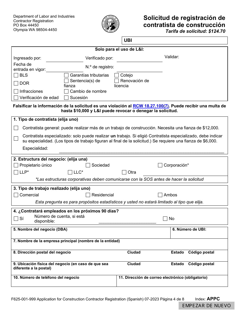
  • Formulario F625-001-999 Solicitud De Registracion De Contratista De Construccion - Washington (Spanish), Page 4

    4

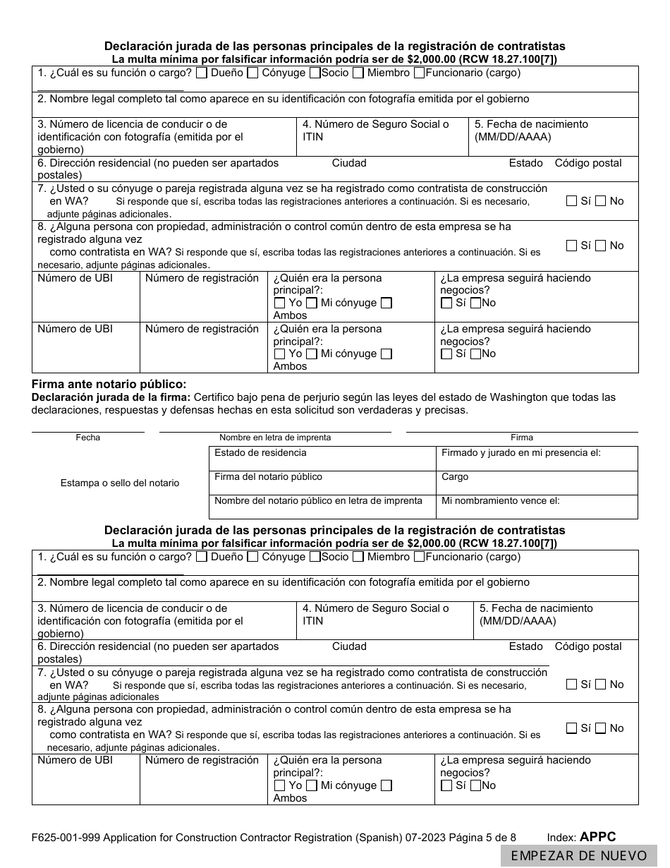
  • Formulario F625-001-999 Solicitud De Registracion De Contratista De Construccion - Washington (Spanish), Page 5

    5

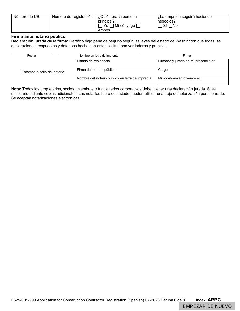
  • Formulario F625-001-999 Solicitud De Registracion De Contratista De Construccion - Washington (Spanish), Page 6

    6

  • Formulario F625-001-999 Solicitud De Registracion De Contratista De Construccion - Washington (Spanish), Page 7

    7

  • Formulario F625-001-999 Solicitud De Registracion De Contratista De Construccion - Washington (Spanish), Page 8

    8

  • Formulario F625-001-999 Solicitud De Registracion De Contratista De Construccion - Washington (Spanish), Page 1
  • Formulario F625-001-999 Solicitud De Registracion De Contratista De Construccion - Washington (Spanish), Page 2
  • Formulario F625-001-999 Solicitud De Registracion De Contratista De Construccion - Washington (Spanish), Page 3
  • Formulario F625-001-999 Solicitud De Registracion De Contratista De Construccion - Washington (Spanish), Page 4
  • Formulario F625-001-999 Solicitud De Registracion De Contratista De Construccion - Washington (Spanish), Page 5
  • Formulario F625-001-999 Solicitud De Registracion De Contratista De Construccion - Washington (Spanish), Page 6
  • Formulario F625-001-999 Solicitud De Registracion De Contratista De Construccion - Washington (Spanish), Page 7
  • Formulario F625-001-999 Solicitud De Registracion De Contratista De Construccion - Washington (Spanish), Page 8
Prev 1 2 3 4 5 ... 8 Next
ADVERTISEMENT

Related Documents