Form ARB-M6 Municipal Act Application / Appeal - Limitation of Taxes - Ontario, Canada

Form ARB-M6 Municipal Act Application / Appeal - Limitation of Taxes - Ontario, Canada

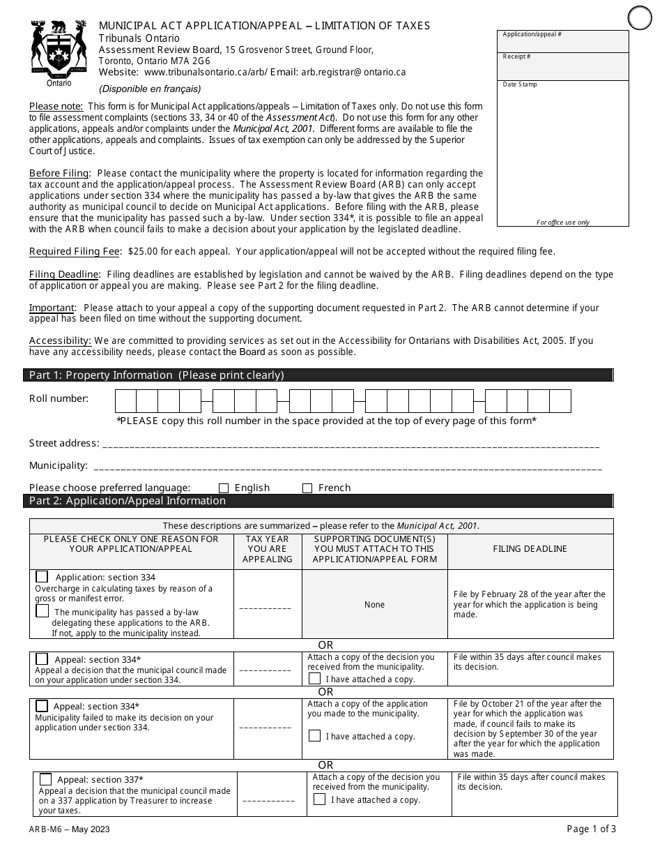
Form ARB-M6 Municipal Act Application/Appeal - Limitation of Taxes is used in Ontario, Canada for applying or appealing the limitation of taxes imposed by the municipality. The form is used to address concerns or disputes related to property taxes.

The property owner or taxpayer files the Form ARB-M6 Municipal Act Application/Appeal in Ontario, Canada.

Form ARB-M6 Municipal Act Application/Appeal - Limitation of Taxes - Ontario, Canada - Frequently Asked Questions (FAQ)

Q: What is the ARB-M6 Municipal Act Application/Appeal?
A:
The ARB-M6 Municipal Act Application/Appeal is a form used in Ontario, Canada for appealing the limitation of taxes.

Q: Who can use the ARB-M6 Municipal Act Application/Appeal?
A:
Any individual or organization in Ontario, Canada that wants to appeal the limitation of taxes can use the ARB-M6 form.

Q: What is the purpose of the ARB-M6 Municipal Act Application/Appeal?
A:
The purpose of the ARB-M6 form is to allow taxpayers to challenge the limitation of taxes imposed by municipalities in Ontario, Canada.

Q: What is the deadline for submitting the ARB-M6 Municipal Act Application/Appeal?
A:
The deadline for submitting the ARB-M6 form varies and is usually specified on the tax assessment notice. It is important to submit the form within the given timeframe to be considered for appeal.

Q: What information is required to complete the ARB-M6 Municipal Act Application/Appeal?
A:
The ARB-M6 form requires information such as the appellant's contact details, property information, assessment information, and grounds for the appeal.

Q: What happens after submitting the ARB-M6 Municipal Act Application/Appeal?
A:
After submitting the ARB-M6 form, the Assessment Review Board (ARB) will review the appeal and schedule a hearing if necessary. They will notify the appellant of the decision.

Q: Can I hire a representative to assist with the ARB-M6 Municipal Act Application/Appeal?
A:
Yes, you have the option to hire a representative such as a lawyer or a professional tax consultant to assist you with the ARB-M6 form.

Q: What should I do if I have further questions or need assistance with the ARB-M6 Municipal Act Application/Appeal?
A:
If you have further questions or need assistance with the ARB-M6 form, you can contact the Assessment Review Board (ARB) directly for guidance and support.

ADVERTISEMENT

Other Revisions

Download Form ARB-M6 Municipal Act Application / Appeal - Limitation of Taxes - Ontario, Canada

4.5 of 5 (31 votes)
  • Form ARB-M6 Municipal Act Application/Appeal - Limitation of Taxes - Ontario, Canada

    1

  • Form ARB-M6 Municipal Act Application/Appeal - Limitation of Taxes - Ontario, Canada, Page 2

    2

  • Form ARB-M6 Municipal Act Application/Appeal - Limitation of Taxes - Ontario, Canada, Page 3

    3

  • Form ARB-M6 Municipal Act Application/Appeal - Limitation of Taxes - Ontario, Canada, Page 4

    4

  • Form ARB-M6 Municipal Act Application/Appeal - Limitation of Taxes - Ontario, Canada, Page 5

    5

  • Form ARB-M6 Municipal Act Application/Appeal - Limitation of Taxes - Ontario, Canada, Page 6

    6

  • Form ARB-M6 Municipal Act Application / Appeal - Limitation of Taxes - Ontario, Canada, Page 1
  • Form ARB-M6 Municipal Act Application / Appeal - Limitation of Taxes - Ontario, Canada, Page 2
  • Form ARB-M6 Municipal Act Application / Appeal - Limitation of Taxes - Ontario, Canada, Page 3
  • Form ARB-M6 Municipal Act Application / Appeal - Limitation of Taxes - Ontario, Canada, Page 4
  • Form ARB-M6 Municipal Act Application / Appeal - Limitation of Taxes - Ontario, Canada, Page 5
  • Form ARB-M6 Municipal Act Application / Appeal - Limitation of Taxes - Ontario, Canada, Page 6
Prev 1 2 3 4 5 6 Next
ADVERTISEMENT