Form ARB-M3 Municipal Act Application / Appeal - Sickness or Poverty - Ontario, Canada

Form ARB-M3 Municipal Act Application / Appeal - Sickness or Poverty - Ontario, Canada

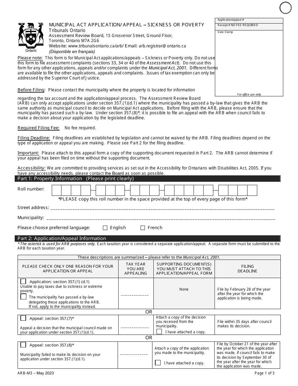
The Form ARB-M3 Municipal Act Application/Appeal - Sickness or Poverty is used in the province of Ontario, Canada for individuals who are seeking assistance due to sickness or poverty. It is a form that allows individuals to apply for various financial benefits and support programs provided by the municipal government.

The Form ARB-M3 Municipal Act Application/Appeal - Sickness or Poverty in Ontario, Canada is typically filed by individuals who are seeking relief from property taxes due to sickness or poverty.

Form ARB-M3 Municipal Act Application/Appeal - Sickness or Poverty - Ontario, Canada - Frequently Asked Questions (FAQ)

Q: What is the Form ARB-M3?
A:
The Form ARB-M3 is an application/appeal form for the Municipal Act in Ontario, Canada.

Q: What does ARB stand for in Form ARB-M3?
A:
ARB stands for Assessment Review Board, an independent tribunal in Ontario.

Q: Who can use Form ARB-M3?
A:
Individuals who are experiencing sickness or poverty and want to apply for a reduction in property taxes under the Municipal Act can use Form ARB-M3.

Q: What is the purpose of Form ARB-M3?
A:
The purpose of Form ARB-M3 is to apply for a property tax reduction due to sickness or poverty.

Q: Is Form ARB-M3 specific to a certain province in Canada?
A:
Yes, Form ARB-M3 is specific to Ontario, Canada.

Q: Do I need to provide proof of sickness or poverty when applying with Form ARB-M3?
A:
Yes, you will need to provide supporting documentation to prove your sickness or poverty when applying with Form ARB-M3.

ADVERTISEMENT

Other Revisions

Download Form ARB-M3 Municipal Act Application / Appeal - Sickness or Poverty - Ontario, Canada

4.6 of 5 (30 votes)
  • Form ARB-M3 Municipal Act Application/Appeal - Sickness or Poverty - Ontario, Canada

    1

  • Form ARB-M3 Municipal Act Application/Appeal - Sickness or Poverty - Ontario, Canada, Page 2

    2

  • Form ARB-M3 Municipal Act Application/Appeal - Sickness or Poverty - Ontario, Canada, Page 3

    3

  • Form ARB-M3 Municipal Act Application/Appeal - Sickness or Poverty - Ontario, Canada, Page 4

    4

  • Form ARB-M3 Municipal Act Application/Appeal - Sickness or Poverty - Ontario, Canada, Page 5

    5

  • Form ARB-M3 Municipal Act Application/Appeal - Sickness or Poverty - Ontario, Canada, Page 6

    6

  • Form ARB-M3 Municipal Act Application / Appeal - Sickness or Poverty - Ontario, Canada, Page 1
  • Form ARB-M3 Municipal Act Application / Appeal - Sickness or Poverty - Ontario, Canada, Page 2
  • Form ARB-M3 Municipal Act Application / Appeal - Sickness or Poverty - Ontario, Canada, Page 3
  • Form ARB-M3 Municipal Act Application / Appeal - Sickness or Poverty - Ontario, Canada, Page 4
  • Form ARB-M3 Municipal Act Application / Appeal - Sickness or Poverty - Ontario, Canada, Page 5
  • Form ARB-M3 Municipal Act Application / Appeal - Sickness or Poverty - Ontario, Canada, Page 6
Prev 1 2 3 4 5 6 Next
ADVERTISEMENT