Form ARB-M3 Municipal Act Application / Appeal - Sickness or Poverty - Ontario, Canada

Notification Icon This version of the form is not currently in use and is provided for reference only. Download this version of Form ARB-M3 for the current year.

Form ARB-M3 Municipal Act Application / Appeal - Sickness or Poverty - Ontario, Canada

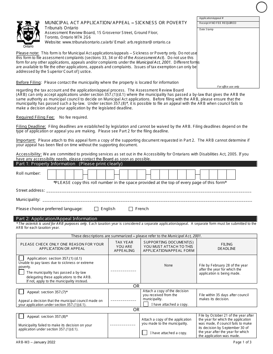
Form ARB-M3 is a specific application/appeal form used in Ontario, Canada for individuals who are seeking assistance due to sickness or poverty under the Municipal Act. This form is used to request financial relief or support from the municipality based on the individual's circumstances.

The Form ARB-M3 Municipal Act Application/Appeal - Sickness or Poverty in Ontario, Canada, is typically filed by individuals who are experiencing sickness or poverty and seeking relief through the Municipal Act.

FAQ

Q: What is the ARB-M3 form?
A: The ARB-M3 form is an application/appeal form related to the Municipal Act in Ontario, Canada.

Q: What is the purpose of the ARB-M3 form?
A: The purpose of the ARB-M3 form is to apply for a reduction or elimination of property taxes due to sickness or poverty.

Q: Who can use the ARB-M3 form?
A: Anyone who is experiencing sickness or poverty and wants to apply for a reduction or elimination of property taxes in Ontario, Canada can use the ARB-M3 form.

Q: What supporting documents are required for the ARB-M3 form?
A: You may be required to provide documents such as medical certificates, financial statements, or proof of social assistance to support your application for sickness or poverty.

ADVERTISEMENT

Download Form ARB-M3 Municipal Act Application / Appeal - Sickness or Poverty - Ontario, Canada

4.6 of 5 (19 votes)
  • Form ARB-M3 Municipal Act Application/Appeal - Sickness or Poverty - Ontario, Canada

    1

  • Form ARB-M3 Municipal Act Application/Appeal - Sickness or Poverty - Ontario, Canada, Page 2

    2

  • Form ARB-M3 Municipal Act Application/Appeal - Sickness or Poverty - Ontario, Canada, Page 3

    3

  • Form ARB-M3 Municipal Act Application/Appeal - Sickness or Poverty - Ontario, Canada, Page 4

    4

  • Form ARB-M3 Municipal Act Application/Appeal - Sickness or Poverty - Ontario, Canada, Page 5

    5

  • Form ARB-M3 Municipal Act Application/Appeal - Sickness or Poverty - Ontario, Canada, Page 6

    6

  • Form ARB-M3 Municipal Act Application / Appeal - Sickness or Poverty - Ontario, Canada, Page 1
  • Form ARB-M3 Municipal Act Application / Appeal - Sickness or Poverty - Ontario, Canada, Page 2
  • Form ARB-M3 Municipal Act Application / Appeal - Sickness or Poverty - Ontario, Canada, Page 3
  • Form ARB-M3 Municipal Act Application / Appeal - Sickness or Poverty - Ontario, Canada, Page 4
  • Form ARB-M3 Municipal Act Application / Appeal - Sickness or Poverty - Ontario, Canada, Page 5
  • Form ARB-M3 Municipal Act Application / Appeal - Sickness or Poverty - Ontario, Canada, Page 6
Prev 1 2 3 4 5 6 Next
ADVERTISEMENT