Form ARB-M3 Municipal Act Application / Appeal - Sickness or Poverty - Ontario, Canada

Notification Icon This version of the form is not currently in use and is provided for reference only. Download this version of Form ARB-M3 for the current year.

Form ARB-M3 Municipal Act Application / Appeal - Sickness or Poverty - Ontario, Canada

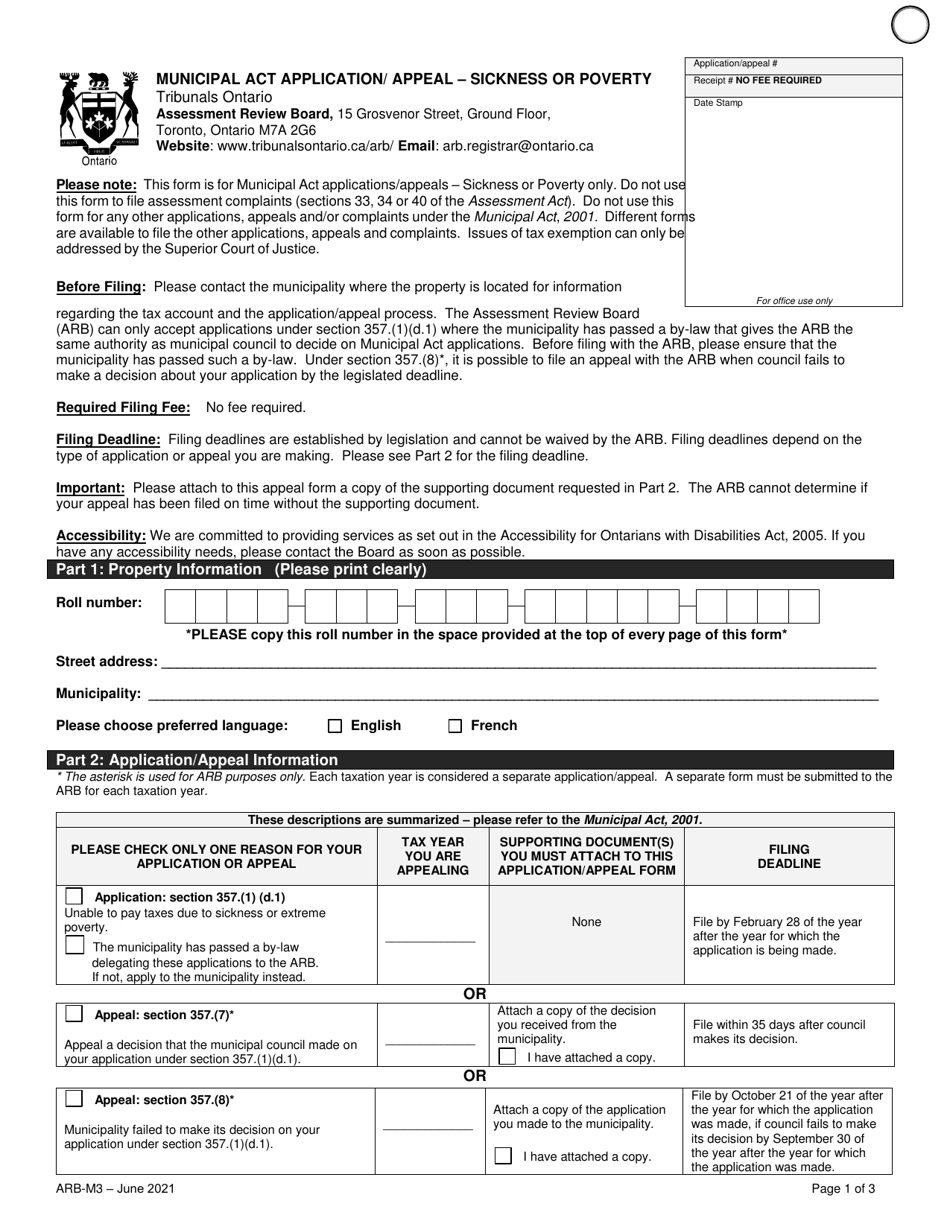
Form ARB-M3 is an application/appeal form used under the Municipal Act in Ontario, Canada for seeking relief due to sickness or poverty. It is designed for individuals who are experiencing financial hardship or are unable to pay their property taxes due to illness or other circumstances. By completing this form, individuals can apply for a reduction or cancellation of their property tax liability based on their current situation.

The Form ARB-M3 Municipal Act Application/Appeal - Sickness or Poverty in Ontario, Canada is typically filed by individuals who are seeking relief or assistance due to their sickness or poverty situation.

FAQ

Q: What is the ARB-M3 Municipal Act Application/Appeal form?
A: The ARB-M3 Municipal Act Application/Appeal form is a document used in Ontario, Canada for individuals seeking relief due to sickness or poverty under the Municipal Act.

Q: Who can use the ARB-M3 form?
A: The ARB-M3 form is intended for individuals who are seeking relief under the Municipal Act in Ontario, Canada due to sickness or poverty.

Q: What kind of relief can be sought using the ARB-M3 form?
A: The ARB-M3 form allows individuals to request relief from the municipality for a reduction or elimination of taxes, penalties, or interest due to sickness or poverty.

Q: How can I obtain the ARB-M3 form?
A: The ARB-M3 form can be obtained from the administrative office of your municipality or from the Assessment Review Board (ARB) in Ontario.

Q: Can I appeal a decision made on my ARB-M3 application?
A: Yes, if your ARB-M3 application is denied or you are dissatisfied with the decision, you have the right to file an appeal with the Assessment Review Board (ARB) in Ontario.

Q: Is there a deadline for submitting the ARB-M3 form?
A: While there is no specific deadline mentioned, it is advisable to submit the ARB-M3 form as soon as possible after the circumstances of sickness or poverty arise.

Q: What supporting documents are required to accompany the ARB-M3 form?
A: You may be required to provide supporting documentation such as medical records, financial statements, proof of income, or any other relevant information that substantiates your claim of sickness or poverty.

Q: Can I get legal assistance to complete the ARB-M3 form?
A: Yes, you may choose to seek legal advice or assistance to help you complete the ARB-M3 form and navigate the application or appeal process.

ADVERTISEMENT

Download Form ARB-M3 Municipal Act Application / Appeal - Sickness or Poverty - Ontario, Canada

4.6 of 5 (11 votes)
  • Form ARB-M3 Municipal Act Application/Appeal - Sickness or Poverty - Ontario, Canada

    1

  • Form ARB-M3 Municipal Act Application/Appeal - Sickness or Poverty - Ontario, Canada, Page 2

    2

  • Form ARB-M3 Municipal Act Application/Appeal - Sickness or Poverty - Ontario, Canada, Page 3

    3

  • Form ARB-M3 Municipal Act Application/Appeal - Sickness or Poverty - Ontario, Canada, Page 4

    4

  • Form ARB-M3 Municipal Act Application/Appeal - Sickness or Poverty - Ontario, Canada, Page 5

    5

  • Form ARB-M3 Municipal Act Application/Appeal - Sickness or Poverty - Ontario, Canada, Page 6

    6

  • Form ARB-M3 Municipal Act Application / Appeal - Sickness or Poverty - Ontario, Canada, Page 1
  • Form ARB-M3 Municipal Act Application / Appeal - Sickness or Poverty - Ontario, Canada, Page 2
  • Form ARB-M3 Municipal Act Application / Appeal - Sickness or Poverty - Ontario, Canada, Page 3
  • Form ARB-M3 Municipal Act Application / Appeal - Sickness or Poverty - Ontario, Canada, Page 4
  • Form ARB-M3 Municipal Act Application / Appeal - Sickness or Poverty - Ontario, Canada, Page 5
  • Form ARB-M3 Municipal Act Application / Appeal - Sickness or Poverty - Ontario, Canada, Page 6
Prev 1 2 3 4 5 6 Next
ADVERTISEMENT