Form ARB-M6 Municipal Act Application / Appeal - Limitation of Taxes - Ontario, Canada

Notification Icon This version of the form is not currently in use and is provided for reference only. Download this version of Form ARB-M6 for the current year.

Form ARB-M6 Municipal Act Application / Appeal - Limitation of Taxes - Ontario, Canada

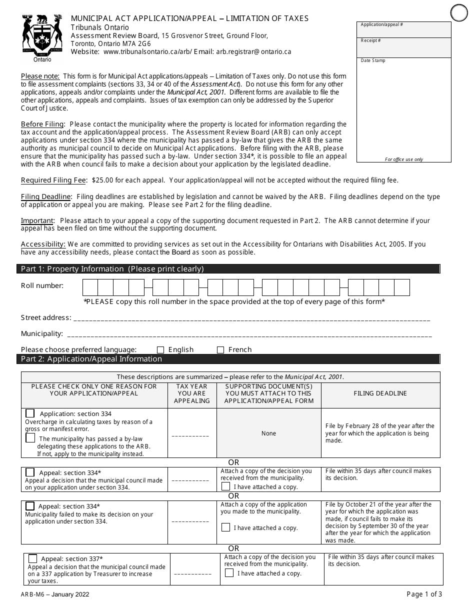
Form ARB-M6 is an Application/Appeal form used in Ontario, Canada specifically for matters related to the limitation of taxes under the Municipal Act. This form is used by individuals or businesses who wish to apply for an appeal regarding the amount of taxes imposed by a municipality in Ontario. It allows them to dispute the tax assessment and request a re-evaluation if they believe that the taxes imposed are unfair or inaccurate. The purpose of this form is to provide a means for residents and businesses to seek a review of their tax assessments and potentially reduce their tax liabilities.

The Form ARB-M6 Municipal Act Application/Appeal - Limitation of Taxes in Ontario, Canada is typically filed by property owners who wish to appeal their property tax assessment.

FAQ

Q: What is the ARB-M6 Municipal Act Application/Appeal?
A: The ARB-M6 Municipal Act Application/Appeal is a form used to initiate an appeal process regarding the limitation of taxes in Ontario, Canada.

Q: What does ARB stand for?
A: ARB stands for Assessment Review Board, which is an independent tribunal in Ontario that handles property assessment and taxation appeals.

Q: Who is eligible to use the ARB-M6 Municipal Act Application/Appeal form?
A: Property owners or authorized representatives who believe there are errors or unfairness in the assessed value of their property or the taxes imposed on it can use the ARB-M6 form to file an appeal.

Q: What is the purpose of the ARB-M6 Municipal Act Application/Appeal?
A: The purpose of this form is to request a review of the assessed value of a property or the taxes imposed on it, with the aim of seeking correction or adjustment if there are valid grounds for doing so.

Q: What type of taxes can be appealed using the ARB-M6 form?
A: The ARB-M6 form can be used to appeal various types of municipal taxes, which may include property taxes, water rates, sewer charges, or any other taxes under the Municipal Act.

Q: How should the ARB-M6 Municipal Act Application/Appeal form be filled out?
A: The form should be filled out accurately and completely, providing all necessary details about the property, the grounds for the appeal, and supporting documents. It is recommended to seek legal advice or assistance if needed.

Q: What is the deadline for filing the ARB-M6 form?
A: The deadline for filing the ARB-M6 form may vary depending on the situation and the specific instructions provided by the Assessment Review Board. It is important to carefully review the instructions and adhere to the specified deadline.

Q: What happens after submitting the ARB-M6 form?
A: After submitting the ARB-M6 form, the Assessment Review Board will review the appeal and may schedule a hearing to further evaluate the matter. The property owner or authorized representative will be notified of any additional steps or requirements.

Q: Is there a fee for filing the ARB-M6 form?
A: Yes, there may be a fee associated with filing the ARB-M6 form. The specific fee amount and payment instructions can be found on the form itself or by contacting the Assessment Review Board (ARB) office.

ADVERTISEMENT

Download Form ARB-M6 Municipal Act Application / Appeal - Limitation of Taxes - Ontario, Canada

4.6 of 5 (7 votes)
  • Form ARB-M6 Municipal Act Application/Appeal - Limitation of Taxes - Ontario, Canada

    1

  • Form ARB-M6 Municipal Act Application/Appeal - Limitation of Taxes - Ontario, Canada, Page 2

    2

  • Form ARB-M6 Municipal Act Application/Appeal - Limitation of Taxes - Ontario, Canada, Page 3

    3

  • Form ARB-M6 Municipal Act Application/Appeal - Limitation of Taxes - Ontario, Canada, Page 4

    4

  • Form ARB-M6 Municipal Act Application/Appeal - Limitation of Taxes - Ontario, Canada, Page 5

    5

  • Form ARB-M6 Municipal Act Application/Appeal - Limitation of Taxes - Ontario, Canada, Page 6

    6

  • Form ARB-M6 Municipal Act Application / Appeal - Limitation of Taxes - Ontario, Canada, Page 1
  • Form ARB-M6 Municipal Act Application / Appeal - Limitation of Taxes - Ontario, Canada, Page 2
  • Form ARB-M6 Municipal Act Application / Appeal - Limitation of Taxes - Ontario, Canada, Page 3
  • Form ARB-M6 Municipal Act Application / Appeal - Limitation of Taxes - Ontario, Canada, Page 4
  • Form ARB-M6 Municipal Act Application / Appeal - Limitation of Taxes - Ontario, Canada, Page 5
  • Form ARB-M6 Municipal Act Application / Appeal - Limitation of Taxes - Ontario, Canada, Page 6
Prev 1 2 3 4 5 6 Next
ADVERTISEMENT