Form DOR82130 Petition for Review of Real Property Valuation - Arizona

Form DOR82130 Petition for Review of Real Property Valuation - Arizona

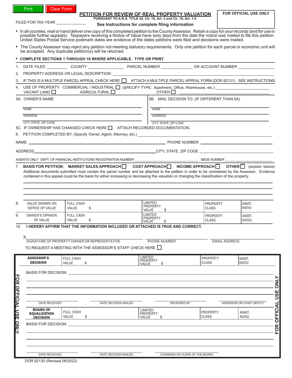
What Is Form DOR82130?

This is a legal form that was released by the Arizona Department of Revenue - a government authority operating within Arizona. As of today, no separate filing guidelines for the form are provided by the issuing department.

Form Details:

  • Released on June 1, 2022;
  • The latest edition provided by the Arizona Department of Revenue;
  • Easy to use and ready to print;
  • Quick to customize;
  • Compatible with most PDF-viewing applications;
  • Fill out the form in our online filing application.

Download a fillable version of Form DOR82130 by clicking the link below or browse more documents and templates provided by the Arizona Department of Revenue.

ADVERTISEMENT

Other Revision

Download Form DOR82130 Petition for Review of Real Property Valuation - Arizona

4.5 of 5 (42 votes)
  • Form DOR82130 Petition for Review of Real Property Valuation - Arizona

    1

  • Form DOR82130 Petition for Review of Real Property Valuation - Arizona, Page 2

    2

  • Form DOR82130 Petition for Review of Real Property Valuation - Arizona, Page 3

    3

  • Form DOR82130 Petition for Review of Real Property Valuation - Arizona, Page 1
  • Form DOR82130 Petition for Review of Real Property Valuation - Arizona, Page 2
  • Form DOR82130 Petition for Review of Real Property Valuation - Arizona, Page 3
Prev 1 2 3 Next
ADVERTISEMENT

Related Documents