Form DOR82130 Petition for Review of Real Property Valuation - Arizona

Notification Icon This version of the form is not currently in use and is provided for reference only. Download this version of Form DOR82130 for the current year.

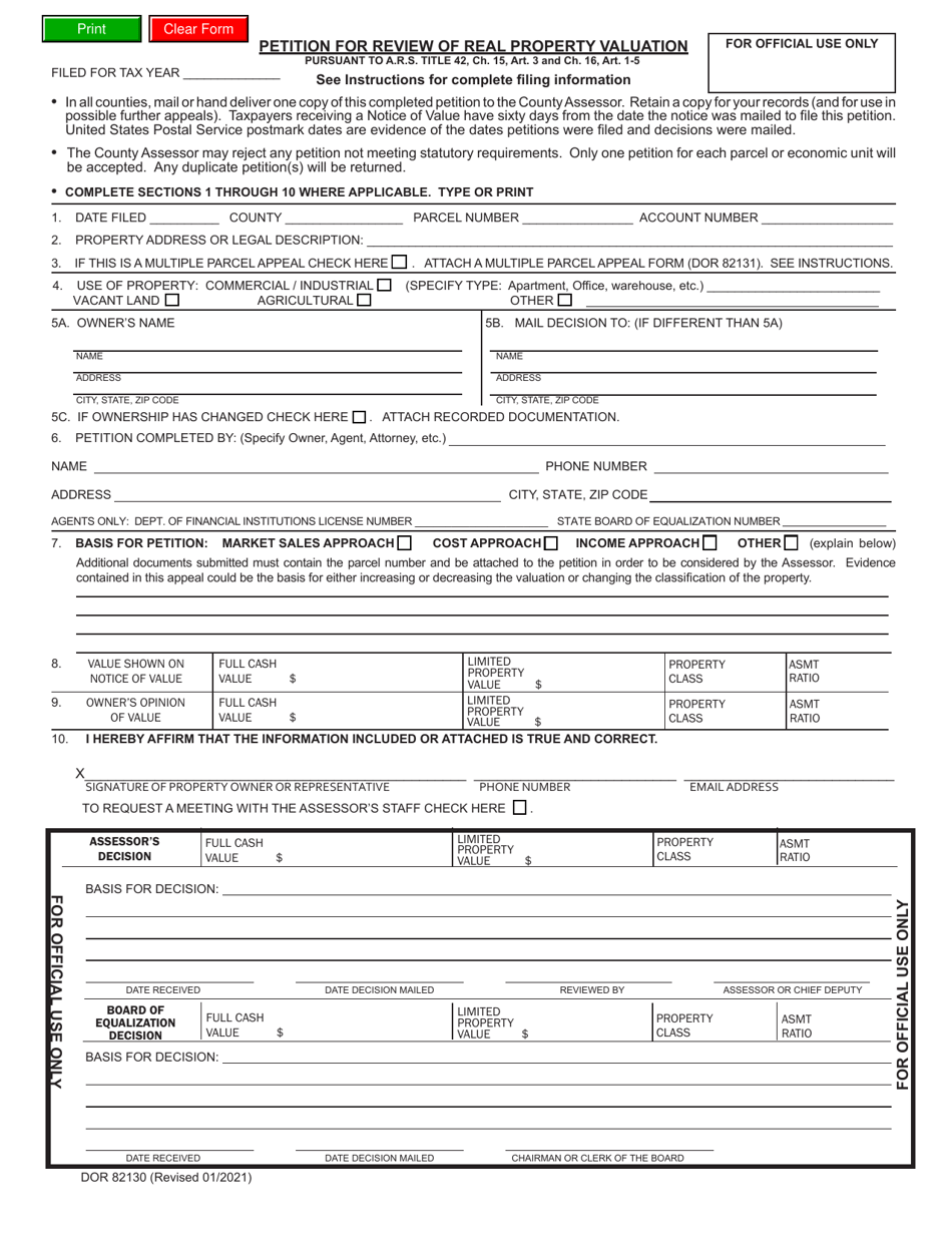
Form DOR82130 Petition for Review of Real Property Valuation - Arizona

What Is Form DOR82130?

This is a legal form that was released by the Arizona Department of Revenue - a government authority operating within Arizona. As of today, no separate filing guidelines for the form are provided by the issuing department.

FAQ

Q: What is Form DOR82130?
A: Form DOR82130 is a Petition for Review of Real Property Valuation in Arizona.

Q: What is the purpose of Form DOR82130?
A: The purpose of Form DOR82130 is to request a review of the assessed value of your real property in Arizona.

Q: Who can file Form DOR82130?
A: Property owners or their authorized representatives can file Form DOR82130.

Q: What information is required on Form DOR82130?
A: Form DOR82130 requires information such as property details, reasons for the petition, and supporting documentation.

Q: Is there a deadline to file Form DOR82130?
A: Yes, the deadline to file Form DOR82130 is generally on or before December 15th of the tax year or within 25 days from the date on the notice of value.

Q: What happens after filing Form DOR82130?
A: After filing Form DOR82130, a review process will be initiated by the Arizona Department of Revenue to reassess the value of the property.

Q: Can I appeal the decision made through Form DOR82130?
A: Yes, if you are unsatisfied with the outcome of the review, you have the option to further appeal the decision.

Q: Can an attorney assist with Form DOR82130?
A: Yes, property owners can seek the assistance of an attorney to help with the preparation and filing of Form DOR82130.

Q: Are there any fees associated with filing Form DOR82130?
A: There are no filing fees for submitting Form DOR82130.

ADVERTISEMENT

Form Details:

  • Released on January 1, 2021;
  • The latest edition provided by the Arizona Department of Revenue;
  • Easy to use and ready to print;
  • Quick to customize;
  • Compatible with most PDF-viewing applications;
  • Fill out the form in our online filing application.

Download a fillable version of Form DOR82130 by clicking the link below or browse more documents and templates provided by the Arizona Department of Revenue.

Download Form DOR82130 Petition for Review of Real Property Valuation - Arizona

4.3 of 5 (19 votes)
  • Form DOR82130 Petition for Review of Real Property Valuation - Arizona

    1

  • Form DOR82130 Petition for Review of Real Property Valuation - Arizona, Page 2

    2

  • Form DOR82130 Petition for Review of Real Property Valuation - Arizona, Page 3

    3

  • Form DOR82130 Petition for Review of Real Property Valuation - Arizona, Page 1
  • Form DOR82130 Petition for Review of Real Property Valuation - Arizona, Page 2
  • Form DOR82130 Petition for Review of Real Property Valuation - Arizona, Page 3
Prev 1 2 3 Next
ADVERTISEMENT

Related Documents