Professional Engineering Form 4A Verification of Professional Experience - New York

Professional Engineering Form 4A Verification of Professional Experience - New York

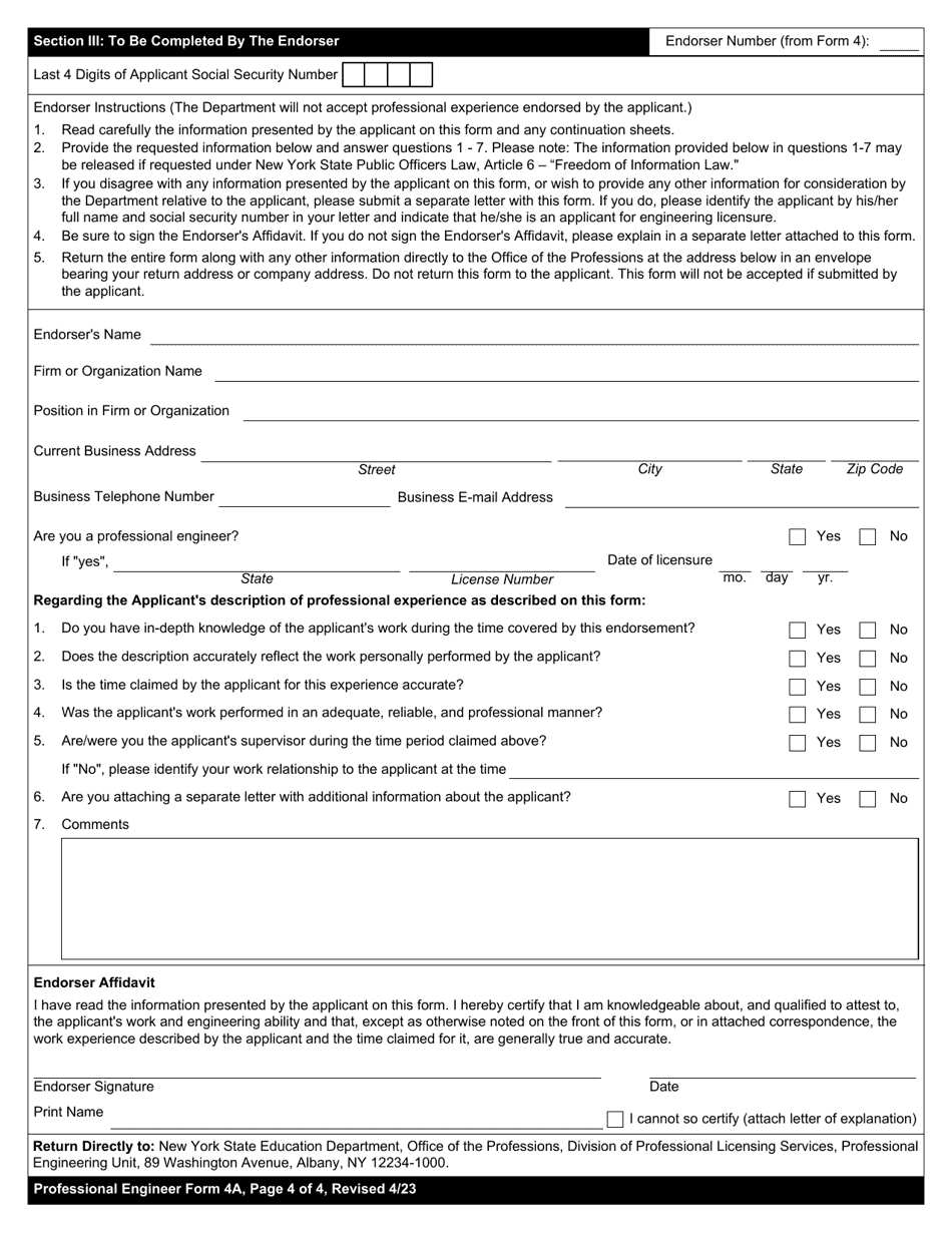
What Is Professional Engineering Form 4A?

This is a legal form that was released by the New York State Education Department - a government authority operating within New York. Check the official instructions before completing and submitting the form.

Form Details:

  • Released on April 1, 2023;
  • The latest edition provided by the New York State Education Department;
  • Easy to use and ready to print;
  • Quick to customize;
  • Compatible with most PDF-viewing applications;
  • Fill out the form in our online filing application.

Download a fillable version of Professional Engineering Form 4A by clicking the link below or browse more documents and templates provided by the New York State Education Department.

ADVERTISEMENT

Other Revision

Download Professional Engineering Form 4A Verification of Professional Experience - New York

4.6 of 5 (29 votes)
  • Professional Engineering Form 4A Verification of Professional Experience - New York

    1

  • Professional Engineering Form 4A Verification of Professional Experience - New York, Page 2

    2

  • Professional Engineering Form 4A Verification of Professional Experience - New York, Page 3

    3

  • Professional Engineering Form 4A Verification of Professional Experience - New York, Page 4

    4

  • Professional Engineering Form 4A Verification of Professional Experience - New York, Page 1
  • Professional Engineering Form 4A Verification of Professional Experience - New York, Page 2
  • Professional Engineering Form 4A Verification of Professional Experience - New York, Page 3
  • Professional Engineering Form 4A Verification of Professional Experience - New York, Page 4
Prev 1 2 3 4 Next
ADVERTISEMENT