Landscape Architect Form 4A Verification of Professional Experience - New York

Landscape Architect Form 4A Verification of Professional Experience - New York

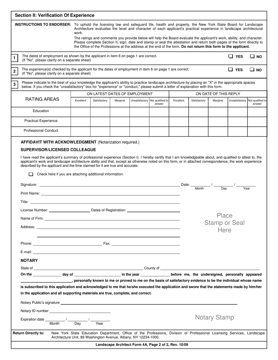
What Is Landscape Architect Form 4A?

This is a legal form that was released by the New York State Education Department - a government authority operating within New York. As of today, no separate filing guidelines for the form are provided by the issuing department.

FAQ

Q: What is Form 4A?
A: Form 4A is a verification of professional experience form for landscape architects in New York.

Q: Who is required to complete Form 4A?
A: Landscape architects in New York who are applying for licensure must complete Form 4A.

Q: What is the purpose of Form 4A?
A: The purpose of Form 4A is to verify the applicant's professional experience in landscape architecture.

Q: What information is required on Form 4A?
A: Form 4A requires information about the applicant's employment history, including the types of projects worked on and the duration of each employment.

Q: Who can verify the professional experience on Form 4A?
A: The applicant's supervisor or a licensed landscape architect who is familiar with the applicant's work can verify the professional experience on Form 4A.

ADVERTISEMENT

Form Details:

  • Released on October 1, 2009;
  • The latest edition provided by the New York State Education Department;
  • Easy to use and ready to print;
  • Quick to customize;
  • Compatible with most PDF-viewing applications;
  • Fill out the form in our online filing application.

Download a printable version of Landscape Architect Form 4A by clicking the link below or browse more documents and templates provided by the New York State Education Department.

Download Landscape Architect Form 4A Verification of Professional Experience - New York

4.3 of 5 (20 votes)
  • Landscape Architect Form 4A Verification of Professional Experience - New York

    1

  • Landscape Architect Form 4A Verification of Professional Experience - New York, Page 2

    2

  • Landscape Architect Form 4A Verification of Professional Experience - New York, Page 1
  • Landscape Architect Form 4A Verification of Professional Experience - New York, Page 2
Prev 1 2 Next
ADVERTISEMENT

Related Documents