Form DPSSP4011-A Explosives Magazine License Application - Louisiana

Form DPSSP4011-A Explosives Magazine License Application - Louisiana

What Is Form DPSSP4011-A?

This is a legal form that was released by the Louisiana State Police - a government authority operating within Louisiana. As of today, no separate filing guidelines for the form are provided by the issuing department.

FAQ

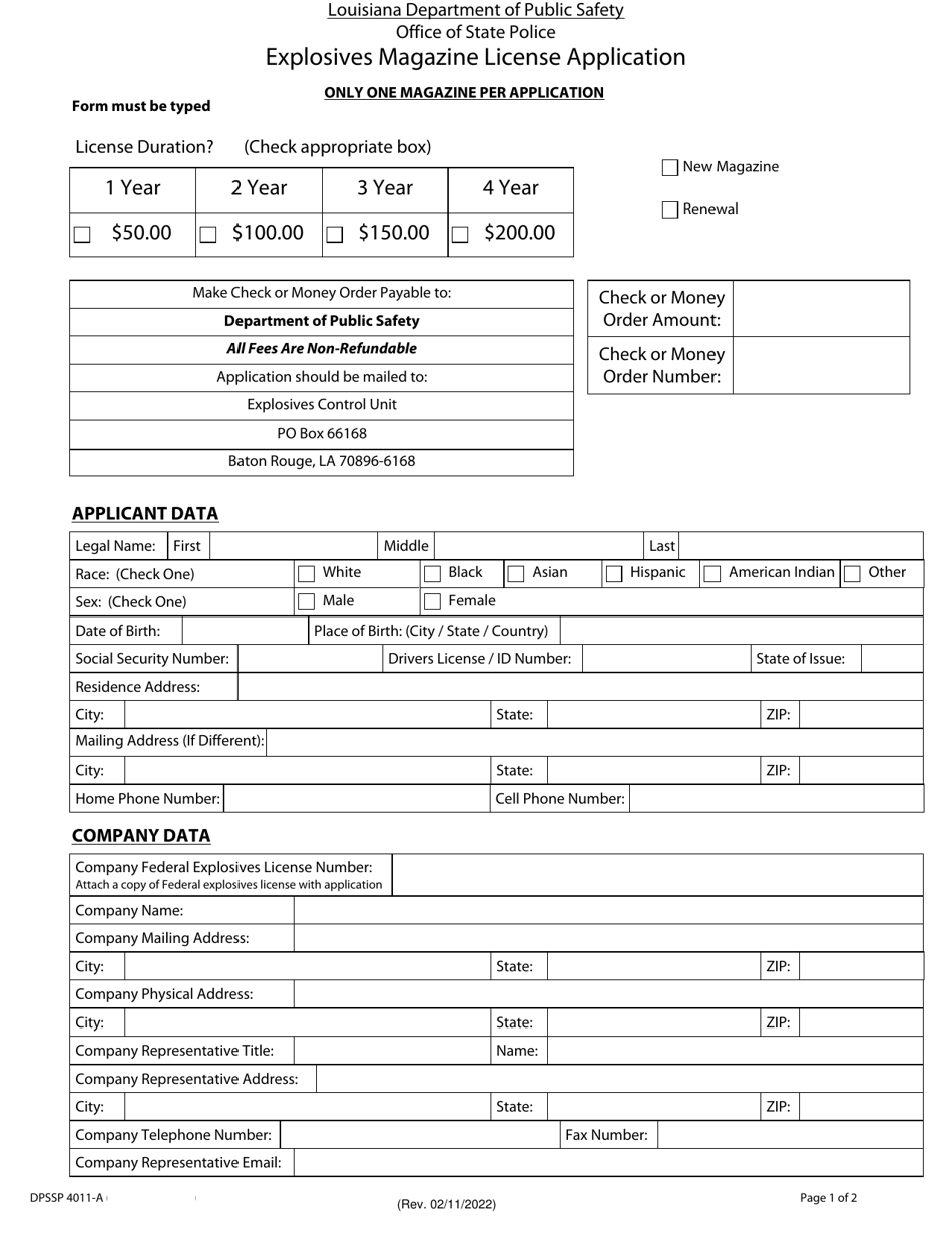
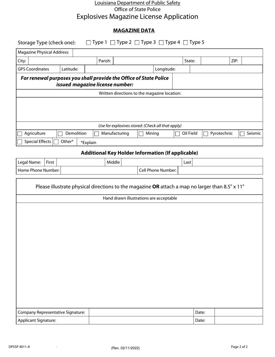
Q: What is the Form DPSSP4011-A?A: The Form DPSSP4011-A is the Explosives Magazine License Application form for Louisiana.

Q: What is an Explosives Magazine License?A: An Explosives Magazine License is a permit issued by Louisiana for the storage and handling of explosives.

Q: How can I obtain the Form DPSSP4011-A?A: You can obtain the Form DPSSP4011-A by contacting the Louisiana Department of Public Safety and Corrections.

Q: What information is required on the Form DPSSP4011-A?A: The Form DPSSP4011-A requires information such as the applicant's name, contact information, business details, and details of the explosives magazine.

ADVERTISEMENT

Other Revision

Download Form DPSSP4011-A Explosives Magazine License Application - Louisiana

4.3 of 5 (61 votes)
  • Form DPSSP4011-A Explosives Magazine License Application - Louisiana

    1

  • Form DPSSP4011-A Explosives Magazine License Application - Louisiana, Page 2

    2

  • Form DPSSP4011-A Explosives Magazine License Application - Louisiana, Page 3

    3

  • Form DPSSP4011-A Explosives Magazine License Application - Louisiana, Page 4

    4

  • Form DPSSP4011-A Explosives Magazine License Application - Louisiana, Page 5

    5

  • Form DPSSP4011-A Explosives Magazine License Application - Louisiana, Page 1
  • Form DPSSP4011-A Explosives Magazine License Application - Louisiana, Page 2
  • Form DPSSP4011-A Explosives Magazine License Application - Louisiana, Page 3
  • Form DPSSP4011-A Explosives Magazine License Application - Louisiana, Page 4
  • Form DPSSP4011-A Explosives Magazine License Application - Louisiana, Page 5
Prev 1 2 3 4 5 Next
ADVERTISEMENT