Form 102-102 Application for Water Right - Alaska

Notification Icon This version of the form is not currently in use and is provided for reference only. Download this version of Form 102-102 for the current year.

Form 102-102 Application for Water Right - Alaska

What Is Form 102-102?

This is a legal form that was released by the Alaska Department of Natural Resources - a government authority operating within Alaska. As of today, no separate filing guidelines for the form are provided by the issuing department.

FAQ

Q: What is Form 102-102?
A: Form 102-102 is an application for a water right in Alaska.

Q: Who can use Form 102-102?
A: Anyone who wants to apply for a water right in Alaska can use Form 102-102.

Q: What information is required in Form 102-102?
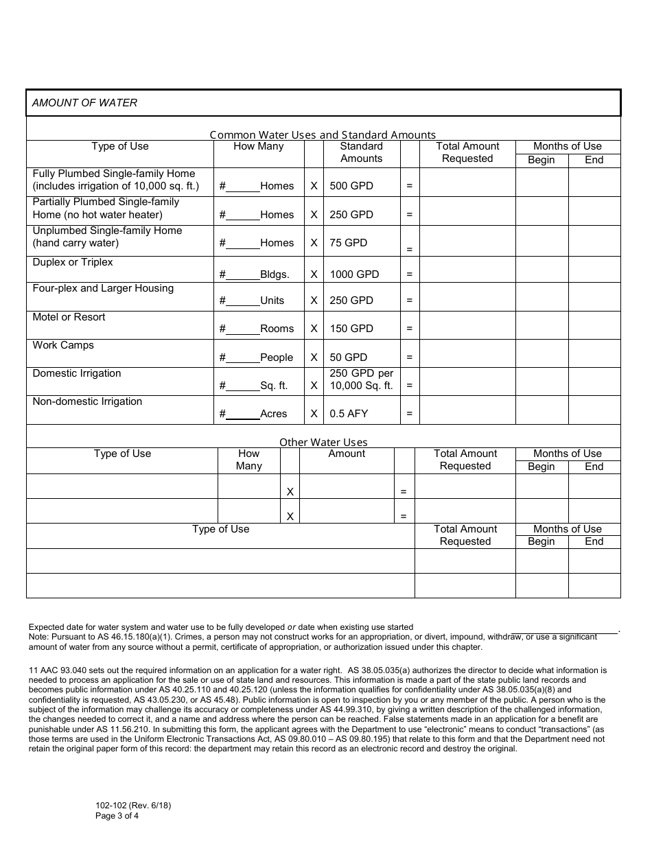
A: Form 102-102 requires information about the applicant, water source, intended use, and other details.

Q: What is the purpose of Form 102-102?
A: The purpose of Form 102-102 is to apply for a water right in Alaska, which grants the applicant the legal right to use water from a specific source.

Q: Are there any fees for submitting Form 102-102?
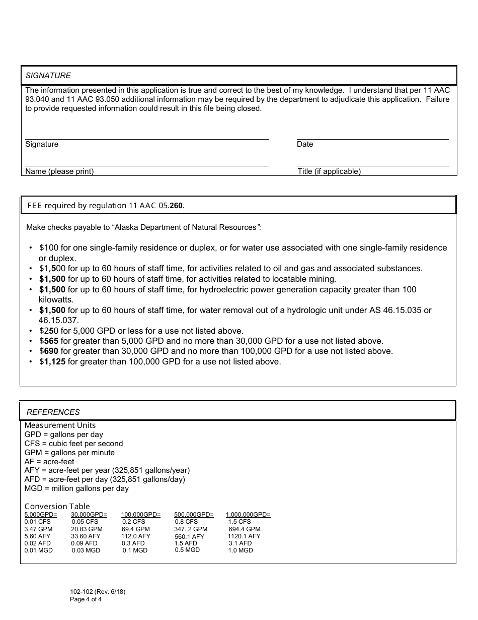
A: Yes, there are fees associated with submitting Form 102-102. The fee amount depends on the type and size of the water right being applied for.

Q: Are there any deadlines for submitting Form 102-102?
A: There are no specific deadlines for submitting Form 102-102, but it is recommended to submit the application as soon as possible.

Q: Is Form 102-102 only applicable to Alaska?
A: Yes, Form 102-102 is specifically for water right applications in Alaska and may not be applicable in other states.

Q: Can I apply for multiple water rights using Form 102-102?
A: Yes, you can apply for multiple water rights using Form 102-102. Each application will require its own form and fee.

Q: What happens after submitting Form 102-102?
A: After submitting Form 102-102, the application will be reviewed by the Alaska Department of Natural Resources, and the applicant will be notified of the decision regarding their water right application.

ADVERTISEMENT

Form Details:

  • Released on June 1, 2018;
  • The latest edition provided by the Alaska Department of Natural Resources;
  • Easy to use and ready to print;
  • Quick to customize;
  • Compatible with most PDF-viewing applications;
  • Fill out the form in our online filing application.

Download a fillable version of Form 102-102 by clicking the link below or browse more documents and templates provided by the Alaska Department of Natural Resources.

Download Form 102-102 Application for Water Right - Alaska

4.3 of 5 (40 votes)
  • Form 102-102 Application for Water Right - Alaska

    1

  • Form 102-102 Application for Water Right - Alaska, Page 2

    2

  • Form 102-102 Application for Water Right - Alaska, Page 3

    3

  • Form 102-102 Application for Water Right - Alaska, Page 4

    4

  • Form 102-102 Application for Water Right - Alaska, Page 1
  • Form 102-102 Application for Water Right - Alaska, Page 2
  • Form 102-102 Application for Water Right - Alaska, Page 3
  • Form 102-102 Application for Water Right - Alaska, Page 4
Prev 1 2 3 4 Next
ADVERTISEMENT

Related Documents