Revised Total Coliform Rule (Rtcr) - Microbiological Sample Siting Plan (Mssp) - Public Water Systems Serving 1001 or More People - Arizona

Revised Total Coliform Rule (Rtcr) - Microbiological Sample Siting Plan (Mssp) - Public Water Systems Serving 1001 or More People - Arizona

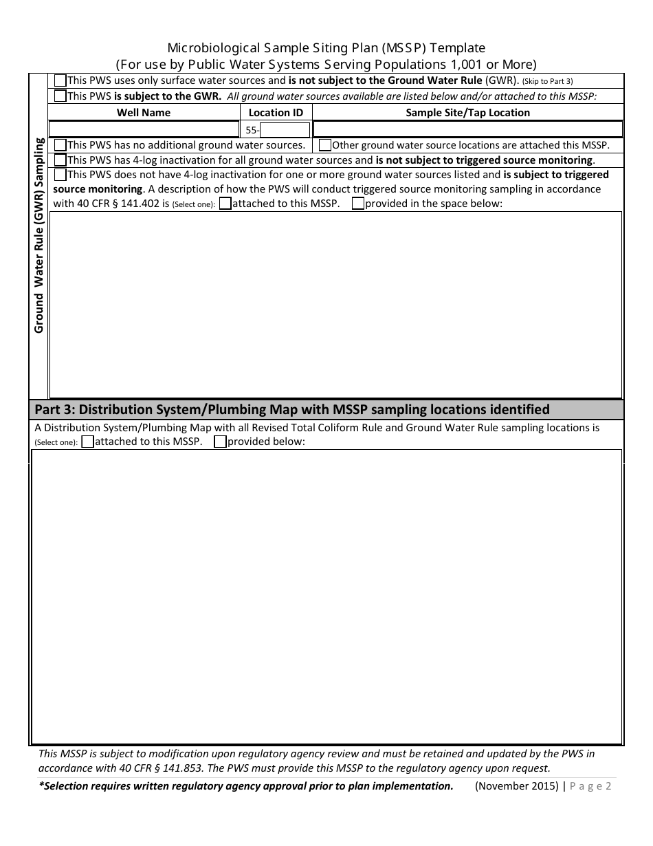
Revised Public Water Systems Serving 1001 or More People is a legal document that was released by the Arizona Department of Environmental Quality - a government authority operating within Arizona.

FAQ

Q: What is the Revised Total Coliform Rule?
A: The Revised Total Coliform Rule (RTCR) is a regulation aimed at ensuring the safety of drinking water by monitoring the presence of coliform bacteria.

Q: What is a Microbiological Sample Siting Plan?
A: A Microbiological Sample Siting Plan (MSSP) is a plan that outlines the locations where water samples for coliform bacteria testing should be taken in a public water system.

Q: Who does the RTCR and MSSP apply to?
A: The RTCR and MSSP apply to public water systems serving 1001 or more people in Arizona.

Q: Why is coliform bacteria testing important?
A: Coliform bacteria are indicators of potential contamination in water, and their presence can indicate the presence of harmful pathogens. Testing helps ensure the safety of drinking water.

Q: What are the requirements for the MSSP?
A: The MSSP must include sampling locations representative of the different zones within the distribution system. The number of locations and sampling frequency are determined based on the population served.

Q: Who is responsible for implementing the RTCR and MSSP?
A: Public water systems serving 1001 or more people in Arizona are responsible for implementing the RTCR and developing the MSSP.

Q: Does the RTCR and MSSP apply to smaller public water systems?
A: No, the RTCR and MSSP only apply to public water systems serving 1001 or more people in Arizona.

Q: What happens if a public water system fails coliform bacteria testing?
A: If a public water system fails coliform bacteria testing, they are required to take corrective actions, such as investigating and addressing the source of contamination, and notifying the public.

ADVERTISEMENT

Form Details:

  • Released on November 1, 2015;
  • The latest edition currently provided by the Arizona Department of Environmental Quality;
  • Ready to use and print;
  • Easy to customize;
  • Compatible with most PDF-viewing applications;
  • Fill out the form in our online filing application.

Download a fillable version of the form by clicking the link below or browse more documents and templates provided by the Arizona Department of Environmental Quality.

Download Revised Total Coliform Rule (Rtcr) - Microbiological Sample Siting Plan (Mssp) - Public Water Systems Serving 1001 or More People - Arizona

4.5 of 5 (89 votes)
  • Revised Total Coliform Rule (Rtcr) - Microbiological Sample Siting Plan (Mssp) - Public Water Systems Serving 1001 or More People - Arizona

    1

  • Revised Total Coliform Rule (Rtcr) - Microbiological Sample Siting Plan (Mssp) - Public Water Systems Serving 1001 or More People - Arizona, Page 2

    2

  • Revised Total Coliform Rule (Rtcr) - Microbiological Sample Siting Plan (Mssp) - Public Water Systems Serving 1001 or More People - Arizona, Page 1
  • Revised Total Coliform Rule (Rtcr) - Microbiological Sample Siting Plan (Mssp) - Public Water Systems Serving 1001 or More People - Arizona, Page 2
Prev 1 2 Next
ADVERTISEMENT

Related Documents