Sonora, Mexico Application for Arizona Subdivision Public Report Form - Arizona

Notification Icon This version of the form is not currently in use and is provided for reference only. Download this version of the document for the current year.

Sonora, Mexico Application for Arizona Subdivision Public Report Form - Arizona

Sonora, Mexico Application for Arizona Subdivision Public Report Form is a legal document that was released by the Arizona Department of Real Estate - a government authority operating within Arizona.

FAQ

Q: What is the purpose of the Sonora, Mexico Application for Arizona Subdivision Public Report Form?
A: The form is used to apply for a subdivision public report for a development project in Arizona.

Q: Who needs to complete the Sonora, Mexico Application for Arizona Subdivision Public Report Form?
A: Developers or individuals planning a subdivision project in Arizona.

Q: What information is required on the form?
A: The form asks for details about the development project, including location, financing, and ownership.

Q: Is there a fee for submitting the form?
A: Yes, there is a fee associated with submitting the Sonora, Mexico Application for Arizona Subdivision Public Report Form.

ADVERTISEMENT

Form Details:

  • Released on June 1, 2011;
  • The latest edition currently provided by the Arizona Department of Real Estate;
  • Ready to use and print;
  • Easy to customize;
  • Compatible with most PDF-viewing applications;
  • Fill out the form in our online filing application.

Download a fillable version of the form by clicking the link below or browse more documents and templates provided by the Arizona Department of Real Estate.

Download Sonora, Mexico Application for Arizona Subdivision Public Report Form - Arizona

4.4 of 5 (67 votes)
  • Sonora, Mexico Application for Arizona Subdivision Public Report Form - Arizona

    1

  • Sonora, Mexico Application for Arizona Subdivision Public Report Form - Arizona, Page 2

    2

  • Sonora, Mexico Application for Arizona Subdivision Public Report Form - Arizona, Page 3

    3

  • Sonora, Mexico Application for Arizona Subdivision Public Report Form - Arizona, Page 4

    4

  • Sonora, Mexico Application for Arizona Subdivision Public Report Form - Arizona, Page 5

    5

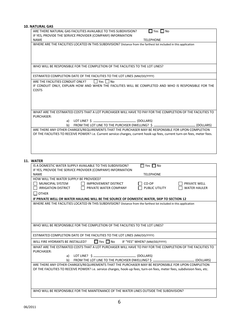
  • Sonora, Mexico Application for Arizona Subdivision Public Report Form - Arizona, Page 6

    6

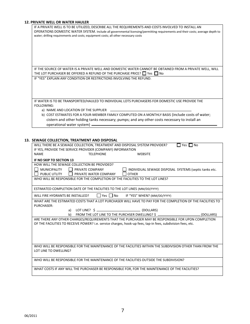
  • Sonora, Mexico Application for Arizona Subdivision Public Report Form - Arizona, Page 7

    7

  • Sonora, Mexico Application for Arizona Subdivision Public Report Form - Arizona, Page 8

    8

  • Sonora, Mexico Application for Arizona Subdivision Public Report Form - Arizona, Page 9

    9

  • Sonora, Mexico Application for Arizona Subdivision Public Report Form - Arizona, Page 10

    10

  • Sonora, Mexico Application for Arizona Subdivision Public Report Form - Arizona, Page 11

    11

  • Sonora, Mexico Application for Arizona Subdivision Public Report Form - Arizona, Page 12

    12

  • Sonora, Mexico Application for Arizona Subdivision Public Report Form - Arizona, Page 13

    13

  • Sonora, Mexico Application for Arizona Subdivision Public Report Form - Arizona, Page 14

    14

  • Sonora, Mexico Application for Arizona Subdivision Public Report Form - Arizona, Page 15

    15

  • Sonora, Mexico Application for Arizona Subdivision Public Report Form - Arizona, Page 16

    16

  • Sonora, Mexico Application for Arizona Subdivision Public Report Form - Arizona, Page 1
  • Sonora, Mexico Application for Arizona Subdivision Public Report Form - Arizona, Page 2
  • Sonora, Mexico Application for Arizona Subdivision Public Report Form - Arizona, Page 3
  • Sonora, Mexico Application for Arizona Subdivision Public Report Form - Arizona, Page 4
  • Sonora, Mexico Application for Arizona Subdivision Public Report Form - Arizona, Page 5
  • Sonora, Mexico Application for Arizona Subdivision Public Report Form - Arizona, Page 6
  • Sonora, Mexico Application for Arizona Subdivision Public Report Form - Arizona, Page 7
  • Sonora, Mexico Application for Arizona Subdivision Public Report Form - Arizona, Page 8
  • Sonora, Mexico Application for Arizona Subdivision Public Report Form - Arizona, Page 9
  • Sonora, Mexico Application for Arizona Subdivision Public Report Form - Arizona, Page 10
  • Sonora, Mexico Application for Arizona Subdivision Public Report Form - Arizona, Page 11
  • Sonora, Mexico Application for Arizona Subdivision Public Report Form - Arizona, Page 12
  • Sonora, Mexico Application for Arizona Subdivision Public Report Form - Arizona, Page 13
  • Sonora, Mexico Application for Arizona Subdivision Public Report Form - Arizona, Page 14
  • Sonora, Mexico Application for Arizona Subdivision Public Report Form - Arizona, Page 15
  • Sonora, Mexico Application for Arizona Subdivision Public Report Form - Arizona, Page 16
Prev 1 2 3 4 5 ... 16 Next
ADVERTISEMENT