Form RP-01 Registration Permit Facility Information - Air Quality Permit Program - Minnesota

Notification Icon This version of the form is not currently in use and is provided for reference only. Download this version of Form RP-01 for the current year.

Form RP-01 Registration Permit Facility Information - Air Quality Permit Program - Minnesota

What Is Form RP-01?

This is a legal form that was released by the Minnesota Pollution Control Agency - a government authority operating within Minnesota. As of today, no separate filing guidelines for the form are provided by the issuing department.

FAQ

Q: What is Form RP-01?
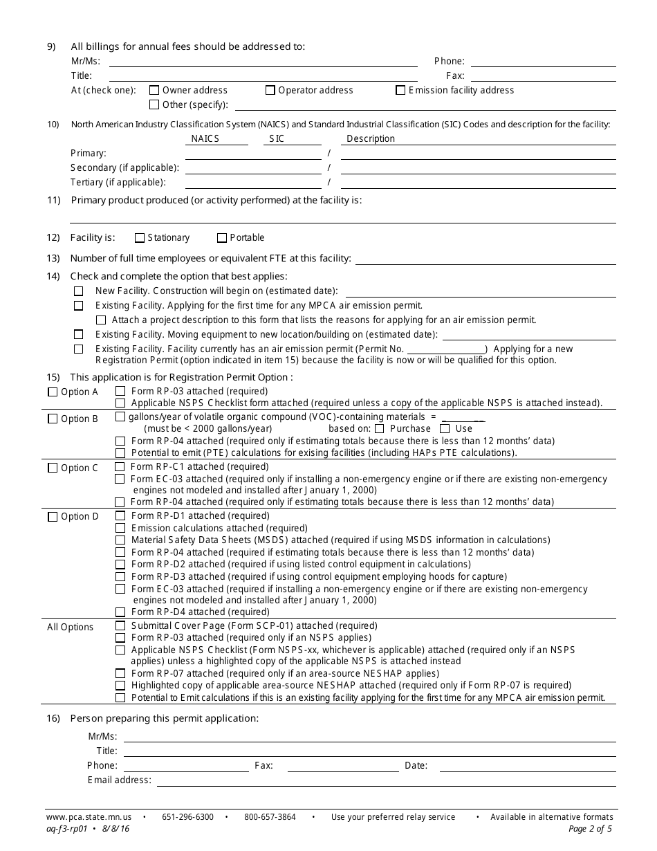
A: Form RP-01 is a registration permit application for facilities participating in the Air Quality Permit Program in Minnesota.

Q: What is the purpose of the registration permit?
A: The registration permit is used to document basic information about the facility and its compliance with air quality regulations.

Q: Who needs to submit Form RP-01?
A: Facilities that are subject to the Air Quality Permit Program in Minnesota need to submit Form RP-01.

Q: What information is required in Form RP-01?
A: Form RP-01 requires information about the facility's location, operations, emissions, and compliance status.

Q: How often does Form RP-01 need to be submitted?
A: Form RP-01 needs to be submitted initially when applying for the Air Quality Permit Program, and then updated when there are any changes in the facility's information.

Q: Are there any fees associated with submitting Form RP-01?
A: Yes, there are fees associated with submitting Form RP-01. The fee amount depends on the facility's emissions and the type of permit being applied for.

Q: What is the deadline for submitting Form RP-01?
A: The deadline for submitting Form RP-01 depends on the specific requirements of the Air Quality Permit Program and any applicable rules or regulations.

ADVERTISEMENT

Form Details:

  • Released on August 8, 2016;
  • The latest edition provided by the Minnesota Pollution Control Agency;
  • Easy to use and ready to print;
  • Quick to customize;
  • Compatible with most PDF-viewing applications;
  • Fill out the form in our online filing application.

Download a printable version of Form RP-01 by clicking the link below or browse more documents and templates provided by the Minnesota Pollution Control Agency.

Download Form RP-01 Registration Permit Facility Information - Air Quality Permit Program - Minnesota

4.8 of 5 (33 votes)
  • Form RP-01 Registration Permit Facility Information - Air Quality Permit Program - Minnesota

    1

  • Form RP-01 Registration Permit Facility Information - Air Quality Permit Program - Minnesota, Page 2

    2

  • Form RP-01 Registration Permit Facility Information - Air Quality Permit Program - Minnesota, Page 3

    3

  • Form RP-01 Registration Permit Facility Information - Air Quality Permit Program - Minnesota, Page 4

    4

  • Form RP-01 Registration Permit Facility Information - Air Quality Permit Program - Minnesota, Page 5

    5

  • Form RP-01 Registration Permit Facility Information - Air Quality Permit Program - Minnesota, Page 1
  • Form RP-01 Registration Permit Facility Information - Air Quality Permit Program - Minnesota, Page 2
  • Form RP-01 Registration Permit Facility Information - Air Quality Permit Program - Minnesota, Page 3
  • Form RP-01 Registration Permit Facility Information - Air Quality Permit Program - Minnesota, Page 4
  • Form RP-01 Registration Permit Facility Information - Air Quality Permit Program - Minnesota, Page 5
Prev 1 2 3 4 5 Next
ADVERTISEMENT