Form MO780-0215 Oil and Gas Well Completion or Recompletion Report and Well Log - Geological Survey Program - Missouri

Form MO780-0215 Oil and Gas Well Completion or Recompletion Report and Well Log - Geological Survey Program - Missouri

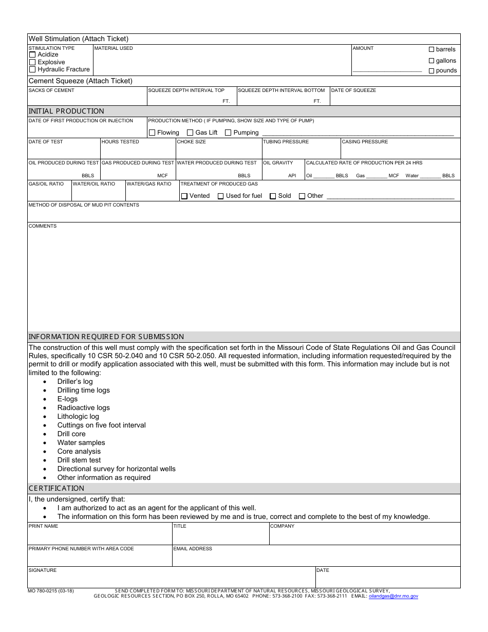
What Is Form MO780-0215?

This is a legal form that was released by the Missouri Department of Natural Resources - a government authority operating within Missouri. As of today, no separate filing guidelines for the form are provided by the issuing department.

FAQ

Q: What is MO780-0215?
A: MO780-0215 is a form used in Missouri for reporting oil and gas well completions or recompletions, as well as providing well log and geological information.

Q: Who uses the MO780-0215 form?
A: The form is used by individuals or entities involved in oil and gas well operations in Missouri.

Q: What information is included in the MO780-0215 form?
A: The form includes details about the well completion or recompletion, well log data, and geological information.

Q: Why is the MO780-0215 form important?
A: The form is important for tracking and monitoring oil and gas well operations in Missouri, and for compiling geological data.

ADVERTISEMENT

Form Details:

  • Released on March 1, 2018;
  • The latest edition provided by the Missouri Department of Natural Resources;
  • Easy to use and ready to print;
  • Quick to customize;
  • Compatible with most PDF-viewing applications;
  • Fill out the form in our online filing application.

Download a fillable version of Form MO780-0215 by clicking the link below or browse more documents and templates provided by the Missouri Department of Natural Resources.

Download Form MO780-0215 Oil and Gas Well Completion or Recompletion Report and Well Log - Geological Survey Program - Missouri

4.4 of 5 (46 votes)
  • Form MO780-0215 Oil and Gas Well Completion or Recompletion Report and Well Log - Geological Survey Program - Missouri

    1

  • Form MO780-0215 Oil and Gas Well Completion or Recompletion Report and Well Log - Geological Survey Program - Missouri, Page 2

    2

  • Form MO780-0215 Oil and Gas Well Completion or Recompletion Report and Well Log - Geological Survey Program - Missouri, Page 1
  • Form MO780-0215 Oil and Gas Well Completion or Recompletion Report and Well Log - Geological Survey Program - Missouri, Page 2
Prev 1 2 Next
ADVERTISEMENT

Related Documents