Form EHS-25 Application for Lead Permit Planner / Project Designer - New Jersey

Form EHS-25 Application for Lead Permit Planner / Project Designer - New Jersey

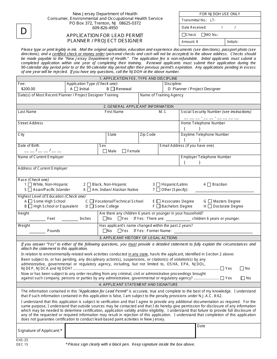
What Is Form EHS-25?

This is a legal form that was released by the New Jersey Department of Health - a government authority operating within New Jersey. As of today, no separate filing guidelines for the form are provided by the issuing department.

FAQ

Q: What is Form EHS-25?
A: Form EHS-25 is the application for Lead Permit Planner/Project Designer in New Jersey.

Q: What is the purpose of Form EHS-25?
A: The purpose of Form EHS-25 is to apply for the Lead Permit Planner/Project Designer position in New Jersey.

Q: Who should use Form EHS-25?
A: Individuals who are interested in becoming a Lead Permit Planner/Project Designer in New Jersey should use Form EHS-25.

Q: What information is required on Form EHS-25?
A: Form EHS-25 requires personal information, contact details, education and training information, work experience, and certification details for the Lead Permit Planner/Project Designer position.

Q: What should I do if I have questions about Form EHS-25?
A: If you have questions about Form EHS-25, you can contact the New Jersey Department of Labor and Workforce Development for assistance.

ADVERTISEMENT

Form Details:

  • Released on December 1, 2015;
  • The latest edition provided by the New Jersey Department of Health;
  • Easy to use and ready to print;
  • Quick to customize;
  • Compatible with most PDF-viewing applications;
  • Fill out the form in our online filing application.

Download a printable version of Form EHS-25 by clicking the link below or browse more documents and templates provided by the New Jersey Department of Health.

Download Form EHS-25 Application for Lead Permit Planner / Project Designer - New Jersey

4.5 of 5 (42 votes)
  • Form EHS-25 Application for Lead Permit Planner/Project Designer - New Jersey

    1

  • Form EHS-25 Application for Lead Permit Planner/Project Designer - New Jersey, Page 2

    2

  • Form EHS-25 Application for Lead Permit Planner / Project Designer - New Jersey, Page 1
  • Form EHS-25 Application for Lead Permit Planner / Project Designer - New Jersey, Page 2
Prev 1 2 Next
ADVERTISEMENT

Related Documents