Form EHS-15 Application for Approval as a New Jersey Asbestos Course Instructor - New Jersey

Form EHS-15 Application for Approval as a New Jersey Asbestos Course Instructor - New Jersey

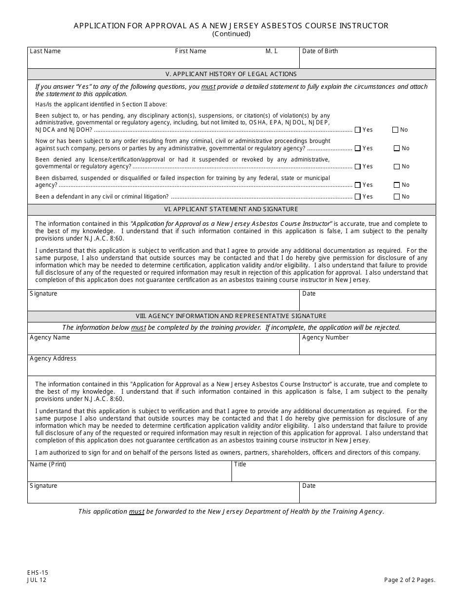
What Is Form EHS-15?

This is a legal form that was released by the New Jersey Department of Health - a government authority operating within New Jersey. As of today, no separate filing guidelines for the form are provided by the issuing department.

FAQ

Q: What is Form EHS-15?
A: Form EHS-15 is the Application for Approval as a New Jersey Asbestos Course Instructor in New Jersey.

Q: Who needs to complete Form EHS-15?
A: Anyone who wants to become an approved asbestos course instructor in New Jersey needs to complete Form EHS-15.

Q: What is the purpose of Form EHS-15?
A: The purpose of Form EHS-15 is to apply for approval as a New Jersey asbestos course instructor.

Q: Are there any fees associated with Form EHS-15?
A: Yes, there are fees associated with Form EHS-15. Please refer to the instructions on the form for the current fee schedule.

ADVERTISEMENT

Form Details:

  • Released on July 1, 2012;
  • The latest edition provided by the New Jersey Department of Health;
  • Easy to use and ready to print;
  • Quick to customize;
  • Compatible with most PDF-viewing applications;
  • Fill out the form in our online filing application.

Download a printable version of Form EHS-15 by clicking the link below or browse more documents and templates provided by the New Jersey Department of Health.

Download Form EHS-15 Application for Approval as a New Jersey Asbestos Course Instructor - New Jersey

4.6 of 5 (98 votes)
  • Form EHS-15 Application for Approval as a New Jersey Asbestos Course Instructor - New Jersey

    1

  • Form EHS-15 Application for Approval as a New Jersey Asbestos Course Instructor - New Jersey, Page 2

    2

  • Form EHS-15 Application for Approval as a New Jersey Asbestos Course Instructor - New Jersey, Page 1
  • Form EHS-15 Application for Approval as a New Jersey Asbestos Course Instructor - New Jersey, Page 2
Prev 1 2 Next
ADVERTISEMENT

Related Documents